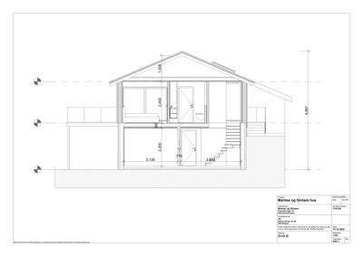
Facade
Fasadetegning som viser bygningens utseende sett fra nord og vest.
1 / 4
ChangeOfUse
UnderBehandling
Enebolig
Bruksendring og fasadeendring på enebolig i Fleslandsvegen 18, Bergen
📍 Fleslandsvegen 18 , 5258 BLOMSTERDALEN
Nøkkelinfo
- Sakstype
- Bruksendring
- Bygningstype
- Enebolig
- Bruksareal
- 101 m²
- Boenheter
- 1
- Kommune
- Bergen
- Fylke
- Vestland
- Gnr / Bnr
- 112 / 126
- Saksnummer
- BYGG-2026/00249
- Fase
- Under behandling
Om byggesaken
Eksisterende enebolig på 101,2 m² med saltak og trekledning gjennomgår bruksendring av kjeller og boder fra tilleggsdel til hoveddel uten ny boenhet. Det utføres mindre fasadeendringer inkludert nye takvinduer (2 stk 55x140 cm) og endringer på fasadene mot øst og sør. Boligen har 3 soverom, 2 bad, kjøkken/stue og spiseplass, samt en terrasse på 43,3 m². Fasaden består av trekledning med saltak, og det er 1 trapp i bygget. Endringene inkluderer også tilpasninger i innvendige rom og mindre takendringer.
Produkter og materialer
Vinduer
Takvindu
🧱 tre/aluminium
Antall: 2
55x140 cm takvinduer
Nye takvinduer for bedre lysinnslipp i taket
Fasade
Trekledning
🧱 tre
Fasadeendringer på øst- og sørfasade, trekledning med saltak
Mindre fasadeendringer med trekledning og saltak
Tømrer
Innvendige tilpasninger
Bruksendring av kjeller og boder fra tilleggsdel til hoveddel, innvendige tilpasninger
Innvendige arbeider for bruksendring og tilpasning av rom
Tak
Saltak
🧱 takstein eller tilsvarende
Mindre takendringer i forbindelse med fasadeendring og takvinduer
Takendringer for tilpasning av nye takvinduer og fasade
Trapper
Innvendig trapp
Antall: 1
Eksisterende trapp i eneboligen
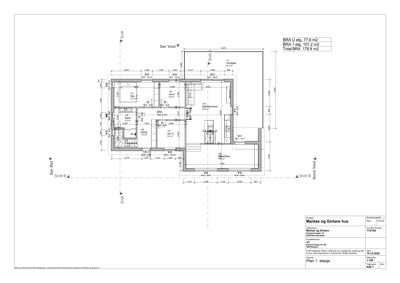
Plantegning
Enebolig 101.2 m²
Etasje 1 101.2 m²
| Rom | Areal | Vinduer | Dører |
|---|---|---|---|
| Sov 1 101 | 12.1 m² | 1 | 1 |
| Bad1 103 | 6.2 m² | 0 | 1 |
| Sov 2 104 | 8.2 m² | 1 | 1 |
| Sov 3 105 | 6.8 m² | 1 | 1 |
| Gang 106 | 11.9 m² | 0 | 3 |
| Kjøkken/stue 109 | 30.2 m² | 2 | 1 |
| SøiseStue 110 | 19.0 m² | 2 | 0 |
| Trapperom 108 | 8.1 m² | 0 | 0 |
Fasader
Enebolig
Vest
- Materiale
- Tre
- Taktype
- Saltak
- Vinduer
- 2
- Dører
- 2
- Balkonger
- 1
- Synlige etasjer
- 1
Nord
- Materiale
- Tre
- Taktype
- Saltak
- Vinduer
- 4
- Dører
- 1
- Balkonger
- 1
- Synlige etasjer
- 2
Hendelser
10.04.2026
Behov for tilleggsopplysninger, 112/126, Fleslandsvegen 18
02.02.2026
Behov for tilleggsopplysninger, 112/126, Fleslandsvegen 18
15.01.2026
Behov for tilleggsopplysninger, 112/126, Fleslandsvegen 18
12.01.2026
Søknad - 112/126/0/0 Fleslandsvegen 18, bruksendring bolig
—