ChangeOfUse Rammetillatelse Enebolig

Bruksendring i enebolig på Forhjellen 33, Molde

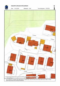
📍 Forhjellen 33 , 6411 MOLDE

Nøkkelinfo

Sakstype
Bruksendring
Bygningstype
Enebolig
Boenheter
1
Kommune
Molde
Fylke
Møre og Romsdal
Gnr / Bnr
21 / 185
Saksnummer
26/03388
Fase
Rammetillatelse

Om byggesaken

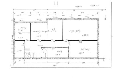
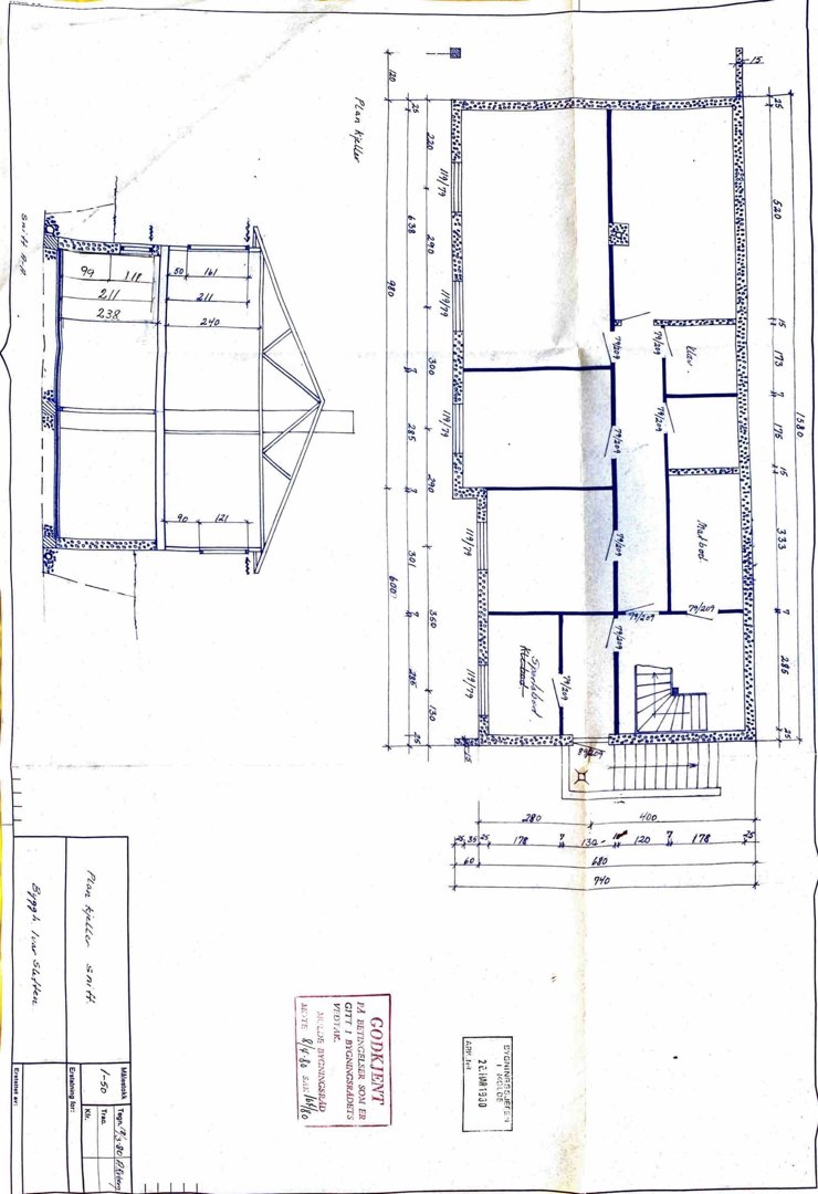
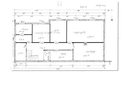
Bruksendring i en eksisterende enebolig på Forhjellen 33 i Molde, hvor flere rom i kjelleretasjen endres fra tilleggsdel til hoveddel. Dette inkluderer omgjøring av bod til bad, bod til kjellerstue, og hobby/sportsbod til soverom. Endringene innebærer tilpasning av romfunksjoner uten vesentlige bygningsmessige endringer som fasadeendringer eller nye konstruksjoner. Prosjektet omfatter også tilpasning av innvendige høyder og rommets planløsning i henhold til gjeldende regelverk.

Produkter og materialer

Elektro Elektriske installasjoner

Elektriske tilpasninger i forbindelse med bruksendring, inkludert belysning og stikkontakter

Oppgradering og tilpasning av elektriske anlegg i de nye rommene

Gulv Gulvbelegg og overflater

Tilpasning av gulv i de ombygde rommene i kjeller

Nye gulvbelegg og overflater i rom som endres til hoveddel

Bad Badromsutstyr og installasjoner

Oppgradering av bod til bad med nødvendige sanitærinstallasjoner

Installasjon av badromsutstyr og VVS for nytt badrom

Dører Innvendige dører

Nye eller tilpassede innvendige dører i forbindelse med romendring

Dører tilpasset nye romfunksjoner

Ventilasjon Ventilasjonsanlegg

Ventilasjonsløsninger tilpasset nye romfunksjoner, spesielt bad og soverom

Installasjon eller oppgradering av ventilasjon i ombygde rom

Isolasjon Isolasjon i vegger og tak

Isolasjon tilpasset nye romfunksjoner og krav til inneklima

Isolasjon av vegger og tak i ombygde rom

Tømrer Innvendige vegger og rominndeling

Endring av romfunksjon fra bod til bad, kjellerstue og soverom, inkludert tilpasning av innvendige høyder og planløsning

Arbeid med innvendige vegger og rominndeling for å tilpasse nye romfunksjoner

Hendelser

16.04.2026 26/03388-4 21/185/0/0 Forhjellen 33, tillatelse til bruksendring
16.04.2026 26/03388-5 21/185/0/0 Forhjellen 33, Supplering av søknad
25.03.2026 26/03388-3 Forhjellen 33, foreløpig tilbakemelding på søknad om bruksendring
17.03.2026 26/03388-1 21/185/0/0 Forhjellen 33, søknad bruksendring