ChangeOfUse UnderBehandling Enebolig

Bruksendring fra forsamlingslokale til bolig i Fosswinckels gate 18, Bergen

📍 Fosswinckels gate 18 , 5007 BERGEN

Nøkkelinfo

Sakstype
Bruksendring
Bygningstype
Enebolig
Boenheter
1
Kommune
Bergen
Fylke
Vestland
Gnr / Bnr
164 / 638
Saksnummer
BYGG-2025/13564
Fase
Under behandling

Om byggesaken

Bruksendring av del av 2. etasje i en eksisterende enebolig i Fosswinckels gate 18 fra forsamlingslokale tilbake til bolig. Bygningen er en eldre enebolig med 3 etasjer og saltak, beliggende i et bynært område i Bergen. Tiltaket omfatter etablering av ny boenhet med kjøkken, stue, soverom, bad og garderobe, samt oppgradering av brann- og lydskiller i bygget. Fasader og vinduer beholdes uendret i tråd med byantikvarens anbefalinger. Det er søkt dispensasjon fra plankrav og avstandskrav, og det planlegges ingen fasadeendringer eller utvendige konstruksjoner. Arealet for uteoppholdsareal og sykkelparkering er dokumentert på situasjonskart. Ny boenhet får rømningsvei via eksisterende trapper. Det er ikke behov for heis eller endring i antall boenheter. Teknisk oppgradering inkluderer lydisolering og energieffektivisering i henhold til søknad om fravik fra TEK.

Produkter og materialer

Grunnarbeid Ingen nye grunnarbeider

Ingen utgraving eller endring i grunn planlagt

Eksisterende grunn beholdes, ingen nye grunnarbeider

Elektro Elektrisk oppvarming

Oppvarming med direktevirkende elektrisitet, ingen pipe tilknyttet

Elektrisk oppvarming av boenhet

Terrasse Uteoppholdsareal

Uteoppholdsareal på bakplass ca. 15 m², dokumentert på situasjonskart

Uteoppholdsareal for ny boenhet på egen eiendom

Sykkelparkering Sykkelparkering på egen grunn

Antall: 2

2-3 sykkelparkeringsplasser langs nabogjerde på bakplass

Sykkelparkering for beboere dokumentert på situasjonskart

Vinduer Eksisterende vinduer

🧱 Tre, isolerglass

Antall: 5

Vinduer med isolerglass, u-verdi ca. 2,1 W/(m2K), beholdes uendret i fasade

Eksisterende vinduer i eneboligen beholdes uten endring i forbindelse med bruksendring

Dører Ytterdør i tre

🧱 Tre

Antall: 1

Eksisterende ytterdør beholdes, ingen fasadeendring

Eksisterende ytterdør i eneboligen beholdes

VVS Sanitærinstallasjon

Ny sanitærinstallasjon i boenhet, utført av B.FONDENES AUT RØRLEGGERFIRMA AS

Oppgradering og installasjon av sanitærutstyr i ny boenhet

Tømrer Brann- og lydskillende konstruksjoner

🧱 Gips, akustikkisolasjon

Etasjeskillere oppgraderes med to lag gips og ekstra lydhimling med ett lag gips og akustikkisolasjon for lydklasse C/D

Oppgradering av brann- og lydskiller i forbindelse med bruksendring til bolig

Rekkverk Trapper

Antall: 3

Eksisterende hovedtrapp og bi-trapp benyttes som rømningsvei for ny boenhet

Trapper for rømningsvei i bygget

Isolasjon Tilleggsisolasjon yttervegger

🧱 Mineralull

Tilleggsisolasjon på innside og utside av yttervegg, totalt 15 cm min.ull, reduserer u-verdi til ca. 1,0-1,2 W/(m2K)

Isolasjon for energieffektivisering av eksisterende yttervegger

Bad Våtrom med membran og fliser

Våtrom oppgraderes med membran og fliser i henhold til forskrift, utført av MURMESTER KÅRE BERGE AS

Oppgradering av bad i ny boenhet

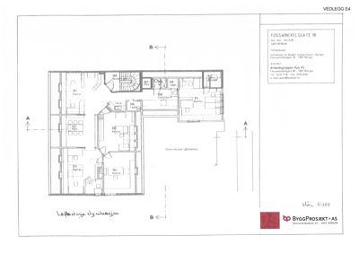
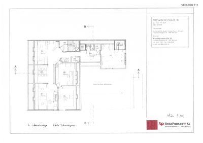
Plantegning

U. etasje 0.0 m²

Etasje 0 0.0 m²

Rom Areal Vinduer Dører
Bodega U01 0.0 m² 0 1
Lager U02 0.0 m² 0 1
Vintager U03 0.0 m² 0 1
Lager U05 0.0 m² 0 1
Lager U06 0.0 m² 0 0
Dusj/wc U07 0.0 m² 0 1
Personal U08 0.0 m² 0 1
Kontor U09 0.0 m² 0 1
Gard U04 0.0 m² 0 1
Bitrapp U10 0.0 m² 0 0
Kjøl U11 0.0 m² 0 0
Gang U00 0.0 m² 0 1
Kontor 301 0.0 m² 0 1
Møte 302 0.0 m² 0 1
Kontor 303 0.0 m² 0 1
Kontor 304 0.0 m² 0 1
Kontor 305 0.0 m² 0 1
Lager 306 0.0 m² 0 1
VVS 307 0.0 m² 0 1
Gang/gård 308 0.0 m² 0 0
WC 309 0.0 m² 0 1
Lager 310 0.0 m² 0 1
Gang 311 0.0 m² 0 1
Trapp 312 0.0 m² 0 1
Hovedtrapp 300 0.0 m² 0 0

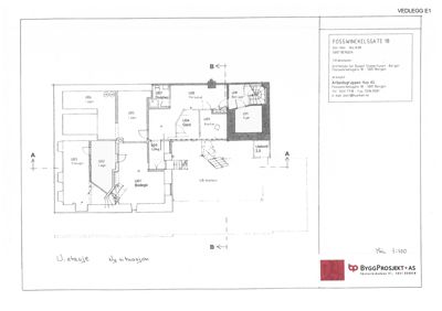
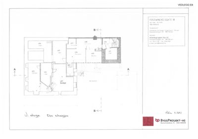
Enebolig 0.0 m²

Etasje 3 0.0 m²

Rom Areal Vinduer Dører
Hovedtrapp 300 0.0 m² 0 0
Kontor 301 0.0 m² 0 0
Møte 302 0.0 m² 0 0
Kontor 303 0.0 m² 0 0
Kontor 304 0.0 m² 0 0
Kontor 305 0.0 m² 0 0
Lager 306 0.0 m² 0 0
VVS 307 0.0 m² 0 0
Gang/gard 308 0.0 m² 0 0
Lager 310 0.0 m² 0 0
Kontor 311 0.0 m² 0 0
Entré 312 0.0 m² 0 0

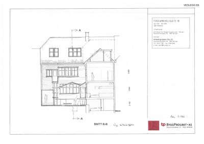
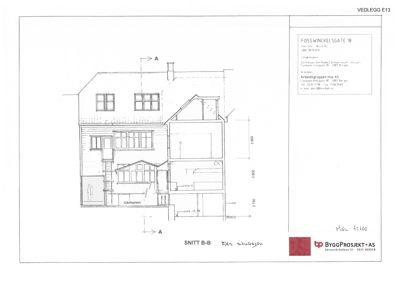
Fasader

Eksisterende Fasadefasade

Ukjent
Vinduer
8
Dører
1
Synlige etasjer
3

Enebolig

Sør
Materiale
Tre
Taktype
Saltak
Vinduer
5
Dører
1
Synlige etasjer
3

Hendelser

17.04.2026 Ber om tilleggsopplysninger - 164/638/0/0 Fosswinckels gate 18, bruksendring
16.04.2026 Fosswinckels gate 18 Søknad om igangsettingstillatelse 164/638
04.09.2025 Ubw ordre 20676024
20.08.2025 Rammetillatelse, 164/638, Fosswinckels gate 18
09.07.2025 Fosswinckels gate 18 Supplering av søknad 164/638
04.07.2025 Ber om dokumentasjon - 164/638/0/0 Fosswinckels gate 18, bruksendring
04.07.2025 Ekstern høring, 164/638. Plankrav
05.06.2025 Bekreftelse på mottatt søknad
03.06.2025 Fosswinckels gate 18 Søknad om rammetillatelse 164/638