ChangeOfUse Ferdigattest Enebolig

Bruksendring av loftetasje i enebolig, Fredlisletta 9

📍 Fredlisletta 9 , 3031 DRAMMEN

Nøkkelinfo

Sakstype
Bruksendring
Bygningstype
Enebolig
Boenheter
1
Kommune
Drammen
Fylke
Buskerud
Gnr / Bnr
81 / 315
Saksnummer
25/11002
Fase
Ferdigattest

Om byggesaken

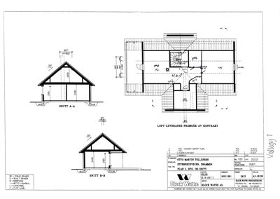
Loftet i eneboligen på Fredlisletta 9 er omgjort fra innredet loftsrom og bod til hoveddel med soverom, bad, TV-stue og bod. Endringen innebærer ingen vesentlige bygningsmessige tiltak, og eksisterende rømningsveier og dagslysforhold er tilfredsstillende. Loftetasje har standard takhøyde i henhold til gjeldende krav. Prosjektet omfatter bruksendring fra tilleggsdel til hoveddel uten nye konstruksjonsendringer eller fasadeendringer. Det foreligger godkjente tegninger fra 2001 og oppdaterte plantegninger som viser dagens situasjon.

Produkter og materialer

Grunnarbeid Ingen nye grunnarbeider

Ingen nye grunnarbeider da det er bruksendring i eksisterende bygg

Ingen grunnarbeider nødvendig for bruksendring

Bad Bad med sanitærutstyr

Antall: 1

Bad etablert i loftsetasje som del av bruksendring

Bad med nødvendige sanitærinstallasjoner i loftsetasje

Gulv Standard gulv i bolig

Standard gulv i loftsetasje, takhøyde og konstruksjon i henhold til forskrift

Gulv i loftsetasje tilpasset boligstandard

Elektro Elektrisk anlegg for boligrom

Elektrisk anlegg tilpasset bruksendring og nye romfunksjoner

Oppgradering eller tilpasning av elektrisk anlegg i loftsetasje

VVS Sanitærinstallasjoner bad

VVS-installasjoner for bad i loftsetasje

Rør og sanitærinstallasjoner for nytt bad i loftetasje

Tømrer Innvendige vegger og himling

Innvendige vegger og himling tilpasset ny rominndeling i loftetasje

Oppgradering og tilpasning av innvendige konstruksjoner i loftetasje

Vinduer Ytterveggsvindu

Vinduer i yttervegg er uendret, tilfredsstiller krav til dagslys og rømningsvei

Eksisterende vinduer i loftetasje som tilfredsstiller dagslys- og rømningskrav

Hendelser

14.04.2026 Fredlisletta 9, spørsmål vedrørende om ferdigattest omhandler garasjen
10.06.2025 Fredlisletta 9, ferdigattest for bruksendring av loftetasje
04.06.2025 Fredlisletta 9, søknad om ferdigattest
11.04.2025 Fredlisletta 9, tillatelse til bruksendring av loftetasje
25.03.2025 Fredlisletta 9, oversendelse av papir søknad om bruksendring
17.03.2025 Fredlisletta 9, søknad om bruksendring