ChangeOfUse UnderBehandling Enebolig

Bruksendring og fasadeendring på enebolig, Gamle Kongeveg 11

📍 Gamle Kongeveg 11 , 2166 OPPAKER

Nøkkelinfo

Sakstype
Bruksendring
Bygningstype
Enebolig
Bruksareal
245 m²
Boenheter
1
Kommune
Nes
Fylke
Akershus
Gnr / Bnr
136 / 182
Saksnummer
2026/969
Fase
Under behandling

Om byggesaken

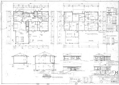
Prosjektet omfatter bruksendring av kjellerareal på 73,2 m² fra tilleggsdel til hoveddel i en enebolig oppført i 1975, beliggende på Gamle Kongeveg 11, Oppaker. Kjelleren utvides ved utgraving til full romhøyde, inkludert fjerning av bærevegg og etablering av ny kjellernedgang på fasade vest. Det utføres mindre fasadeendringer med utvidelse og etablering av nye rømningsvinduer med lysgrav. Kjelleren innredes med rom for varig opphold, inkludert soverom, bad, kjøkken og stue. Bygningen har bindingsverkskonstruksjon med trepanel og saltak, og fasadene er i tre med stående og liggende bordkledning. Det er planlagt ny drenering og isolasjon rundt grunnmur. Prosjektet inkluderer også oppgradering av tekniske installasjoner og overflater i kjeller.

Produkter og materialer

Bad Bad og vaskerom

Antall: 2

Totalrenovering av bad og vaskerom i kjeller og 1. etasje, inkludert membran og sluk

Full rehabilitering av våtrom for å oppfylle dagens krav

Rekkverk Terrasse- og trapperekkverk

🧱 Tre

Rekkverk på terrasse og utvendig trapp må utbedres eller bygges nytt for å oppfylle dagens krav

Sikring av rekkverk på terrasse og trapp i henhold til forskrifter

VVS Vann- og avløpsinstallasjoner

Utskifting av vannledninger og avløpsrør vurderes, oppgradering av våtrom i kjeller

Oppgradering av vann- og avløpsinstallasjoner i forbindelse med bruksendring og rehabilitering

Trapper Innvendig trapp og ny kjellernedgang

🧱 Tre og betong

Antall: 1

Ny kjellernedgang på fasade vest, eksisterende innvendig trapp mellom etasjer

Ny kjellernedgang utvendig, samt eksisterende innvendig trapp i bolig

Maling Innvendig og utvendig maling

Maling av fasade, dører, vinduer og innvendige overflater etter rehabilitering

Oppfriskning og beskyttelse av treflater og innvendige overflater

Tak Saltak med stål/aluminium taktekking

🧱 Stål/aluminium plater

Taktekking med stål/aluminium plater, taktekking må påregnes utskiftet

Eksisterende saltak med taktekking i stål/aluminium, planlagt vedlikehold

Gulv Innvendige gulvbelegg og overflater

Utskifting av gulvbelegg i kjeller, stue og kjøkken, omfattende slitasje og skader

Oppgradering av gulvflater i hele bolig, spesielt kjeller

Grunnarbeid Utgraving kjeller

Utgraving og sprenging av kjeller til full romhøyde, inkludert ny kjellernedgang

Utgraving av kjellerareal for økt romhøyde og ny kjellernedgang på fasade vest

Mur Lysgrav

🧱 Betong og isolasjon

Antall: 3

Lysgrav for nye og utvidede rømningsvinduer i kjeller

Lysgrav tilpasset nye rømningsvinduer 1200x600 mm

Vinduer Rømningsvindu

🧱 Tretrekker med 2-lags glass

Antall: 6

Nye og utvidede vinduer 1200 x 600 mm, innadslående for rømningsformål

Rømningsvinduer i kjeller med lysgrav, tilpasset bruksendring

Kjøkken Kjøkkeninnredning

Antall: 1

Full utskiftning av kjøkkeninnredning med profilerte fronter og laminat benkeplate

Oppgradering av kjøkken i 1. etasje i forbindelse med rehabilitering

Isolasjon Isolasjon rundt grunnmur og i kjeller

Ny isolasjon og drenering rundt grunnmur i 2026

Isolasjon og drenering for å sikre fuktsikring og inneklima i kjeller

Fasade Kledning i tre

🧱 Stående og liggende bordkledning

Råteskadet trekledning må skiftes ut, fasadeendringer med mindre utvidelser av vinduer

Fasadeendringer med utvidelse av vinduer og utskifting av råteskadet kledning

Dører Ytterdør og kjellerdør i tre

🧱 Tre

Antall: 2

Hovedytterdør og kjellerdør, samt balkongdør malt i tre

Eksisterende ytterdører i tre, vurdert for oppgradering

Elektro Elektrisk anlegg og ventilasjon

Elektrisk anlegg fra byggeår må utvides og kontrolleres, mekanisk avtrekk på toalettrom må etableres

Oppgradering av elektrisk anlegg og ventilasjon i kjeller og bolig

Fasader

Enebolig

Vest
Materiale
Tre
Taktype
Saltak
Vinduer
1
Dører
0
Synlige etasjer
1
Øst
Materiale
Tre
Taktype
Flatt tak
Vinduer
3
Dører
1
Synlige etasjer
1
Nord
Materiale
Tre
Taktype
Saltak
Vinduer
2
Dører
0
Synlige etasjer
1
Sør
Materiale
Tre
Taktype
Saltak
Vinduer
2
Dører
1
Synlige etasjer
1

Hendelser

20.04.2026 Supplering av søknad - Gbnr 136/182 - Gamle Kongeveg 11
14.04.2026 Tilbakemelding om mangler - Gbnr 136/182 - Gamle Kongeveg 11 - Bruksendring fra tilleggsdel til hoveddel og fasadeendring - Bolig
09.04.2026 Supplering av søknad - Gbnr 136/182 - Gamle Kongeveg 11 - Bruksendring fra tilleggsdel til hoveddel og fasadeendring - Bolig
26.03.2026 Tilbakemelding om mangler - Gbnr 136/182 - Gamle Kongeveg 11 - Bruksendring fra tilleggsdel til hoveddel og fasadeendring - Bolig
03.03.2026 Søknad om tillatelse i ett trinn - Gbnr 136/182 - Gamle Kongeveg 11 - Bruksendring fra tilleggsdel til hoveddel - Bolig