ChangeOfUse Soeknad Enebolig

Bruksendring av kjeller til hoveddel i Gilboveien 25

📍 Gilboveien 25 , 1680 SKJÆRHALDEN

Nøkkelinfo

Sakstype
Bruksendring
Bygningstype
Enebolig
Bruksareal
188 m²
Boenheter
1
Kommune
Hvaler
Fylke
Østfold
Gnr / Bnr
5 / 146
Saksnummer
2026/476
Fase
Søknad

Om byggesaken

Bruksendring av eksisterende kjeller i en enebolig på 187,8 m² fra tilleggsdel (boder og grovkjeller) til hoveddel med stue/kjøkken, soverom, bad, vaskerom/teknisk rom og flere boder. Ombyggingen skjer innenfor eksisterende bygningsvolum uten fasadeendringer eller endringer i bygningsmessige ytre rammer. Kjelleretasjen får en ny hybelfunksjon med åpen stue/kjøkkenløsning og separate rom. Eksisterende vinduer oppfyller krav til rømningsvei og dagslys, og det er ingen behov for nye vindusåpninger. Prosjektet omfatter kun innvendig omdisponering og bruksendring.

Produkter og materialer

VVS Vaskerom/teknisk rom i kjeller

Antall: 1

Vaskerom/teknisk rom på 5,5 m² med nødvendige VVS-installasjoner

Oppgradering av tekniske installasjoner i kjeller

Elektro Elektriske installasjoner i kjeller

Oppgradering av elektriske anlegg i kjeller for ny bruksendring

Elektrisk arbeid for belysning, stikkontakter og tekniske installasjoner

Maling Innvendig maling og overflatebehandling

Maling og overflatebehandling av vegger og tak i kjeller

Overflatebehandling for ferdigstillelse av oppholdsrom

Vinduer Kjelleretasjens eksisterende vinduer

Antall: 3

Eksisterende vinduer oppfyller krav til rømningsvei og dagslys, ingen nye vindusåpninger planlagt

Bruk av eksisterende kjellervinduer uten endringer

Isolasjon Isolasjon i kjellervegger og tak

Isolasjon for å oppgradere kjeller til oppholdsrom i henhold til TEK17

Isolasjon for varme, lyd og fuktbeskyttelse i kjeller

Bad Bad i kjelleretasjen

Antall: 1

Bad på 4,2 m² i kjeller med nødvendige sanitærinstallasjoner

Oppgradering/innredning av bad i kjeller

Gulv Gulvbelegg i kjeller

Nye gulvflater tilpasset oppholdsrom i kjeller

Legging av gulv i kjeller for stue/kjøkken og soverom

Dører Innvendige dører i kjelleretasjen

Antall: 10

Dører til soverom, bod, bad, gang og teknisk rom i kjelleretasjen

Nye og/eller eksisterende innvendige dører for romdisponering i kjeller

Tømrer Innvendig ombygging og rominnredning

Ombygging av boder og grovkjeller til stue/kjøkken, soverom, bad og vaskerom innen eksisterende bygningsstruktur

Innvendig konstruksjonsarbeid for bruksendring og romdisponering

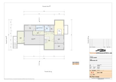
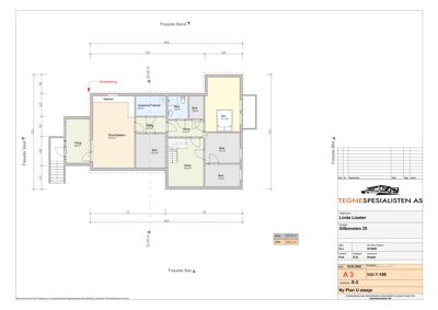
Plantegning

Enebolig 375.6 m²

Etasje 1 187.8 m²

Rom Areal Vinduer Dører
Soverom Sov 13.5 m² 0 1
Soverom Sov 10.6 m² 0 1
Soverom Sov 8.5 m² 0 1
Gang Gang 14.7 m² 0 3
Stue Stue 36.1 m² 2 1
Kjøkken Kjøkken 20.6 m² 1 1
Vaskerom V.F 2.4 m² 0 1
Bad Bad 5.6 m² 0 1
Wc Vc 3.3 m² 0 1
Vaskerom Vaskerom 3.1 m² 0 1
Terrasse Terrasse 44.6 m² 0 1
Terrasse Terrasse 17.0 m² 0 1
Vinterhage Vinterhage 18.8 m² 4 1
Toalett Wc 3.3 m² 0 1
Kjøkken Kjokken 20.6 m² 1 1

Etasje 0 187.8 m²

Rom Areal Vinduer Dører
Gang Gang 9.8 m² 0 2
Stue/Kjøkken Stue/Kjøkken 27.5 m² 1 0
Kjøkken Kjøkken 0.0 m² 1 0
Bod Bod 9.3 m² 0 1
Gang Gang 4.2 m² 0 1
Vaskerom/Teknisk Vaskerom/Teknisk 5.5 m² 0 0
Gang Gang 5.4 m² 0 2
Bad Bad 4.2 m² 0 1
Bod Bod 3.0 m² 0 1
Soverom Sov 17.1 m² 1 1
Bod Bod 9.7 m² 0 1
Gang Gang 15.9 m² 0 2
Bod Bod 7.2 m² 0 1
Gang 001 9.8 m² 0 1
Grov kjeller 002 27.3 m² 0 1
Gang 003 21.6 m² 0 2
Bod 004 7.6 m² 0 1
Vaskerom/Teknisk 005 5.5 m² 0 1
Bad 006 4.2 m² 0 1
Bod 007 3.0 m² 0 1
Sov 008 17.1 m² 0 1
Lager 009 9.7 m² 0 1
Lager 010 7.2 m² 0 1

Fasader

Enebolig

Sør
Materiale
Tre
Taktype
Saltak
Takmat.
Tegl
Vinduer
5
Dører
1
Balkonger
1
Synlige etasjer
1
Øst
Materiale
Tre
Taktype
Saltak
Takmat.
Tegl
Vinduer
6
Dører
1
Balkonger
1
Synlige etasjer
1
Nord
Materiale
Tre
Taktype
Saltak
Vinduer
2
Dører
1
Synlige etasjer
2
Vest
Materiale
Tre
Taktype
Saltak
Vinduer
3
Dører
1
Balkonger
1
Synlige etasjer
2

Hendelser

14.04.2026 Supplering av søknad - bruksendring fra tilleggsdel til hoveddel - kjeller - 5/146 - Gilboveien 25
07.04.2026 Melding om frittliggende bygning eller tilbygg som er unntatt søknadsplikt - 5/146 - Gilboveien 25
06.03.2026 Søknad uten ansvarsrett - bruksendring fra tilleggsdel til hoveddel - kjeller - 5/146 - Gilboveien 25