ChangeOfUse Soeknad Enebolig

Bruksendring og fasadeendring på enebolig i Gravdalsveien 48B

📍 Gravdalsveien 48B , 5165 LAKSEVÅG

Nøkkelinfo

Sakstype
Bruksendring
Bygningstype
Enebolig
Bruksareal
210 m²
Boenheter
1
Kommune
Bergen
Fylke
Vestland
Gnr / Bnr
146 / 148
Saksnummer
BYGG-2026/12330
Fase
Søknad

Om byggesaken

Bruksendring av deler av kjeller fra tilleggsdel til hoveddel i en enebolig på 210 m². Fasadeendringer inkluderer utskifting av vinduer fra oppdelte til større felt, ny skyvedør i stue, og innsetting av nytt vindu på kjøkken. Det er også legalisering av innbygging av opprinnelig overbygd terrasse ved stuen. Bygget har saltak og trekledning, med pipe og flere vinduer og dører fordelt på alle fasader. Endringene påvirker både fasade og innvendig rombruk, og tiltaket krever dispensasjon fra plankrav og avstand til vassdrag.

Produkter og materialer

Vinduer Fasadevindu

🧱 Tre med 3-lags energiglass

Antall: 14

Utskifting fra oppdelte vinduer til større felt, inkludert nytt vindu til kjøkken

Nye fasadevinduer i tre med energiglass for stue, kjøkken og soveromsavdeling

Grunnarbeid Ingen nye grunnarbeider

Ingen endring i grunnarbeid oppgitt, tiltak gjelder bruksendring og fasade

Ingen nye grunnarbeider nødvendig for dette tiltaket

Tømrer Montering av trekonstruksjoner

🧱 Tre

Tømrerarbeid for fasadeendring, ombygging og bruksendring

Tømrerarbeid knyttet til montering av nye vinduer, dører og innbygging av terrasse

Trapper Innvendig trapp

Antall: 1

Eksisterende trapp i enebolig, ingen endring spesifisert

Innvendig trapp i enebolig, sannsynlig nødvendig for bruksendring i kjeller

Maling Utvendig maling

Maling av ny og eksisterende trefasade etter endring

Utvendig maling av trefasade etter fasadeendring

Dører Skyvedør i stue

🧱 Tre eller aluminium, spesifikk materiale ikke oppgitt

Antall: 1

Skyvedør med tre felt, alternativt folde skyvedør

Ny skyvedør i stue som del av fasadeendring

Isolasjon Isolasjon i vegger og tak

Forbedring eller tilpasning av isolasjon ved fasadeendring og innbygging av terrasse

Isolasjon i vegger og tak ved ombygging og fasadeendring

Fasade Tre kledning

🧱 Tre

Fasade i tre med saltak, endringer i fasade ved vinduer og dører

Fasadeendring med utskifting av vinduer og dører, samt innbygging av terrasse

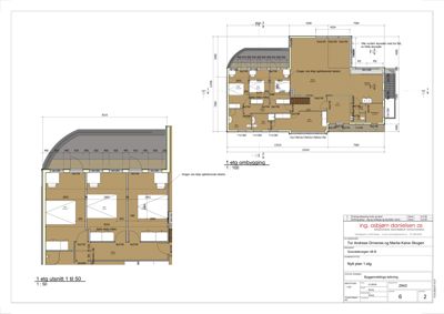
Plantegning

Enebolig 210.1 m²

Etasje 1 210.1 m²

Rom Areal Vinduer Dører
Stue 101 80.2 m² 3 2
Kjøkken 102 19.3 m² 1 1
Gang 103 7.3 m² 0 2
Bad 104 5.5 m² 0 1
Toalett 105 2.4 m² 0 1
Sov 1 106 13.4 m² 1 1
Sov 2 107 12.0 m² 1 1
Sov 3 108 11.0 m² 1 1
Arbeidsrom 109 5.7 m² 1 1
Vaskerom 110 10.8 m² 1 1
Bod 111 7.8 m² 1 1
Bod 112 5.5 m² 1 1

Fasader

Enebolig

Aust
Materiale
Tre
Taktype
Saltak
Vinduer
4
Dører
1
Synlige etasjer
1
Nord
Materiale
Tre
Taktype
Saltak
Vinduer
6
Dører
2
Synlige etasjer
1
Vest
Materiale
Tre
Taktype
Saltak
Vinduer
4
Dører
1
Synlige etasjer
1
Sør
Materiale
Tre
Taktype
Saltak
Vinduer
5
Dører
1
Balkonger
1
Synlige etasjer
1

Hendelser

13.04.2026 Gravdalsveien 48B, anmodning om uttalelse
13.04.2026 Intern høring 146/148/0/0 Gravdalsveien 48B, bruksendring fra tilleggsdel til hoveddel
10.04.2026 Bekreftelse på mottatt søknad
07.04.2026 Gravdalsveien 48B Søknad om tillatelse i ett trinn 146/148