ChangeOfUse UnderBehandling Enebolig

Bruksendring og tilbygg på enebolig i Grimstadvegen 46, Bergen

📍 Grimstadvegen 46 , 5252 SØREIDGREND

Nøkkelinfo

Sakstype
Bruksendring
Bygningstype
Enebolig
Bruksareal
340 m²
Boenheter
1
Kommune
Bergen
Fylke
Vestland
Gnr / Bnr
34 / 20
Saksnummer
BYGG-2024/16878
Fase
Under behandling

Om byggesaken

Prosjektet omfatter bruksendring fra tilleggsdel til hoveddel i en eksisterende enebolig, samt oppføring av et tilbygg med et samlet nytt bruksareal på ca. 163,6 m². Den totale bygningsmassen etter tiltaket vil ha et bruksareal på ca. 339,9 m². Tilbygget er planlagt i to etasjer med saltak og trekledning, og inkluderer blant annet hall med garderobeplass, stue, kjøkken og flere soverom. Det foreligger også legalisering av tidligere utførte tiltak. Bygningen har flere balkonger og pipe, og fasadene er utført i tre med saltak. Det er én trapp i bygget. Tiltaket krever dispensasjon fra reguleringsplanens utnyttelsesgrad og avstandskrav til vei. Det er dokumentert at tiltaket ikke påvirker natur- og friluftslivsinteresser negativt.

Produkter og materialer

Garasjeport Garasjeport

Antall: 1

Garasjeport på fasade sør

VVS Rørleggerarbeid

Rørleggerarbeid utført av A&Å Rørlegger

VVS-installasjoner i tilbygg og eksisterende bygg

Elektro Elektriske installasjoner

Elektriske installasjoner i tilbygg og eksisterende bygg

Tømrer Tømrerarbeid

Utførelse av tømrerarbeid og montering av trekonstruksjoner i tiltaksklasse 1 av Byggmester Stian Persson AS

Tømrerarbeid for tilbygg og bruksendring

Ventilasjon Ventilasjonsanlegg

Ventilasjonsanlegg iht. tekniske krav

Maling Innvendig og utvendig maling

Maling av fasader og innvendige flater

Trapper Innvendig trapp

Antall: 1

Innvendig trapp mellom etasjer

Vinduer Fasadevindu

Antall: 50

Fasadevindu i flere størrelser fordelt på alle fasader

Tak Saltak

🧱 Tre

Saltak med gesimshøyde ca. 6,14 m og mønehøyde ca. 8,6 m

Tak med saltak konstruksjon

Fasade Trekledning

🧱 Tre

Fasader i tre med saltak

Yttervegger kledd med trepanel, saltak med tre som takkonstruksjon

Gulv Innvendige gulv

Innvendige gulv i tilbygg og eksisterende bygg

Grunnarbeid Fundamentering og grunnarbeid

PRO og UTF grunnarbeid bekreftet av Norsk Skadekontroll AS

Grunnarbeid og fundamentering for tilbygg

Bad Sanitærutstyr og fliser

Bad i flere etasjer, inkludert dusj/WC og vaskerom

Bad og sanitærrom med nødvendig utstyr og overflater

Terrasse Balkonger og verandaer

🧱 Tre

Antall: 2

To balkonger og en veranda i tilknytning til tilbygg

Utendørs balkonger og verandaer i tre

Dører Ytterdører og balkongdører

Antall: 12

Ytterdører og balkongdører fordelt på fasader og balkonger

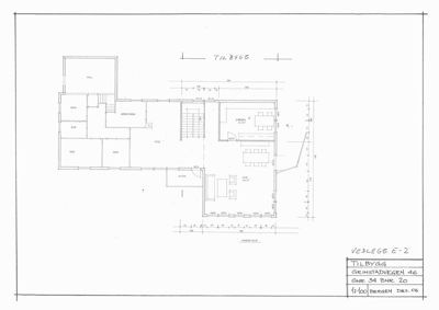
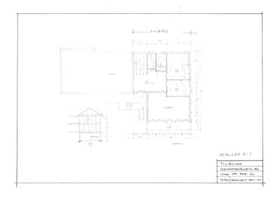
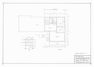
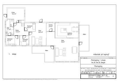
Plantegning

Enebolig 339.1 m²

Etasje 1 206.8 m²

Rom Areal Vinduer Dører
Entre 101 14.3 m² 0 1
Bad 102 7.1 m² 0 1
Gang 103 13.4 m² 0 2
Soverom 104 6.5 m² 0 1
Stue 105 24.5 m² 0 1
Kontor 106 5.4 m² 0 1
Kjøkken 107 26.5 m² 0 0
Stue 108 50.0 m² 0 0
Soverom 109 9.1 m² 0 1
Soverom 110 6.5 m² 0 1

Etasje 0 132.3 m²

Rom Areal Vinduer Dører
Entre 001 9.5 m² 0 1
Stue 002 13.8 m² 1 1
Soverom 003 6.1 m² 1 1
Vaskerom 004 0.0 m² 0 0
Bad 005 5.7 m² 0 1
Gang/trapp/teknisk 006 9.0 m² 0 1
Teknisk 007 0.0 m² 0 0
Bad 008 8.7 m² 0 1
Bod 009 4.7 m² 0 1
Gang 010 4.5 m² 0 2
Soverom 011 11.1 m² 0 1
Soverom 012 5.8 m² 0 1
Kjeller 0 0.0 m² 0 0
Hall 101 0.0 m² 0 1
Gardenbod 102 0.0 m² 0 1
Dus/WC 103 0.0 m² 0 1
Sove 104 0.0 m² 0 1
Sove 105 0.0 m² 0 1
Kjellerstue 106 0.0 m² 0 1
Altan 107 0.0 m² 0 0

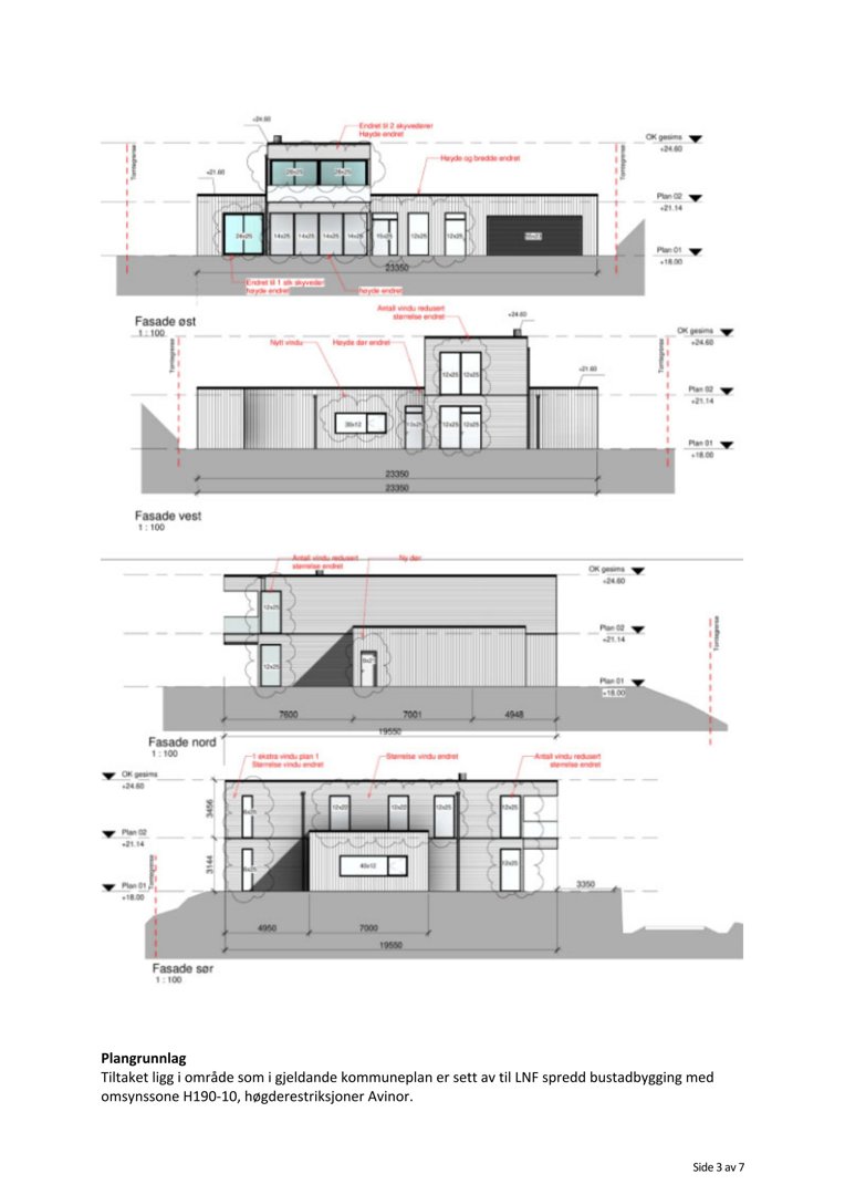
Fasader

Enebolig

Nord-Vest
Materiale
Tre
Taktype
Saltak
Vinduer
2
Dører
0
Synlige etasjer
1
Sør-Vest
Materiale
Tre
Taktype
Saltak
Vinduer
2
Dører
0
Synlige etasjer
1
Sør-Øst
Materiale
Tre
Taktype
Saltak
Vinduer
2
Dører
1
Synlige etasjer
1
Nordøst
Materiale
Tre
Taktype
Saltak
Vinduer
10
Dører
1
Balkonger
2
Synlige etasjer
2
Sørøst
Materiale
Tre
Taktype
Saltak
Vinduer
3
Dører
2
Balkonger
1
Synlige etasjer
2
Sør Vest
Materiale
Tre
Taktype
Saltak
Vinduer
3
Dører
1
Synlige etasjer
1
Nord Vest
Materiale
Tre
Taktype
Saltak
Vinduer
6
Dører
0
Balkonger
2
Synlige etasjer
2
Øst
Materiale
Tre
Taktype
Saltak
Høyde
6.1 m
Mønehøyde
8.6 m
Vinduer
5
Dører
1
Synlige etasjer
2
Vest
Materiale
Tre
Taktype
Saltak
Høyde
6.1 m
Mønehøyde
8.6 m
Vinduer
2
Dører
1
Synlige etasjer
2
Nord
Materiale
Tre
Taktype
Saltak
Høyde
6.1 m
Mønehøyde
8.6 m
Vinduer
5
Dører
1
Synlige etasjer
2
Sør
Materiale
Tre
Taktype
Saltak
Høyde
6.1 m
Mønehøyde
8.6 m
Vinduer
5
Dører
1
Synlige etasjer
2
Nord Øst
Materiale
Tre
Taktype
Saltak
Vinduer
10
Dører
1
Balkonger
2
Synlige etasjer
2
Syd Øst
Materiale
Tre
Taktype
Saltak
Vinduer
3
Dører
1
Balkonger
2
Synlige etasjer
2

Hendelser

13.06.2025 Fakturagrunnlag
13.06.2025 Ubw ordre 20671876 Tilbygg, bruksendring.
03.06.2025 Tillatelse til tiltak med ansvarsrett, 34/20, Grimstadvegen 46
08.04.2025 2024/155404-7 - Intern høring - Svar fra Bymiljøetaten
08.04.2025 Uttalelse til sak- 34/20/0/0 Grimstadvegen 46, bruksendring fra tilleggsdel til hoveddel
28.03.2025 Uttale - 34/20/0/0 Grimstadvegen 46, bruksendring fra tilleggsdel til hoveddel
24.03.2025 Grimstadvegen 46, anmodning om uttalelse
24.03.2025 Intern høring
24.03.2025 sak BYGG - 202/16878
12.03.2025 Bekreftelse på mottatt søknad
11.03.2025 Grimstadvegen 46 Søknad om tillatelse i ett trinn 34/20
20.12.2024 Bekreftelse utsatt frist for innsending tilleggsopplysninger - 34/20/0/0 Grimstadvegen 46, bruksendring fra tilleggsdel til hoveddel
17.12.2024 Til sak, oppsummering telefonsamtale- 34/20/0/0 Grimstadvegen 46, bruksendring fra tilleggsdel til hoveddel
05.11.2024 Mangler ved søknad - 34/20/0/0 Grimstadvegen 46, bruksendring fra tilleggsdel til hoveddel
30.10.2024 Grimstadvegen 46 Supplering av søknad 34/20
10.10.2024 1-Foreløpig tilbakemelding på søknad om bruksendring fra tilleggsdel til hoveddel
09.10.2024 Grimstadvegen 46 Søknad om tillatelse i ett trinn 34/20