ChangeOfUse Soeknad Enebolig

Bruksendring og fasadeendring i enebolig, Grindveien 17

📍 Grindveien 17 , 8050 TVERLANDET

Nøkkelinfo

Sakstype
Bruksendring
Bygningstype
Enebolig
Bruksareal
108 m²
Boenheter
1
Kommune
Bodø
Fylke
Nordland - Nordlánnda
Gnr / Bnr
70 / 92
Saksnummer
2026/16034
Fase
Søknad

Om byggesaken

Prosjektet omfatter bruksendring i kjelleretasjen av en eksisterende enebolig på Grindveien 17, med tilhørende fasadeendringer. Kjelleren ombygges til oppholdsrom med nye vinduer som utvides og byttes ut med trelags støydempende glass, samt en ny dør settes inn i vestveggen for å tilfredsstille krav til lys, støy og rømningsveier. Fasadeendringene gjelder alle fire fasader med markerte nye vinduer og dører. Bygget har saltak og flatt tak på ulike fasader, og eksisterende pipe beholdes. Arealet av boligen er ca. 108,5 m² med flere rom i kjeller og hovedetasje. Tiltaket inkluderer også isolasjon av grunnmur og tekniske løsninger for støy og rømningskrav.

Produkter og materialer

Vinduer Sidehengslet, innadslående vinduer

🧱 Tre med 3-lags støydempende glass

Antall: 4

Trelags energiglass med støydempende folie, maks 100 cm fra gulv til underkant vindu for rømningsvei

Utskifting og utvidelse av fire kjellervinduer for bedre lys, støyisolasjon og rømningsmulighet

Tømrer Tømrerarbeid i kjeller

Montering av trekonstruksjoner i forbindelse med ombygging til oppholdsrom

Tømrerarbeid for ombygging av kjeller til varig oppholdsrom

Isolasjon Grunnmur isolasjon

Isolasjon utvendig og innvendig på grunnmur for støy og varmeisolasjon

Isolasjon av grunnmur i kjeller for bedre termisk og akustisk komfort

Gulv Gulvbelegg i kjeller

Nye gulvbelegg tilpasset oppholdsrom i kjeller

Gulvbelegg for oppholdsrom i kjeller

Fasade Endring av fasade i kjelleretasjen

🧱 Betong og treverk

Fasadeendringer med markering av nye vinduer og dør, isolasjon av grunnmur utvendig og innvendig

Fasadeendring for å tilpasse nye vinduer og dør, samt isolasjon for støyreduksjon

Ventilasjon Ventilasjon i kjeller

Ventilasjonsløsninger tilpasset bruksendring til oppholdsrom

Ventilasjon for å sikre luftkvalitet i ombygget kjeller

Dører Ytterdør i kjeller, ny dør i vestvegg

Antall: 1

Dør settes inn i vestveggen for å tilfredsstille krav til rømningsvei og lys

Ny dør i kjeller for adkomst og rømningsvei

Bad Bad/WC i kjeller

Antall: 1

Eksisterende bad i kjeller opprettholdes, muligens oppgradert i forbindelse med bruksendring

Bad/WC i kjeller som del av bruksendring

Elektro Elektrisk installasjon i kjeller

Elektriske installasjoner tilpasset ny bruk av kjellerrom

Oppgradering eller ny installasjon av elektrisk anlegg i kjeller

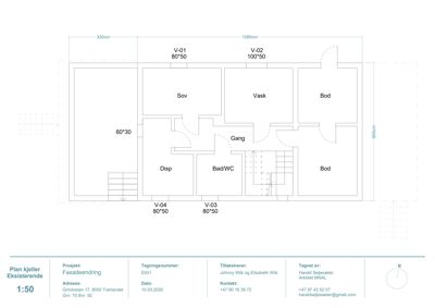
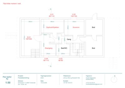
Plantegning

Enebolig 108.5 m²

Etasje 0 108.5 m²

Rom Areal Vinduer Dører
Sov V-01 40.0 m² 1 1
Vask V-02 50.0 m² 1 1
Bad/WC V-03 40.0 m² 0 1
Disp V-04 40.0 m² 1 1
Gang Gang 18.5 m² 0 0
Bod Bod 25.0 m² 0 1
Bod Bod 25.0 m² 0 1
Opphold/Kjøkken U-01 86.8 m² 1 2
Soverom U-02 69.3 m² 1 1
Gang U-03 24.6 m² 0 4
Disp/gang U-04 79.2 m² 1 2
Bad/WC U-05 44.0 m² 0 1
Bod U-06 38.5 m² 0 1
Bod U-07 26.0 m² 0 1

Fasader

Enebolig

Øst
Taktype
Saltak
Vinduer
4
Dører
2
Balkonger
1
Synlige etasjer
3
Sør
Vinduer
4
Dører
0
Balkonger
2
Synlige etasjer
2
Nord
Materiale
Betong
Taktype
Flatt tak
Vinduer
3
Dører
0
Balkonger
1
Synlige etasjer
2
Vest
Taktype
Saltak
Vinduer
4
Dører
1
Synlige etasjer
2

Eksisterende

Sør
Vinduer
5
Dører
0
Balkonger
2
Synlige etasjer
2

Hendelser

10.04.2026 Ett-trinns søknad - Grindveien 17
10.04.2026 Bekreftelse på mottatt søknad - Grindveien 17