ChangeOfUse Soeknad Enebolig

Bruksendring og fasadeendring i Hellig Olavs gate 36A, Ålesund

📍 Hellig Olavs gate 36A , 6006 ÅLESUND

Nøkkelinfo

Sakstype
Bruksendring
Bygningstype
Enebolig
Bruksareal
188 m²
Boenheter
4
Kommune
Ålesund
Fylke
Møre og Romsdal
Gnr / Bnr
120 / 52
Saksnummer
2026/6829
Fase
Søknad

Om byggesaken

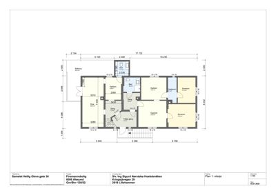
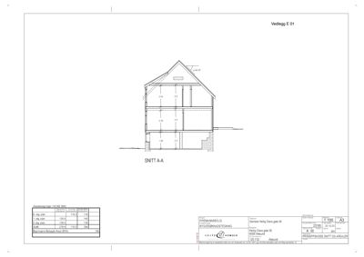
Bruksendring av kjellerbod på 17,2 m² til oppholdsrom (soverom) i en enebolig med totalt 187,6 m² BRA. Det er etablert ny intern trapp mellom kjeller og 1. etasje, som forbinder det bruksendrede rommet med overliggende boenhet. Nye brann- og lydskillende vegger med brannmotstand EI 60 og lydreduksjonstall R'w ≥ 55 dB er etablert mellom boenhet og felles gang i 1. etasje, samt mellom bod og kjellergang. Fasadeendring omfatter utskifting av et vindu i 1. etasje til dør med utgang til terrasse, tilpasset bygningens symmetri og arkitektoniske uttrykk. Bygningen er oppført ca. 1926 med senere tilbygg og endringer, og tiltaket innebærer ikke økning i antall boenheter eller areal. Det er dokumentert behov for utbedringer av brann- og lydskiller for å oppfylle dagens krav.

Produkter og materialer

Trapper Innvendig trapp mellom kjeller og 1. etasje

🧱 Tre med bjelkelag

Antall: 1

Intern trapp etablert på 1980-tallet, vurdert som robust og forskriftsmessig, bredde minimum 0,8 m

Ny intern trapp som forbinder kjellerbod med overliggende boenhet

Brannvern Røykdetektorer og håndslukkeutstyr

Multikriteriedetektor anbefalt i bruksendret areal, håndslukkeutstyr i boenheten

Brannforebyggende utstyr for økt personsikkerhet

Vinduer Fasadevindu i 1. og 2. etasje

🧱 Tre, antatt med isolerglass

Antall: 14

Vinduer i fasade opprettholdt i symmetri, noen utskiftet i tidligere vedlikehold

Eksisterende vinduer i fasade, delvis utskiftet i 1985, opprettholdt i fasadeendring

Gulv Gulvbelegg og lister

Sparkling og maling av vegger, montering av tak- og gulvlister ved utbedring

Overflatebehandling og listverk ved utbedring av vegger i kjeller

Ventilasjon Ventilasjonssystem

Ingen nye ventilasjonsinstallasjoner planlagt i tiltaket

Eksisterende ventilasjon opprettholdes uten endringer

Elektro Brannalarmanlegg

Automatisk brannalarmanlegg kategori 2 med detektorer i kjøkken, stue, soverom, trapp og kjeller

Brannalarmanlegg installert for tidlig oppdagelse av brann i boenhetene

Fasade Trepanel og kledning

🧱 Tre

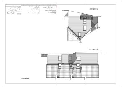
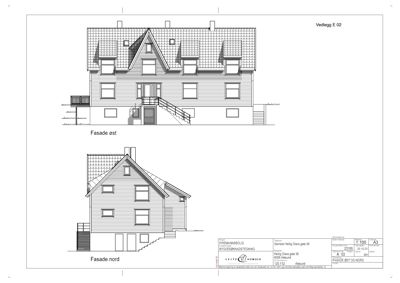
Fasade i tre med saltak, fasadeendring med dør i 1. etasje

Fasade i tre med saltak, opprettholdt arkitektonisk uttrykk ved fasadeendring

Isolasjon Steinull isolasjon i vegger

🧱 Steinull (Rockwool)

100-175 mm steinull i brann- og lydskillende vegger

Isolasjon for brannmotstand og lydisolasjon i nye vegger

Dører Ytterdør til terrasse i 1. etasje

🧱 Tre med glassfelt

Antall: 1

Dør plassert i samme akse som opprinnelig vindu, noe bredere, tilpasset fasadens symmetri

Ny ytterdør som erstatter vindu i 1. etasje, gir utgang til terrasse

Brannvern Brann- og lydskillende vegger

🧱 Stendere i tre, steinull isolasjon, gipsplater, branngips, panel

Brannmotstand EI 60, lydreduksjon R'w ≥ 55 dB, utbedring med branngips og isolasjon anbefalt

Nye brann- og lydskillende vegger mellom boenhet og felles gang i 1. etasje og mellom bod og kjellergang

Fasader

Enebolig

Vest
Materiale
Tre
Taktype
Saltak
Vinduer
3
Dører
0
Balkonger
1
Synlige etasjer
2
Sør
Materiale
Tre
Taktype
Saltak
Vinduer
4
Dører
0
Balkonger
1
Synlige etasjer
2

FIREMANNSBOLIG

Øst
Materiale
Tre
Taktype
Saltak
Takmat.
Tegl
Vinduer
9
Dører
1
Balkonger
1
Synlige etasjer
3
Nord
Materiale
Tre
Taktype
Saltak
Takmat.
Tegl
Vinduer
4
Dører
2
Synlige etasjer
3

Hendelser

22.04.2026 Gbnr. 120/52 - Søknad om tillatelse i ett trinn - Hellig Olavs gate 36A - Bruksendring bod til oppholdsrom, endring av brann- og lydskille og fasade