ChangeOfUse Ferdigattest Enebolig

Bruksendring i enebolig på Hjellestadvarden 2, Bergen

📍 Hjellestadvarden 2 , 5259 HJELLESTAD

Nøkkelinfo

Sakstype
Bruksendring
Bygningstype
Enebolig
Bruksareal
180 m²
Boenheter
1
Kommune
Bergen
Fylke
Vestland
Gnr / Bnr
105 / 343
Saksnummer
BYGG-2026/00964
Fase
Ferdigattest

Om byggesaken

Bruksendring av 43 m² i kjelleretasjen i en eksisterende enebolig på Hjellestadvarden 2. Kjelleretasjen på 80 m² inneholder rom som hobbyrom, garasje, vaskerom og bod, hvor deler av kjelleren omdisponeres fra tilleggsdel til hoveddel bolig. Det er ikke utført nye bygningsmessige arbeider, men tidligere senking av gulv for bedre romhøyde er godkjent. Bygget er en to-etasjes trehus med saltak, flere balkonger og pipe, totalt 180 m². Tiltaket utløser ingen fasadeendringer eller nye bygningsmessige tiltak, men krever vurdering av grunnvannsforhold og private ledninger i forbindelse med bruksendringen.

Produkter og materialer

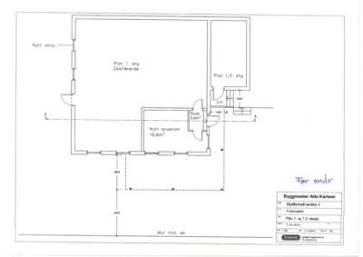
Vinduer Eksisterende vinduer i kjeller

🧱 Tre eller annet eksisterende materiale

Antall: 4

1 vindu i hobbyrom, 1 i garasje, 1 i vaskerom, 1 i bod

Eksisterende vinduer i kjelleretasjen som inngår i bruksendringsområdet

Grunnarbeid Vurdering av grunnvannsforhold

Vurdering av grunnvannsforhold i kjeller for å unngå vanninntrenging ved ombygging

Spesiell vurdering av grunnvannsforhold må gjøres før tiltaket utføres

VVS Rørtekniske vurderinger

Faglig vurdering av eksisterende private ledninger for økt belastning

Vurdering av kapasitet og kvalitet på private vann- og avløpsledninger i forbindelse med bruksendring

Tømrer Innvendige bygningsarbeider i kjeller

Utførelse av bygningsmessige arbeider i kjeller i forbindelse med bruksendring

Bygningsmessige arbeider for omdisponering av rom i kjeller fra tilleggsdel til hoveddel

Dører Innvendige og utvendige dører i kjeller

Antall: 4

Dører til hobbyrom, garasje, vaskerom og bod i kjeller

Eksisterende dører i kjelleretasjen som inngår i bruksendringsområdet

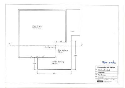
Plantegning

Enebolig 180.0 m²

Etasje 2 0.0 m²

Rom Areal Vinduer Dører
Stue 0 0.0 m² 0 0

Etasje 1 100.0 m²

Rom Areal Vinduer Dører
Stue 101 35.2 m² 3 2
Kjøkken 102 12.5 m² 1 1
Gang 103 8.0 m² 0 3
Soverom 104 12.0 m² 1 1
Bad 105 4.5 m² 0 1
Sov 106 8.0 m² 1 1
Sov 107 8.0 m² 1 1
Terrasse 108 15.0 m² 0 1

Etasje 0 80.0 m²

Rom Areal Vinduer Dører
Hobby 001 25.0 m² 1 1
Garasje 002 30.0 m² 1 1
Vaskerom 003 10.0 m² 1 1
Bod 004 15.0 m² 1 1

Fasader

Enebolig

Vest
Materiale
Tre
Taktype
Saltak
Høyde
6.5 m
Mønehøyde
8.2 m
Vinduer
3
Dører
1
Balkonger
1
Synlige etasjer
2
Øst
Materiale
Tre
Taktype
Saltak
Høyde
6.5 m
Mønehøyde
8.2 m
Vinduer
3
Dører
1
Balkonger
1
Synlige etasjer
2
Nord
Materiale
Tre
Taktype
Saltak
Høyde
6.5 m
Mønehøyde
8.2 m
Vinduer
8
Dører
1
Balkonger
1
Synlige etasjer
2
Sydøst
Materiale
Tre
Taktype
Saltak
Høyde
2.5 m
Vinduer
5
Dører
1
Synlige etasjer
1
Nordøst
Materiale
Tre
Taktype
Saltak
Høyde
2.5 m
Vinduer
1
Dører
1
Synlige etasjer
1

Hendelser

13.04.2026 Fakturagrunnlag
10.04.2026 Ferdigattest, 105/343, Hjellestadvarden 2
09.04.2026 Hjellestadvarden 2 Søknad om ferdigattest 105/343
23.03.2026 ubw ordre 20692625
13.03.2026 Tillatelse til tiltak med ansvarsrett, 105/343, Hjellestadvarden 2
11.03.2026 Hjellestadvarden 2 Supplering av søknad 105/343
10.03.2026 Behov for tilleggsopplysninger
05.03.2026 Uttale fra Bergen Vann
26.02.2026 Ber om status for saksbehandling- 105/343/0/0 Hjellestadvarden 2, bruksendring fra tilleggsdel til hoveddel
11.02.2026 Bekreftelse på mottatt søknad
10.02.2026 Hjellestadvarden 2 Søknad om tillatelse i ett trinn 105/343