ChangeOfUse Soeknad Enebolig

Bruksendring og fasadeendring på enebolig i Høgtunveien 10A, Asker

📍 Høgtunveien 10A , 1383 ASKER

Nøkkelinfo

Sakstype
Bruksendring
Bygningstype
Enebolig
Bruksareal
279 m²
Boenheter
1
Kommune
Asker
Fylke
Akershus
Gnr / Bnr
3 / 83
Saksnummer
26/1064
Fase
Søknad

Om byggesaken

Prosjektet omfatter bruksendring av kjellerareal fra tilleggsdel til hoveddel i en enebolig på 278,8 m², med omfattende innvendige endringer som nedpigging av gulv og etterisolering av yttervegger. Fasadeendringene inkluderer etablering av nye vinduer og utvidelse av eksisterende vinduer, endring av fasadefarge og vinduskarmer, samt utvidelse av terrasse. Pipen skal rehabiliteres. Bygget har saltak med teglstein, pusset fasade, og består av kjeller, to etasjer og loft. Det er en trapp og en balkong i bygget. Fasaden har flere vinduer og dører fordelt på alle sider, og det er garasjeport på vestfasaden.

Arbeidsomfang

- Bruksendring av kjeller fra tilleggsdel til hoveddel (innvendig) - Fasadeendring med ny farge og evt. vinduskarmer - Etablering av nye vinduer - Utvidelse av eksisterende vinduer - Nedpigging av gulv i kjeller - Isolering av yttervegger (ca. 10 cm) - Utvidelse av terrasse

Produkter og materialer

Pipe Piperehabilitering

Antall: 1

Rehabilitering av eksisterende pipe

Oppgradering og vedlikehold av pipe

Tømrer Innvendige endringer og bærekonstruksjoner

Endringer i planløsning, bærekonstruksjoner og innvendige arbeider i kjeller og øvrige etasjer

Tømrerarbeid for bruksendring og fasadeendring

Grunnarbeid Nedpigging av gulv i kjeller

Antall: 1

Nedpigging av kjellergulv for økt romhøyde

Grunnarbeid i kjeller for bruksendring

Dører Ytterdører og balkongdører

Antall: 11

Dører i fasader og balkongdør til veranda/balkong

Ytterdører og balkongdører i eneboligen

Isolasjon Etterisolering av yttervegger

🧱 Ca. 10 cm isolasjon

Etterisolering av yttervegger i kjeller

Bedre isolasjon og energieffektivitet

Vinduer Nye og utvidede fasadevindu

🧱 3-lags energiglass antatt

Antall: 27

Nye vinduer og utvidelse av eksisterende vinduer i kjeller og øvrige etasjer, inkludert fasader mot øst, nord, sør og vest

Vinduer for fasadeendring og bedre lysinnslipp i kjeller og øvrige etasjer

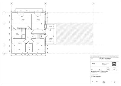
Terrasse Utvidelse av eksisterende terrasse

Antall: 1

Utvidelse av terrasseareal på 39 m² i 1. etasje

Terrasseutvidelse for økt uteareal

Fasade Pusset fasade med ny farge og vinduskarmer

🧱 Pusset overflate

Endring av farge på fasade og vinduskarmer, etterisolering av yttervegger med ca. 10 cm isolasjon

Fasadeendring med ny farge og isolasjon

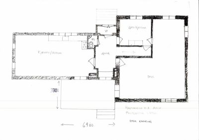
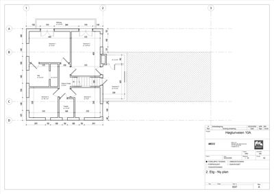
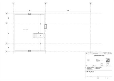
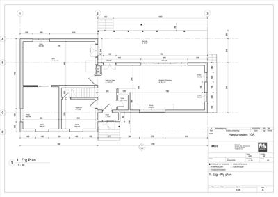
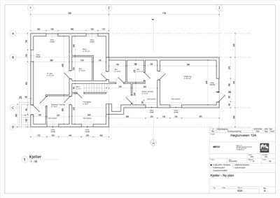
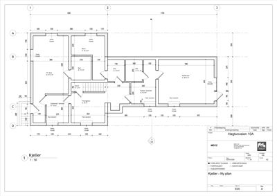
Plantegning

Enebolig 278.8 m²

Etasje 2 114.4 m²

Rom Areal Vinduer Dører
Soverom 1 201 15.0 m² 1 1
Soverom 2 202 14.9 m² 1 1
Soverom 3 203 9.0 m² 1 1
Soverom 4 204 10.1 m² 1 1
Soverom 5 205 9.3 m² 1 1
Bad 206 5.4 m² 0 1
Toalett 207 3.5 m² 0 1
Gang m/trapp 208 8.0 m² 0 2
Teknisk rom 209 2.3 m² 0 1
Teknisk rom 210 2.3 m² 0 1

Etasje 1 164.4 m²

Rom Areal Vinduer Dører
Stue 101 51.4 m² 1 1
Kjøkken/Spisestue 102 42.1 m² 2 1
Gang m/ trapp 103 14.9 m² 0 2
Vaskerom 104 11.0 m² 1 1
Toilet 105 1.7 m² 0 1
Entré 106 2.0 m² 0 1
Veranda 107 39.0 m² 0 1

Høgtunveien 10A 198.6 m²

Etasje 0 198.6 m²

Rom Areal Vinduer Dører
TV-Stue 001 27.2 m² 1 1
Gjestesrom / Soverom 002 7.6 m² 1 1
Bod 2 003 10.2 m² 1 1
Bad 004 5.5 m² 0 1
Bod 3 005 2.0 m² 0 1
Treningssrom 006 18.0 m² 1 1
Bod 007 3.9 m² 0 1
Bad 008 4.1 m² 0 1
Kontor / Soverom 009 9.3 m² 0 1
Kjellerstue 010 28.2 m² 1 1

Loft 65.0 m²

Etasje 2 65.0 m²

Rom Areal Vinduer Dører
Loft 201 65.0 m² 2 1

Fasader

Høgtunveien 10A

Øst
Materiale
Pusset
Taktype
Flatt tak
Takmat.
Tegl
Høyde
2.8 m
Vinduer
4
Dører
1
Synlige etasjer
2
Nord
Materiale
Pusset
Taktype
Saltak
Takmat.
Tegl
Høyde
2.8 m
Mønehøyde
8.1 m
Vinduer
8
Dører
1
Synlige etasjer
3
Sør
Materiale
Betong
Taktype
Saltak
Takmat.
Tegl
Høyde
2.8 m
Mønehøyde
8.1 m
Vinduer
4
Dører
1
Balkonger
1
Synlige etasjer
2
Vest
Materiale
Pusset
Taktype
Saltak
Takmat.
Tegl
Høyde
0.0 m
Mønehøyde
8.1 m
Vinduer
4
Dører
1
Balkonger
1
Synlige etasjer
2
Syd
Materiale
Pusset
Taktype
Saltak
Vinduer
6
Dører
1
Balkonger
1
Synlige etasjer
2

Hendelser

14.04.2026 3/83 Høgtunveien 10A - Supplering av søknad
01.04.2026 3/83 Høgtunveien 10A - Søknad om tillatelse i ett trinn - Bruksendring på kjeller fra tilleggsdel til hoveddel søknad