FloorPlan
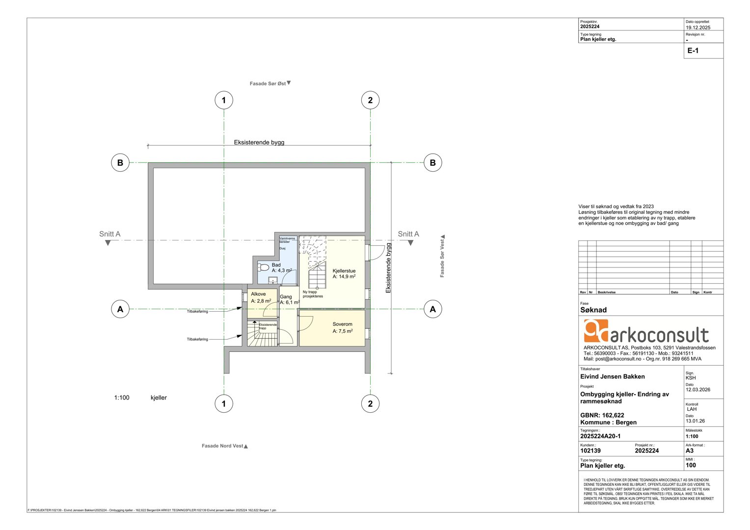
Etasjeplan for kjeller (E-1) som viser romfordeling, arealer og snittlinjer.
1 / 2
ChangeOfUse
Rammetillatelse
Enebolig
Bruksendring og ombygging i enebolig på Hunstadsvingen 13E
📍 Hunstadsvingen 13E , 5053 BERGEN
Nøkkelinfo
- Sakstype
- Bruksendring
- Bygningstype
- Enebolig
- Bruksareal
- 34 m²
- Boenheter
- 1
- Kommune
- Bergen
- Fylke
- Vestland
- Gnr / Bnr
- 162 / 622
- Saksnummer
- BYGG-2022/28180
- Fase
- Rammetillatelse
Om byggesaken
Bruksendring fra tilleggsdel til hoveddel i en eksisterende enebolig på Hunstadsvingen 13E med ombygging i kjelleretasjen. Kjelleren på 33,5 m² innredes med kjellerstue, soverom, bad, gang og alkove, inkludert etablering av ny trapp. Det er også planlagt fasadeendringer, men noen godkjente fasadeendringer skal ikke utføres. Prosjektet innebærer tilbakeføring til original tegning med enkelte endringer i kjeller, som ombygging av bad og gang. Ansvarlig søker og prosjekterende er Arkoconsult AS.
Produkter og materialer
Grunnarbeid
Kjellerarbeid
Arbeid i kjeller med etablering av nye rom og trapp
Grunnarbeid og tilpasning i kjeller for ny bruk og rominndeling
Bad
Bad i kjeller
Antall: 1
Ombygging av bad på 4,3 m² i kjeller
Oppgradering og ombygging av bad i kjelleretasje
Fasade
Fasadeendringer
Fasadeendringer planlagt, men noen godkjente endringer skal ikke utføres
Oppdatering av fasade i forbindelse med bruksendring
Trapper
Innvendig trapp
Antall: 2
Ny trapp prosjekteres i kjeller, eksisterende trapp tilbakeføres
Etablering av ny innvendig trapp i kjeller for adkomst mellom etasjer
Tømrer
Innvendige vegger og ombygging
Ombygging av gang, alkove, soverom og kjellerstue i kjeller
Innvendig ombygging og tilbakeføring til original planløsning med enkelte endringer
Plantegning
Enebolig 33.5 m²
Etasje 0 33.5 m²
| Rom | Areal | Vinduer | Dører |
|---|---|---|---|
| Kjellerstue 001 | 14.9 m² | 0 | 1 |
| Soverom 002 | 7.5 m² | 0 | 1 |
| Bad 003 | 4.3 m² | 0 | 1 |
| Gang 004 | 6.1 m² | 0 | 2 |
| Alkove 005 | 2.8 m² | 0 | 1 |
Hendelser
30.03.2026
Kreditnota/Ny ubw ordre 20693159
23.03.2026
Fakturagrunnlag
23.03.2026
Ubw ordre 20692638
17.03.2026
Tillatelse til endring.162/622/0/0 Hunstadsvingen 13E
12.03.2026
Tilleggsopplysninger - 162/622/0/0 Hunstadsvingen 13E, bruksendring fra tilleggsdel til hoveddel
11.03.2026
MOTTATT OPPHØR AV ANSVARSRETTERGodkjenning av plassering i tiltaksklasse vurdering av ansvarsbelegging
11.03.2026
Tilleggsopplysninger - 162/622/0/0 Hunstadsvingen 13E, bruksendring fra tilleggsdel til hoveddel
06.03.2026
Hunstadsvingen 13E Søknad om endring av gitt tillatelse eller godkjenning 162/622
27.10.2023
Vedlagt rammetillatelse - 162/622/0/0 Hunstadsvingen 13E, bruksendring fra tilleggsdel til hoveddel
27.10.2023
Ber om status på saksbehandling - 162/622/0/0 Hunstadsvingen 13E, bruksendring fra tilleggsdel til hoveddel
07.07.2023
Fakturagrunnlag
07.07.2023
ubw ordre 20620417
05.07.2023
Rammetillatelse.162/622/0/0 Hunstadsvingen 13E, bruksendring fra tilleggsdel til hoveddel
04.07.2023
Hunstadsvingen 13E Supplering av søknad 162/622
03.07.2023
Hunstadsvingen 13E Supplering av søknad 162/622
16.06.2023
Bes om begrunnelse angående søknad om fravik fra TEK- 162/622/0/0 Hunstadsvingen 13E, bruksendring fra tilleggsdel til hoveddel
16.06.2023
Hunstadsvingen 13E Supplering av søknad 162/622
01.06.2023
Behov for supplerende tilleggsopplysninger - 162/622/0/0 Hunstadsvingen 13E, bruksendring fra tilleggsdel til hoveddel
01.06.2023
Hunstadsvingen 13E Supplering av søknad 162/622
25.04.2023
Bekreftelse på fristforlengelse - 162/622/0/0 Hunstadsvingen 13E, bruksendring fra tilleggsdel til hoveddel
25.04.2023
Ber om utsettelse frist innsending av tilleggsopplysninger til 02.06.2023 - 162/622/0/0 Hunstadsvingen 13E, bruksendring fra tilleggsdel til hoveddel
31.03.2023
Svar på deres spørsmål angående selvbygger - 162/622/0/0 Hunstadsvingen 13E, bruksendring fra tilleggsdel til hoveddel
27.03.2023
Tilleggsopplysninger og spørsmål - 162/622/0/0 Hunstadsvingen 13E, bruksendring fra tilleggsdel til hoveddel
23.02.2023
Bekreftelse på forlenget frist- 162/622/0/0 Hunstadsvingen 13E, bruksendring fra tilleggsdel til hoveddel
21.02.2023
Ber om forlenget frist - 162/622/0/0 Hunstadsvingen 13E, bruksendring fra tilleggsdel til hoveddel
08.02.2023
Behov for tilleggsopplysninger.162/622/0/0 Hunstadsvingen 13E, bruksendring fra tilleggsdel til hoveddel
11.11.2022
Bekreftelse på mottatt søknad
08.11.2022
Hunstadsvingen Søknad om rammetillatelse 162/622
—
—