ChangeOfUse UnderBehandling Enebolig

Bruksendring med takvinduer og fasadeendring i Inndalsveien 108, Bergen

📍 Inndalsveien 108 , 5063 BERGEN

Nøkkelinfo

Sakstype
Bruksendring
Bygningstype
Enebolig
Bruksareal
545 m²
Boenheter
1
Kommune
Bergen
Fylke
Vestland
Gnr / Bnr
160 / 437
Saksnummer
BYGG-2022/17514
Fase
Under behandling

Om byggesaken

Eksisterende enebolig på Inndalsveien 108 i Bergen gjennomgår bruksendring med tilhørende fasadeendringer og installasjon av nye takvinduer. Bygget har et totalt areal på 545 m², med loftsetasje på ca. 120 m² som inneholder soverom, stue/kjøkken, bad og WC. Det er etablert 10 nye takvinduer i takflaten, fordelt på øst- og vestfasade, med plassering tilpasset eksisterende taksperrer. Fasadeendringene inkluderer nye vinduer og brannvindu som også fungerer som rømningsvei. Bygget får installert sprinkleranlegg med tilhørende vannledningsforbindelse, balansert ventilasjon, brannalarmanlegg og ledesystem. Utvendig VA-arbeid er utgått da kapasiteten er tilstrekkelig. Varmeforsyning skjer via elektriske varmekabler og panelovner. Prosjektet inkluderer også oppdatering av planløsning i loftsetasje som følge av endret vindusplassering.

Produkter og materialer

Fasade Fasadeendring med nye vinduer og brannvindu

Fasadeendringer med nye vinduer og brannvindu som også fungerer som rømningsvindu

Endring av fasade med nye vinduer og brannvindu i eksisterende enebolig

Sprinkler Sprinkleranlegg

Installasjon av sprinkleranlegg med vannledning tilkoblet offentlig nett, tilbakestrømningssikring kategori 4

Sprinkleranlegg installert i bygget med tilhørende tekniske installasjoner

Elektro Brannalarmanlegg og ledesystem

Brannalarmanlegg og ledesystem installert

Elektriske installasjoner for brannalarm og ledesystem

Ventilasjon Balansert ventilasjon

Balansert ventilasjon for leiligheter

Installasjon av balansert ventilasjonssystem

Tømrer Innvendige endringer og loftsplan

Endringer i planløsning på loft som følge av endret vindusplassering

Innvendige tømrerarbeider for tilpasning av rom og planløsning

Grunnarbeid Vannledning til sprinkleranlegg

Ny vannledning tilkoblet offentlig nett for sprinkleranlegg, uten utvendig VA-arbeid

Grunnarbeid for vannforsyning til sprinkleranlegg

Vinduer Takvinduer

Antall: 10

Takvinduer i godkjent størrelse, plassert i eksisterende takåpninger, med dagslyskrav ivaretatt, inkludert rømningsvindu/topphengslet vindu for brannvesen

Nye takvinduer i takflaten på øst- og vestfasade, totalt 10 stk, tilpasset eksisterende taksperrer

VVS Sanitærinstallasjoner

Sanitærinstallasjoner i henhold til prosjektering

Oppgradering og endring av sanitærinstallasjoner i forbindelse med bruksendring

Gulv Elektriske varmekabler og panelovner

Varmefordeling med elektriske varmekabler og panelovner

Elektrisk oppvarming i bygget

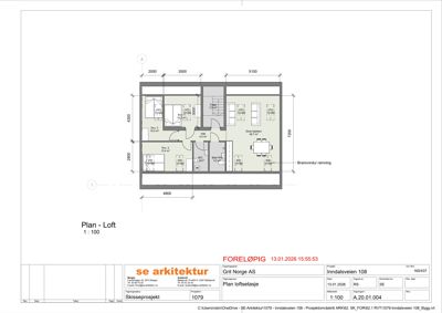
Plantegning

Enebolig 120.3 m²

Etasje 2 120.3 m²

Rom Areal Vinduer Dører
Sov. 2 201 10.0 m² 1 1
Sov. 3 202 13.4 m² 1 1
Hall 203 4.5 m² 0 3
Stue/kjøkken 204 36.7 m² 2 1
WC 205 3.9 m² 0 1
Bad/WC 206 4.2 m² 0 1

Fasader

Hus 1-2-3-4-5

Øst
Vinduer
16
Dører
3
Synlige etasjer
4

Enebolig

Vest
Vinduer
12
Dører
1
Synlige etasjer
3

Apartment Building

Nord
Vinduer
21
Dører
1
Synlige etasjer
4
Vest
Vinduer
10
Dører
1
Synlige etasjer
4

Hendelser

09.04.2026 Inndalsveien 108 Søknad om ferdigattest 160/437
31.03.2026 Fakturagrunnlag endring dok. 16
31.03.2026 Ubw ordre 20693226
23.03.2026 Tillatelse til endring, 160/437, Inndalsveien 108
18.03.2026 Inndalsveien 108 Søknad om endring av gitt tillatelse eller godkjenning 160/437
23.01.2026 Orientering om endring- 160/437/0/0 Inndalsveien 108, bolig bruksendring
23.01.2026 Avslutningsbrev - søknaden trekkes
22.01.2026 Behov for søknad om endring
21.01.2026 Behov for tilleggsopplysninger til søknad om FA, Inndalsveien 108
14.01.2026 Inndalsveien 108 Søknad om ferdigattest 160/437
10.10.2025 Fakturagrunnlag IG(2)
10.10.2025 Ubw ordre 20679297
31.01.2025 Igangsettingstillatelse (2), 160/437, Inndalsveien 108
16.01.2025 Inndalsveien 108 Søknad om igangsettingstillatelse 160/437
05.12.2023 Orientering - 160/437/0/0 Inndalsveien 108, bolig bruksendring
01.12.2023 Inndalsveien 108, igangsettingstillatelse del 1
01.12.2023 Orientering om tiltakshaver- 160/437/0/0 Inndalsveien 108, bolig bruksendring
24.11.2023 Inndalsveien 108 Søknad om igangsettingstillatelse 160/437