ChangeOfUse Rammetillatelse Enebolig

Bruksendring og fasadeendring i enebolig, Inndalsveien 43, Bergen

📍 Inndalsveien 43 , 5063 BERGEN

Nøkkelinfo

Sakstype
Bruksendring
Bygningstype
Enebolig
Bruksareal
78 m²
Boenheter
2
Kommune
Bergen
Fylke
Vestland
Gnr / Bnr
159 / 478
Saksnummer
BYGG-2025/17433
Fase
Rammetillatelse

Om byggesaken

Prosjektet omfatter bruksendring av deler av kjelleretasjen fra tilleggsdel til hoveddel, slik at kjellerarealet integreres som oppholdsrom i 1. etasje. Det utføres fasadeendringer med nye og utvidede vinduer i flere størrelser, nye takvinduer, samt oppføring av takoverbygg ved inngangspartiet og ny utvendig trapp. Balkongen på vestfasaden forlenges med nye rekkverk, og det etableres en utvendig bod under balkongen. Det gjøres også mindre planendringer i 1. etasje, inkludert nytt bad og bod. Bygningen er en eldre enebolig med saltak og trepanel, med to etasjer og kjeller, totalt ca. 78,4 m² i 2. etasje. Det foreligger dispensasjon for plassering nær vei, og tiltaket inkluderer oppgradering for bedre lysforhold, ventilasjon og funksjonalitet uten endring i antall boenheter.

Produkter og materialer

Rekkverk Balkongrekkverk

🧱 tre eller metall

nye rekkverk på balkong, samt forlengelse av balkongområdet

Oppgradering og forlengelse av balkongrekkverk

Elektro Oppgradering elektrisk anlegg

oppgradering av elektrisk anlegg i forbindelse med bruksendring og fasadeendringer

Elektrisk oppgradering for å møte dagens krav

Maling Utvendig trepanel

🧱 værbestandig maling

maling av trepanel ved fasadeendringer

Overflatebehandling av fasade etter endringer

Dører Ytterdør

🧱 tre med glass

Antall: 2

ytterdør 90x210 cm, ny utvendig dør til bod under balkong

Nye ytterdører ved inngang og bod

Trapper Utvendig trapp

🧱 betong eller tre

Antall: 1

ny utvendig trapp ved inngangspartiet

Ny utvendig trapp for adkomst til inngang

VVS Nytt bad og vaskerom

installasjon av sanitærutstyr i nytt bad og vaskerom

Oppgradering av sanitærinstallasjoner i 1. etasje og kjeller

Tømrer Innvendige planendringer

små bruksendringer i 1. etasje, nytt bad og bod

Innvendige oppgraderinger og planjusteringer

Vinduer Takvindu

Antall: 3

takvinduer i størrelser 50x80 cm, 60x100 cm

Nye takvinduer for økt dagslys og ventilasjon

Fasade Takoverbygg

🧱 tre og taktekking

Antall: 2

takoverbygg ved hovedinngang og kjellerinngang

Nye takoverbygg for beskyttelse mot vær og bedre estetikk

Isolasjon Kjeller og fasadeisolasjon

🧱 mineralull eller tilsvarende

isolasjon for oppgradering av kjeller til oppholdsrom og fasadeendringer

Isolasjon for å oppfylle dagens krav ved bruksendring og fasadeoppgradering

Vinduer Fasadevindu

🧱 tre med 3-lags energiglass

Antall: 15

vinduer i størrelser 46x46 cm, 60x60 cm, 80x88 cm, 110x86 cm, 115x115 cm, 124x119 cm, 142x140 cm, 145x145 cm, 146x146 cm

Nye og utvidede fasadevinduer for bedre lysforhold og fasadeuttrykk

Terrasse Balkongforlengelse

🧱 tre

Antall: 1

forlengelse av balkong på 13,1 m²

Utvidelse av balkong for bedre uteareal

Grunnarbeid Utvendig bod under balkong

🧱 tre eller prefabrikkert materiale

Antall: 1

utvendig bod under balkongområdet

Nytt bodareal under balkong

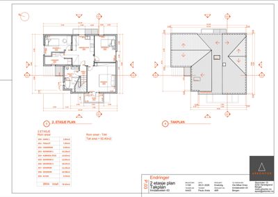
Plantegning

Enebolig 78.4 m²

Etasje 0 0.0 m²

Rom Areal Vinduer Dører
Vaskerom 001 0.0 m² 0 0
Stue 002 0.0 m² 0 0
Sang 003 0.0 m² 0 0
SOVEROM 3 004 9.0 m² 1 1
GANG 1 005 5.1 m² 0 2
WC1 006 3.9 m² 0 1
GANG 2 007 1.0 m² 0 1
UTEBOD 008 12.9 m² 0 1

Etasje 1 0.0 m²

Rom Areal Vinduer Dører
Vedlise 101 0.0 m² 0 0
Entre 102 0.0 m² 0 0
Vedlise 103 0.0 m² 0 0
Kjokken 104 0.0 m² 0 0
Vedlise 105 0.0 m² 0 0
ENTRÉ 100 7.2 m² 0 2
SPISESTUE 106 14.4 m² 1 1
STUE 107 16.8 m² 1 1
ALTAN 108 13.1 m² 0 0

Etasje 2 78.4 m²

Rom Areal Vinduer Dører
Gang 1 200 1.6 m² 0 2
Toalett 201 7.0 m² 0 1
Vaskerom 202 5.7 m² 0 1
Soverom 1 203 10.2 m² 1 1
Kjøkken/Stue 204 14.6 m² 1 1
Soverom 2 205 12.8 m² 1 1
Soverom 3 206 18.6 m² 1 1
Soverom 207 11.1 m² 1 1
Soverom 208 17.0 m² 1 1
Altan 209 3.5 m² 0 0

Fasader

Enebolig

Øst
Materiale
Tre
Taktype
Saltak
Høyde
6.3 m
Mønehøyde
8.3 m
Vinduer
5
Dører
1
Synlige etasjer
2
Nord
Materiale
Tre
Taktype
Saltak
Høyde
6.3 m
Mønehøyde
8.3 m
Vinduer
5
Dører
1
Synlige etasjer
2
Vest
Materiale
Tre
Taktype
Saltak
Høyde
6.3 m
Mønehøyde
8.3 m
Vinduer
4
Dører
1
Balkonger
1
Synlige etasjer
2
Sør
Materiale
Tre
Taktype
Saltak
Høyde
6.3 m
Mønehøyde
8.3 m
Vinduer
4
Dører
1
Synlige etasjer
2

Hendelser

06.02.2026 Fakturagrunnlag
06.02.2026 ubw ordre 20687934
03.02.2026 Rammetillatelse,159/478/0/0 Inndalsveien 43,
29.01.2026 Tilleggsopplysninger
19.01.2026 Byantikvarens tilbakemelding 2025/266980 159/478/0/0 Inndalsveien 43, bruksendring og fasadeendring bolig, parkeringsplass
22.12.2025 Intern høring
17.12.2025 Inndalsveien 43 Supplering av søknad 159/478
25.11.2025 Behov for tilleggsopplysninger,159/478/0/0 Inndalsveien 43
12.11.2025 Bekreftelse på mottatt søknad
11.11.2025 Inndalsveien 43 Søknad om rammetillatelse 159/478