ChangeOfUse Rammetillatelse Enebolig

Ombygging og sammenslåing til enebolig med parkering i Dalegata 37, Kristiansund

📍 Karteidveien 41 , 4420 ÅNA-SIRA

Nøkkelinfo

Sakstype
Bruksendring
Bygningstype
Enebolig
Bruksareal
330 m²
Boenheter
1
Kommune
Flekkefjord
Fylke
Agder
Gnr / Bnr
59 / 20
Saksnummer
26/00628
Fase
Rammetillatelse

Om byggesaken

Eksisterende tomannsbolig i Dalegata 37, Kristiansund, bygges om til en enebolig med totalt 330 m² BRA fordelt på kjeller, 1. og 2. etasje. Bygget har saltak og trekledning, og fasaden tilbakeføres til opprinnelig uttrykk med bevaring eller kopiering av historiske detaljer. Det etableres ny utvendig trapp, ny avkjørsel flyttes fra fylkesvei til kommunal vei, og det opparbeides totalt 8 parkeringsplasser (2 i garasje og 6 ute). Uteoppholdsarealet på 45 m² oppgraderes med fokus på solforhold og terrengtilpasning. Innvendig isoleres vegger, og det bygges ny bærevegg i stuen. Tiltaket inkluderer riving av bod og terrasse. Parkering og adkomst krever dispensasjon fra reguleringsplanens forhagebestemmelser. Kulturhistoriske hensyn ivaretas med anbefalinger om materialvalg og fasadebehandling.

Produkter og materialer

Tak Saltak med takstein

🧱 rød takstein

Taktekking med rød takstein i tråd med opprinnelig stil

Taktekking med rød takstein som anbefalt for å bevare byggets historiske uttrykk

Fasade Kledning

🧱 tre

Ny kledning i tre, høvlet overflate, kopi av original kledning der utskifting er nødvendig, bevaring av original kledning der mulig

Utskifting og restaurering av trekledning på fasade med fokus på historisk korrekt utførelse

Trapper Utvendig trapp

🧱 tre

Antall: 1

Ny utvendig trapp som erstatning for eksisterende terrasse

Ny utvendig trapp i tre som del av ombyggingen

Dører Ytterdører

🧱 tre

Antall: 7

Ytterdører i tre, tilpasset eksisterende fasade og isolasjonskrav

Nye ytterdører i tre med god isolasjon og tilpasset byggets stil

Elektro Elektriske installasjoner

Oppgradering av elektriske installasjoner i bygget

Elektriske installasjoner i forbindelse med ombygging

Terrasse Opparbeidelse uteoppholdsareal

Antall: 45

Uteoppholdsareal på 45 m² med dokumentert solforhold og terrengtilpasning

Opparbeidelse av uteoppholdsareal med fokus på kvalitet og brukbarhet

Grunnarbeid Parkering og adkomst

Antall: 8

Opparbeidelse av 8 parkeringsplasser (2 i garasje, 6 ute), ny avkjørsel til kommunal vei, sanering av eksisterende avkjørsel til fylkesvei

Grunnarbeid for parkeringsplasser og ny avkjørsel, inkludert terrengtilpasning og sikring av siktsoner

Tømrer Bærevegg

🧱 tre

Antall: 1

Ny bærevegg i stue på samme sted som gammel for konstruksjonsstøtte

Tømrerarbeid for ny bærevegg i stue

Rekkverk Historisk tilpasset rekkverk

🧱 smijern eller stakitt

Rekkverk med historisk uttrykk anbefalt for uteområder

Rekkverk tilpasset byggets kulturhistoriske stil

Annet Sykkelparkering

Sykkelparkering nær hovedinngang, sikret mot tyveri og vær

Sykkelparkering som del av parkeringsløsningen

VVS Varme- og kuldeinstallasjoner

Oppgradering av varme- og kuldeinstallasjoner i bygget

Tekniske installasjoner for varme og kulde i forbindelse med ombygging

Vinduer Yttervinduer

🧱 tre

Antall: 28

Vinduer med U-verdi ≤ 0,80 W/(m²K), tilbakeføring til opprinnelig utførelse med krysspostvinduer der mulig

Nye og/eller restaurerte vinduer i tre med god isolasjon, tilpasset byggets kulturhistoriske uttrykk

Gulv Innvendige gulv

Oppgradering av gulvflater i forbindelse med ombygging

Nye eller oppgraderte gulvflater innvendig

Isolasjon Veggisolasjon

Isolasjon av vegger innvendig og utvendig i forbindelse med ombygging

Isolasjon for å oppgradere byggets energistandard

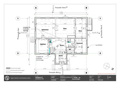
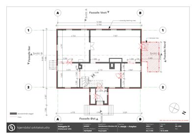
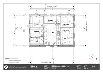
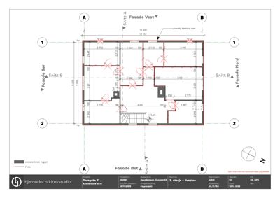
Plantegning

Enebolig 330.3 m²

Etasje 0 91.7 m²

Rom Areal Vinduer Dører
Kjeller 91.7 m² 2 1

Etasje 2 120.8 m²

Rom Areal Vinduer Dører
Soverom 201 7.9 m² 1 1
Stue 202 10.6 m² 1 1
Soverom 203 5.4 m² 1 1
Soverom 204 8.8 m² 1 1
Stue 205 12.9 m² 1 1
Gang 206 21.4 m² 0 0
Vaskerom 207 7.7 m² 1 1
Soverom 208 15.6 m² 1 1
Bad 209 6.4 m² 0 1

Etasje 1 117.8 m²

Rom Areal Vinduer Dører
Spisestue 101 22.8 m² 3 1
Stue 102 36.3 m² 3 1
Kjøkken 103 11.7 m² 1 1
Entre 104 21.1 m² 0 2
Soverom 105 10.3 m² 1 1
WC 106 1.6 m² 0 1
Entre 107 3.3 m² 0 1
WC 108 2.5 m² 0 1

Fasader

Enebolig

Nord
Materiale
Tre
Taktype
Saltak
Høyde
3.9 m
Vinduer
5
Dører
1
Synlige etasjer
2
Sør
Materiale
Tre
Taktype
Saltak
Høyde
3.9 m
Vinduer
4
Dører
1
Synlige etasjer
2
Vest
Materiale
Tre
Taktype
Saltak
Vinduer
6
Dører
0
Synlige etasjer
2
Øst
Materiale
Tre
Taktype
Saltak
Vinduer
5
Dører
1
Synlige etasjer
2
Sørlig
Materiale
Tre
Taktype
Saltak
Vinduer
5
Dører
1
Synlige etasjer
2
Ukjent
Materiale
Tre
Taktype
Saltak
Høyde
3.6 m
Mønehøyde
8.2 m
Vinduer
4
Dører
1
Synlige etasjer
2

Hendelser

15.04.2026 26/00628-16 Dalegata 37 – tilsvar til høringsuttalelse fra Møre og Romsdal fylkeskommune datert 23.03.2026
30.03.2026 26/00628-14 Dalegata 37 - Anmodning om kommenter til Fylkeskommunens høringsuttalelse i byggesaken
30.03.2026 26/00628-15 Dalegata 37 - BYGG-26/00080 - Høringssvar oversendt svar ut
27.03.2026 26/00628-13 Dalegata 37 - Høringssvar
26.03.2026 26/00628-8 Tillatelse til oppføring av lagerhall, Karteidveien 41, gnr. 59, bnr. 20
18.03.2026 26/00628-12 Dalegata 37 - Svar vedrørende erklæring om adkomst
17.03.2026 26/00628-11 Dalegata 37 - Erklæring om adkomst
13.03.2026 26/00628-5 Karteidveien 41 Supplering av søknad 59/20 søknad
13.03.2026 26/00628-4 Bekrefter at tiltaket flyttes og at det sendes inn oppdaterte planer
12.03.2026 26/00628-3 Spørsmål om VA-ledning
11.03.2026 26/00628-2 Karteidveien 41, melding om mottatt søknad søknad
10.03.2026 26/00628-1 Karteidveien 41 Søknad om tillatelse i ett trinn 59/20 søknad
26.02.2026 26/00628-10 Dalegata 37 - supplering
26.02.2026 26/00628-9 Dalegata 37 - Anmodning om uttalelse til søknad om dispensasjon fra reguleringsbestemmelser om forhage
25.02.2026 26/00628-7 Dalegata 37 - BYGG-26/00080 - supplering