ChangeOfUse UnderBehandling Enebolig

Bruksendring og fasadeendring på enebolig i Klundbyvegen 262

📍 Klundbyvegen 262 , 2836 BIRI

Nøkkelinfo

Sakstype
Bruksendring
Bygningstype
Enebolig
Bruksareal
347 m²
Boenheter
1
Kommune
Gjøvik
Fylke
Innlandet
Gnr / Bnr
188 / 54
Saksnummer
2026/2234
Fase
Under behandling

Om byggesaken

Bruksendring av kjeller i eksisterende enebolig fra tilleggsdel til hoveddel med etablering av hybel med eget inngangsparti og intern trappeforbindelse til hoveddel. Innvendig ombygging inkluderer konstruktive endringer i bærekonstruksjoner for ny trapp. Fasadeendringer omfatter oppdatering av vinduer og dører. Eksisterende garasje, utebod, balkong og inngangsparti som er oppført etter sist godkjente tegninger, innarbeides i søknaden for å bringe godkjent situasjon i samsvar med faktisk bebyggelse. Det utføres ingen volumøkning eller nye tilbygg, men det søkes dispensasjon for eksisterende balkong og terrasse som overstiger arealgrensen i kommuneplanen. Totalt areal for tiltaket er ca. 347 m² med en trapp og en balkong. Garasjeareal på ca. 36 m² og balkong på ca. 28 m² inngår i prosjektet.

Produkter og materialer

Elektro Elektrisk installasjon

Oppdatering av elektriske installasjoner i kjeller og nye rom

Elektriske arbeider for ny bruksendring og oppgradering av kjeller

Fasade Balkong og terrasse

🧱 Tre

Antall: 1

Eksisterende balkong og terrasse over garasje, samlet ca. 28 m² balkong og 36 m² garasjeareal

Balkong og terrasse som inngår i fasadeendringen og søknaden for innarbeiding av eksisterende bebyggelse

Maling Utvendig og innvendig maling

Maling av fasade og innvendige overflater etter ombygging

Maling av trefasader og innvendige vegger for ferdigstillelse

Isolasjon Isolasjon i vegger og tak

Isolasjon i forbindelse med innvendig ombygging og fasadeoppdatering

Isolasjon for å oppgradere kjeller og fasade i henhold til gjeldende krav

Tømrer Innvendige vegger og konstruksjoner

🧱 Tre

Montering av ny trapp og innervegger i kjeller for bruksendring til hybel

Tømrerarbeid knyttet til montering av trapp og innvendige vegger i kjeller

Dører Ytterdører

🧱 Tre

Antall: 7

Ytterdører i fasade, inkludert nytt inngangsparti til hybel

Nye ytterdører i tre til fasadeendring og nytt inngangsparti

VVS Sanitærinstallasjoner

Oppgradering av bad og WC i kjeller i forbindelse med bruksendring

VVS-arbeider for nytt bad og WC i kjellerhybel

Grunnarbeid Ingen nye grunnarbeider

Ingen nye fundamenteringer eller terrenginngrep i prosjektet

Prosjektet omfatter ikke nye grunnarbeider eller fundamentering

Vinduer Fasadevindu

🧱 Tre

Antall: 16

Vinduer i fasader, oppdatert i forbindelse med fasadeendring

Nye og oppdaterte fasadevinduer i tre for eneboligens fasadeendring

Trapper Innvendig trapp

Antall: 1

Ny trapp mellom kjeller og hovedetasje med tilhørende bærekonstruksjoner

Innvendig trapp for intern forbindelse mellom kjeller (hybel) og hoveddel

Garasjeport Garasjeport

Antall: 2

Garasjeporter til eksisterende garasje og utebod

Garasjeporter til eksisterende garasje og utebod som innarbeides i søknaden

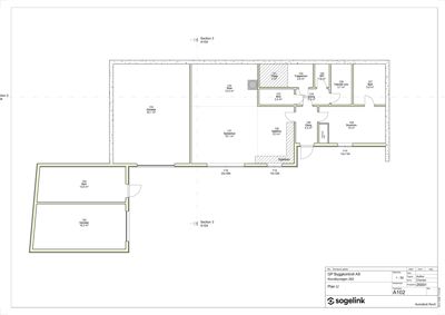
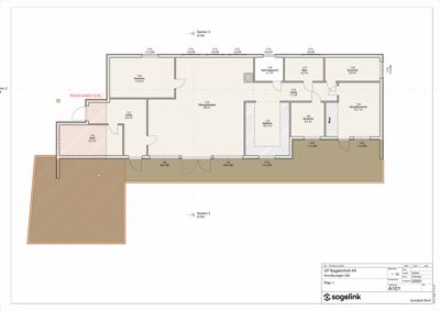
Plantegning

Enebolig 347.4 m²

Etasje 1 226.9 m²

Rom Areal Vinduer Dører
Soverom 110 11.9 m² 1 1
Entré 111 9.4 m² 0 2
Røm 112 8.7 m² 0 1
Stue/spisestue 113 39.0 m² 3 1
Kjøkken 114 10.7 m² 1 1
Gang 115 7.1 m² 0 2
Nytt trapperom 116 3.1 m² 0 1
Bad 117 4.2 m² 0 1
Soverom 118 5.9 m² 1 1
Hovedsoverom 119 12.1 m² 1 1
Soverom 120 5.2 m² 1 1
Inngangspart 101 13.5 m² 0 1
Garasje 102 36.4 m² 0 0
Balkong 103 27.7 m² 0 0
Soverom 104 6.3 m² 1 1
Soverom 105 10.0 m² 1 1
Entré 106 10.0 m² 0 0
Bad/WC 107 6.0 m² 0 1
Lufte Balkong 108 10.0 m² 0 0

Etasje 0 120.5 m²

Rom Areal Vinduer Dører
Garasje 133 34.1 m² 0 1
Bod 134 13.6 m² 0 1
Garasje 135 18.3 m² 0 1
Spisestue 131 16.7 m² 2 1
Stue 132 12.5 m² 1 1
Trapp 121 3.0 m² 0 0
Trapperom 122 2.6 m² 0 1
Bod 123 2.4 m² 0 1
Gang 124 2.3 m² 0 3
WC 125 1.5 m² 0 1
Teknisk rom 126 3.7 m² 0 1
Bad 127 5.8 m² 0 1
Soverom 128 10.0 m² 1 1
Gang 129 3.5 m² 0 1
Kjøkken 130 9.3 m² 1 1
Garasje 001 45.0 m² 0 1
Bod 002 8.5 m² 0 1
Hall 003 12.0 m² 0 2
Soverom 004 14.0 m² 1 1
Vindfang 005 4.5 m² 1 1
Hobby 006 18.0 m² 2 1
Vaskerom 007 6.0 m² 0 1
WC 008 2.5 m² 0 1
H.Bod 009 8.0 m² 0 1

Fasader

Enebolig

Vest
Materiale
Tre
Taktype
Saltak
Høyde
2.4 m
Mønehøyde
5.7 m
Vinduer
0
Dører
1
Synlige etasjer
2
Nord
Materiale
Tre
Taktype
Saltak
Høyde
2.4 m
Mønehøyde
5.7 m
Vinduer
5
Dører
1
Synlige etasjer
2
Sør
Materiale
Tre
Taktype
Saltak
Høyde
2.4 m
Mønehøyde
5.7 m
Vinduer
8
Dører
2
Balkonger
1
Synlige etasjer
2
Øst
Materiale
Tre
Taktype
Saltak
Høyde
2.4 m
Mønehøyde
5.7 m
Vinduer
1
Dører
1
Synlige etasjer
2

Hendelser

20.04.2026 188/54 - Klundbyvegen 262, Biri - Kopi - Søknad om dispensasjon fra byggegrense
25.03.2026 188/54 - Klundbyvegen 262, Biri - Henvendelse om tilleggsinformasjon
20.03.2026 188/54 - Klundbyvegen 262, Biri - Søknad om bruksendring - Tilbakemelding om mangler
20.03.2026 188/54 - Klundbyvegen 262, Biri - Supplering av søknad
05.03.2026 188/54 - Klundbyvegen 262, Biri - Søknad om bruksendring kjeller fra tilleggsdel til hoveddel, fasadeendring, innvendig endring bærekontruksjoner