ChangeOfUse UnderBehandling Enebolig

Bruksendring og ombygging i kjeller, Knappenveien 81, Bergen

📍 Knappenveien 81 , 5151 STRAUMSGREND

Nøkkelinfo

Sakstype
Bruksendring
Bygningstype
Enebolig
Bruksareal
72 m²
Boenheter
1
Kommune
Bergen
Fylke
Vestland
Gnr / Bnr
28 / 242
Saksnummer
BYGG-2025/15686
Fase
Under behandling

Om byggesaken

Bruksendring av kjelleretasjen i en eksisterende enebolig på Knappenveien 81, med ombygging til boligformål. Kjelleren på 72 m² innredes med soverom, bad, stue/oppholdsrom, boder, teknisk rom og kjøkken. Bygget er en trebygget enebolig med flatt og valmtak, gesimshøyde 6,5 meter, og består totalt av tre etasjer. Ombyggingen inkluderer tømrerarbeider og montering av trekonstruksjoner, men sanitærinstallasjoner er fjernet fra søknaden da våtrommet er innenfor samme bruksenhet og ikke søknadspliktig. Det foreligger dispensasjon fra reguleringsplan for tiltaket. Prosjektet har ansvarlig søker og prosjekterende med sentral godkjenning, og tiltakshaver søker ferdigattest.

Produkter og materialer

Gulv Gulv i kjeller

Gulv i kjelleretasjen tilpasset boligformål

Grunnarbeid Klargjøring av kjellerareal

Klargjøring av eksisterende kjeller for boligformål

Bad Innredning og våtromsarbeid

Antall: 1

Bad på 5,6 m² i kjeller, ikke søknadspliktig sanitærinstallasjon

Oppgradering og innredning av bad i kjeller, våtrom innenfor samme bruksenhet

Tømrer Montering av trekonstruksjoner

🧱 tre

Tømrerarbeider og montering av trekonstruksjoner i kjeller ved bruksendring

Tømrerarbeid for ombygging av kjeller til boligrom, inkludert vegger, tak og gulvkonstruksjoner

Elektro Elektrisk installasjon

Elektriske installasjoner i kjeller ved ombygging til boligrom

Dører Innvendige og utvendige dører

🧱 tre

Antall: 18

Dører i kjeller og øvrige etasjer, totalt 18 stk

Dører til rom i kjeller og øvrige etasjer, inkludert ytterdører

Vinduer Fasadevindu i tre

🧱 tre

Antall: 14

Vinduer i tre på fasader, totalt 14 stk fordelt på alle etasjer

Eksisterende vinduer i eneboligen, ingen nye vinduer spesifisert

Ventilasjon Ventilasjonssystem

Ventilasjon tilpasset bruksendring i kjeller

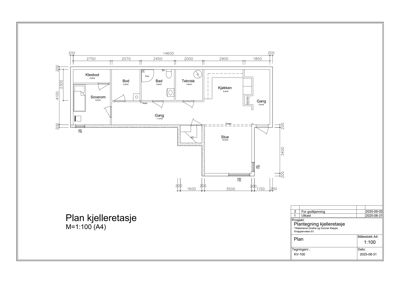
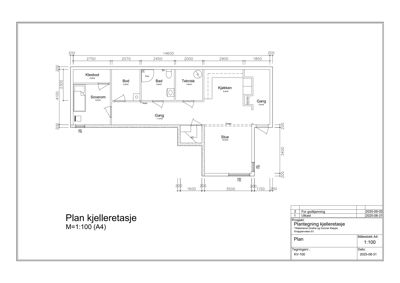
Plantegning

Enebolig 246.6 m²

Etasje 0 72.0 m²

Rom Areal Vinduer Dører
Kjeller 72.0 m² 0 1
Soverom 001 8.2 m² 0 1
Klesbod 002 4.6 m² 0 0
Gang 003 11.5 m² 0 2
Bod 004 4.6 m² 0 1
Bad 005 5.6 m² 0 1
Teknisk 006 4.6 m² 0 1
Kjøkken 007 9.5 m² 0 1
Stue 008 16.0 m² 0 1
Gang 009 5.5 m² 0 1

Etasje 1 104.8 m²

Rom Areal Vinduer Dører
Gjester 101 12.2 m² 0 1
Hall 102 8.7 m² 0 2
Vaskerom 103 3.4 m² 0 1
Bod 104 8.1 m² 0 1
Sov 105 11.6 m² 1 1
Sov 106 14.0 m² 1 1
Sov 107 12.2 m² 1 1
Gang 108 13.5 m² 0 0
Bad 109 9.4 m² 0 1

Etasje 2 69.8 m²

Rom Areal Vinduer Dører
Stue 201 33.0 m² 0 1
Stue 202 18.0 m² 0 1
Kjøkken 203 16.0 m² 0 1

Fasader

Enebolig

Sør
Materiale
Tre
Taktype
Flatt tak
Høyde
6.5 m
Vinduer
4
Dører
1
Balkonger
1
Synlige etasjer
2
Vest
Materiale
Tre
Taktype
Valmtak
Høyde
6.5 m
Vinduer
3
Dører
1
Balkonger
1
Synlige etasjer
2
Nord
Materiale
Tre
Taktype
Flatt tak
Høyde
6.5 m
Vinduer
3
Dører
1
Synlige etasjer
1
Øst
Materiale
Tre
Taktype
Valmtak
Høyde
6.5 m
Vinduer
2
Dører
1
Balkonger
1
Synlige etasjer
2

Hendelser

12.04.2026 Spørsmål til saksbehandler
07.04.2026 Avslag på søknad om ferdigattest, 28/242, Knappenveien 81
07.04.2026 Avslag på søknad om ansvarsrett som selvbygger, 28/242, Knappenveien 81
15.03.2026 Knappenveien 81 Supplering av søknad 28/242
15.03.2026 Knappenveien 81 Søknad om ferdigattest 28/242
02.03.2026 Knappenveien 81, foreløpig tilbakemelding på søknad om selvbygger
28.02.2026 Knappenveien 81 Supplering av søknad 28/242
14.11.2025 Fakturagrunnlag - 28/242/0/0 Knappenveien 81, bruksendring bolig
14.11.2025 ubw ordre 20681793/tillatelse
06.11.2025 Tillatelse til tiltak med ansvarsrett, 28/242, Knappenveien 81
02.10.2025 Knappenveien 81, anmodning om uttalelse
23.09.2025 Knappenveien 81 Supplering av søknad 28/242
09.09.2025 Knappenveien 81, foreløpig tilbakemelding på søknad om bruksendring bolig
07.09.2025 Knappenveien 81 Søknad om tillatelse i ett trinn 28/242