ChangeOfUse UnderBehandling Enebolig

Bruksendring og oppdeling til to boenheter i Moveien 24, Harstad

📍 Moveien 24 , 9403 HARSTAD

Nøkkelinfo

Sakstype
Bruksendring
Bygningstype
Enebolig
Bruksareal
152 m²
Boenheter
2
Kommune
Harstad - Hárstták
Fylke
Troms - Romsa - Tromssa
Gnr / Bnr
62 / 186
Saksnummer
2024/10267
Fase
Under behandling

Om byggesaken

Eksisterende enebolig fra 1953 med tradisjonell trekonstruksjon og betonggrunnmur gjennomgår bruksendring og oppdeling til to boenheter. Kjelleren på 71 m² innredes som en selvstendig boenhet med rom som entre, vaskerom, bad, to soverom og stue/kjøkken. Det etableres ny intern trapp mellom kjeller og 1. etasje som fjernes for å skille boenhetene. Det settes inn nytt vindu i kjellerens soverom. Bygningen har saltak og trefasader, og fasadene oppgraderes med nye vinduer med lydisolasjon mot støy fra nærliggende vei. Tiltaket inkluderer branntekniske oppgraderinger i henhold til TEK17 med branncelleinndeling, brannalarmanlegg med seriekoblede røykvarslere, manuelle slokkeapparater og rømningsveier med utvendig bøylestige. Det søkes om fravik fra enkelte TEK17-krav som radon, lydisolasjon, energieffektivitet og romhøyde i kjeller, begrunnet i byggets alder og tekniske tilstand. Naturfarevurderinger viser at eiendommen ligger i aktsomhetsområde for snøskred og marin leire, men geoteknisk vurdering konkluderer med stabil grunn og ingen fare for kvikkleireskred. Det er etablert parkeringsløsning i henhold til krav. Prosjektet har ansvarlige aktører med sentral godkjenning og er under behandling i kommunen.

Produkter og materialer

Brannvern Manuelt slokkeutstyr

Håndslokkeapparater og brannslanger i henhold til brannstrategi

Manuelt slokkeutstyr plassert lett tilgjengelig i boenhetene

Elektro Elektriske installasjoner

Oppgradering av elektriske anlegg i ny boenhet og fellesarealer

Elektriske installasjoner oppgradert i henhold til gjeldende forskrifter

Brannvern Brannalarmanlegg

Seriekoblede optiske røykvarslere tilkoblet strøm med batteribackup

Brannalarmanlegg med røykvarslere i alle boenheter og etasjer

Bad Våtromsinnredning

Antall: 2

Bad i kjeller og øvrige etasjer oppgradert med våtromsstandard

Oppgradering av bad med våtromsstandard og uavhengig kontroll

Trapper Innvendig trapp

🧱 Tre

Antall: 2

Ny trapp mellom kjeller og 1. etasje fjernes for oppdeling

Innvendig trapp som fjernes for å dele boenheter, ny trapp i eksisterende bolig

VVS Ventilasjon

Ventilasjon med varmegjenvinning i kjellerboenhet

Oppgradert ventilasjon for ny boenhet i kjeller

Isolasjon Veggisolasjon

Isolasjon i yttervegger og tak oppgradert i henhold til TEK17, med unntak for enkelte fravik

Isolasjon i yttervegger og tak for energieffektivitet og støyreduksjon

Vinduer Fasadevindu

🧱 Tre med lydisolasjon

Antall: 14

Oppgradert lydisolasjon i vinduer mot støybelastet vei, i henhold til T-1442/2016

Nye fasadevinduer med god lydisolasjon for å redusere støy fra hovedvei

Gulv Flytende gulv

Flytende gulv for lydisolasjon i kjeller

Lydhimling og flytende gulv for forbedret lydkomfort i ny boenhet

Mur Grunnmur i betong

🧱 Betong

Eksisterende grunnmur i betong opprettholdes

Grunnmur i betong som bærer eksisterende konstruksjon

Grunnarbeid Fundamentering

Ingen endringer i grunnforhold, stabil fundamentering på fjell eller fast grunn

Eksisterende fundamentering vurdert som stabil uten behov for nye grunnarbeider

Fasade Trepanel

🧱 Tre

Trefasader med saltak, oppgraderes i forbindelse med tiltak

Yttervegger med trepanel og saltak, oppgradering av fasadeelementer

Terrasse Bøylestige utvendig

🧱 Metall

Antall: 1

Utvendig bøylestige for rømningsvei fra kjeller med brannklasse EI30 på vindu mot stige

Utvendig rømningsstige med ryggbøyle for sikker evakuering fra kjeller

Dører Innvendige dører

🧱 Tre

Antall: 22

Innvendige dører i kjeller og øvrige etasjer for romavgrensning

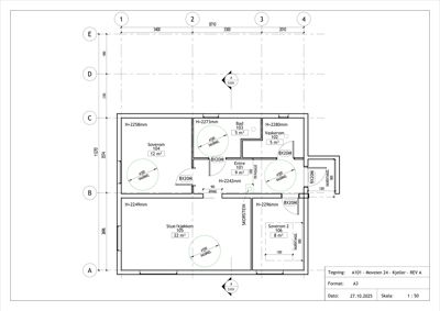
Plantegning

Kjeller 71.0 m²

Etasje 0 71.0 m²

Rom Areal Vinduer Dører
Entre 101 9.0 m² 0 2
Vaskerom 102 5.0 m² 0 1
Bad 103 5.0 m² 0 1
Soverom 104 12.0 m² 0 1
Stue/kjøkken 105 22.0 m² 0 1
Soverom 2 106 8.0 m² 0 1

Enebolig 0.0 m²

Etasje 0 0.0 m²

Rom Areal Vinduer Dører
Teknisk rom 001 0.0 m² 0 1
Stue 002 14.0 m² 1 1
Vaskerom 003 4.0 m² 0 1
WC 004 1.5 m² 0 1
Bad 005 2.0 m² 0 1
Gang 006 2.5 m² 0 1

Etasje 1 0.0 m²

Rom Areal Vinduer Dører
Stue 101 0.0 m² 2 2
Kjøkken 102 0.0 m² 1 1
Gang 103 0.0 m² 0 2
Bad 104 0.0 m² 0 1
Toalett 105 0.0 m² 0 1
Soverom 1 106 0.0 m² 1 1
Soverom 2 107 0.0 m² 1 1
Soverom 3 108 0.0 m² 1 1

Etasje 2 0.0 m²

Rom Areal Vinduer Dører
Stue 201 0.0 m² 1 1
Soverom 202 0.0 m² 1 1
Gang 203 0.0 m² 0 1
Bad 204 5.0 m² 0 1
Vaskerom 205 3.0 m² 0 1
WC 206 2.0 m² 0 1
Soverom 207 10.0 m² 1 1

Fasader

Enebolig

Nordvest
Materiale
Tre
Taktype
Saltak
Vinduer
4
Dører
0
Balkonger
1
Synlige etasjer
2
Nordøst
Materiale
Tre
Taktype
Saltak
Vinduer
4
Dører
1
Balkonger
1
Synlige etasjer
2
Sørøst
Materiale
Tre
Taktype
Saltak
Vinduer
3
Dører
0
Synlige etasjer
2

Hendelser

17.04.2026 Gbnr 62/186 - Moveien 24 Ber om status i saken
25.11.2025 Gbnr 62/186 - Supplering av søknad
06.11.2025 Gbnr. 62/186 - Moveien 24 - Tilleggsfrist gitt
27.10.2025 Gbnr 62/186 Moveien 24 - Anmodning om utsatt frist
03.10.2025 Tilbakemelding til søknad
02.06.2025 Gbnr 62/186 Moveien 24 - Foreløpig svar
14.05.2025 Gbnr 62/186 - Moveien 24 - Supplering av søknad
02.05.2025 Gbnr 62/186 Moveien 24 - Svarbrev fra bygningsmyndigheten
24.04.2025 Anmodning om utsettelse av frist
21.03.2025 Gbnr 62/186 Moveien 24 - Oppdatering byggesak og anmodning om tilleggsinformasjon - Oppdeling av boenhet
11.03.2025 NVEs uttalelse - Søknad om bruksendring på gnr. 62 bnr. 186 - Moveien 24
28.02.2025 Gbnr. 62/186 Moveien 24 - Foreløpig svarbrev - Oppdatering byggsak
20.01.2025 Gbnr. 62/186 Moveien 24 - Ber om konkret bistand i sak - Aktsomhetsområde snøskred - Oppdeling av boenhet
04.12.2024 Supplering av søknad - gbnr 62/186 Moveien 24
29.10.2024 Gbnr 62/186 - Moveien 24 - Oppdeling av boenhet - Anmodning om tilleggsinformasjon
30.09.2024 Foreløpig svar på søknad - Melding om saksbehandlingstid - Bruksendring fra tilleggsdel til hoveddel
19.09.2024 Søknad om tillatelse i ett trinn - gbnr 62/186 Moveien 24