ChangeOfUse UnderBehandling Enebolig

Bruksendring og sammenbygging av uthus til bolig, Nedre Bjerggate 14

📍 Nedre Bjerggate 14A , 3181 HORTEN

Nøkkelinfo

Sakstype
Bruksendring
Bygningstype
Enebolig
Bruksareal
170 m²
Boenheter
2
Kommune
Horten
Fylke
Vestfold
Gnr / Bnr
128 / 257
Saksnummer
2025/961
Fase
Under behandling

Om byggesaken

Prosjektet omfatter bruksendring av et eksisterende uthus/bryggerhus til boligformål, sammenbygging av uthuset med hovedboligen via en ny forbindelsesgang med trapp, samt innvendig ombygging og fasadeendring. Bygningene består av to boenheter, hvor 1. etasje i hovedbygget og uthuset knyttes sammen til én stor boenhet, mens 2. etasje i hovedhuset beholdes som egen boenhet. Det etableres en liten takterrasse på forbindelsesgangen. Ombyggingen inkluderer etterisolering med 50 mm ekstremisolasjon, oppgradering av vinduer til TEK17-krav, og tilpasning av våtrom. Deler av eksisterende terrasse rives for å kompensere for økt bebygd areal (BYA). Eiendommen har en total grunnflate på ca. 151 m² BYA, med en utnyttelsesgrad på 41,2 %, som overskrider kommuneplanens 30 % BYA, men tiltaket endrer ikke dette. Det søkes også om dispensasjon for manglende uteoppholdsareal og enkelte tekniske fravik fra TEK17.

Produkter og materialer

Riving Riving av terrasse

Riving av ca. 2,4 m² terrasse for å kompensere for økt BYA ved ny gang

Riving for å opprettholde BYA i tråd med reguleringsbestemmelser

Vinduer Oppgraderte vinduer

🧱 3-lags energiglass

Vinduer oppgradert til TEK17 krav for U-verdi

Oppgradering av eksisterende vinduer i uthus og hovedhus

Grunnarbeid Fundamentering for ny gang og trapp

Grunnarbeid for ny forbindelsesgang og trapp mellom byggene

Fundamentering og grunnarbeid for ny konstruksjon

Ventilasjon Naturlig ventilasjon

Ventilasjon via ventiler og åpningsbare vinduer i henhold til søkt fravik fra TEK17 § 13-2

Ventilasjon tilpasset eksisterende bygg og bruksendring

VVS Innvendig sanitærinstallasjoner

Oppgradering og tilpasning av våtrom i hovedhus og uthus

Sanitærinstallasjoner for nye og ombygde våtrom

Tømrer Innvendig ombygging og tilbygg

🧱 Treverk

Innvendige tilpasninger i 1. og 2. etasje i hovedhus og uthus, inkludert montering av ny gang og trapp

Tømrerarbeid for ombygging og sammenbygging

Isolasjon Utvendig veggisolasjon

🧱 Ekstremisolasjon 50 mm

Etterisolering av vegger og tak i uthuset for å oppgradere energikrav

Isolasjon for bedre energiytelse i bruksendret uthus

Maling Utvendig maling

🧱 Trebeskyttelse/maling

Maling av ny fasade og forbindelsesgang for å matche eksisterende bygg

Overflatebehandling av treverk utvendig

Fasade Forbindelsesgang med trapp

🧱 Tre med saltak

Antall: 1

Ny gang med trapp mellom uthus og hovedhus, med tilsvarende materialer og tak som eksisterende bygg

Bygging av ny sammenbindingsgang med trapp

Fasade Nye fasadevindu

🧱 Tre/aluminium med 3-lags energiglass

Antall: 1

Nytt vindu mot vest i 1. etasje i uthuset, oppgradert iht. TEK17 U-verdi

Nytt fasadevindu i uthuset for bedre lys og ventilasjon

Tak Takterrasse

🧱 Tretak med membran

Antall: 1

Takterrasse på ca. 3,5 m² på forbindelsesgangens tak

Ny takterrasse på forbindelsesgangen mellom uthus og hovedhus

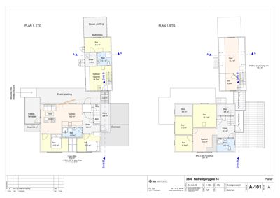
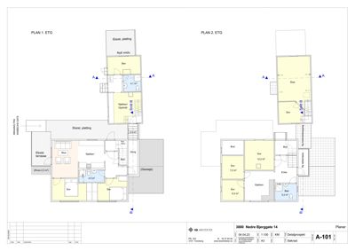
Plantegning

Enebolig 170.0 m²

Etasje 1 105.0 m²

Rom Areal Vinduer Dører
Stue 101 28.0 m² 1 1
Kjøkken 102 18.0 m² 1 1
Gang 103 12.0 m² 0 3
Bod 104 4.0 m² 0 1
Sov 105 14.0 m² 1 1
Sov 106 12.0 m² 1 1
Sov 107 11.0 m² 1 1
Bad 108 4.5 m² 0 1
Garasje 109 24.0 m² 1 1
Bad 110 4.1 m² 0 1
Entre 111 3.4 m² 0 1
Kjøkken/Opphold 112 14.2 m² 0 1

Etasje 2 65.0 m²

Rom Areal Vinduer Dører
Stue 201 25.0 m² 1 1
Sov 202 12.2 m² 1 1
Sov 203 7.2 m² 1 1
Sov 204 6.3 m² 1 1
Kjøkken 205 10.0 m² 1 1
Bad 206 5.2 m² 0 1
Bod 207 4.0 m² 0 1
Bod 208 3.0 m² 0 1
Entre 209 2.3 m² 0 1
Bad 210 5.2 m² 0 1

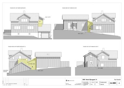
Fasader

Enebolig

Øst
Materiale
Tre
Taktype
Saltak
Vinduer
5
Dører
1
Synlige etasjer
2
Sør
Materiale
Tre
Taktype
Saltak
Vinduer
3
Dører
2
Synlige etasjer
2
Nord
Materiale
Tre
Taktype
Saltak
Vinduer
2
Dører
0
Synlige etasjer
2
Vest
Materiale
Tre
Taktype
Saltak
Vinduer
2
Dører
0
Synlige etasjer
2

Hendelser

20.04.2026 Nedre Bjerggate 14 - spørsmål om status
27.11.2025 128/257 - Nedre Bjerggate 14 - bruksendring fra uthus til boligformål, sammenbygging av uthus og bolig - bekrefter mottak
21.11.2025 128/257 - Nedre Bjerggate 14 - bruksendring fra uthus til boligformål, sammenbygging av uthus og bolig, innvendig ombygging, fasadeendring - svarbrev
03.11.2025 128/257 - Nedre Bjerggate 14 - bruksendring fra uthus til boligformål, sammenbygging av uthus og bolig, innvendig ombygging, fasadeendring - tilbakemelding
30.10.2025 Nedre Bjerggate 14, 128_257 - bruksendring fra uthus til boligformål, sammenbygging av uthus og bolig, innvendig ombygging, fasadeendring - søknad om dispensasjon
30.10.2025 Nedre Bjerggate 14, 128/257 - bruksendring fra uthus til boligformål, sammenbygging av uthus og bolig, innvendig ombygging, fasadeendring - søknad om tillatelse i ett trinn
30.09.2025 Purring status resterende søknader
14.02.2025 Spørsmål om status i byggesøknad - ny påminnelse
17.01.2025 Spørsmål om status i byggesøknad