ChangeOfUse Soeknad Enebolig

Bruksendring til minilager med heistilbygg på Nedre Nøttveit 12, Bergen

📍 Nedre Nøttveit 12 , 5238 RÅDAL

Nøkkelinfo

Sakstype
Bruksendring
Bygningstype
Enebolig
Bruksareal
2,487 m²
Kommune
Bergen
Fylke
Vestland
Gnr / Bnr
88 / 142
Saksnummer
BYGG-2026/12629
Fase
Søknad

Om byggesaken

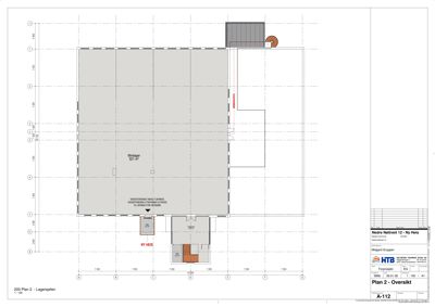
Eksisterende enebolig/forretningsbygg på Nedre Nøttveit 12 gjennomgår bruksendring av ca. 920 m² av 2. etasje fra kontor til selvbetjent minilager. Det etableres et nytt utvendig heishus på 15 m² for direkte tilkomst til 2. etasje. Bygget har saltak og betongfasade, med to etasjer og gesimshøyde på 4,4 meter. Tiltaket inkluderer mindre bygningsmessige inngrep som fjerning av eksisterende vindu for heisdøråpning og tilpasning av fasade. Området er innenfor flomsone, og heistilbygget plasseres i sikkerhetsklasse F1. Prosjektet innebærer også dispensasjon fra reguleringsplanens arealformål og byggegrenser. Totalt areal etter tiltaket er ca. 2487 m² med en utnyttelsesgrad på 36,5 % av tomten på 6811 m².

Produkter og materialer

Grunnarbeid Fundamentering for heistilbygg

Fundamentering for nytt heishus på 15 m²

Grunnarbeid for oppføring av heistilbygg

Tømrer Bygningsmessige tilpasninger for bruksendring

Innvendige tilpasninger for ombygging av kontor til minilager, inkludert riving av kontorvegger

Ombygging av 920 m² kontor til minilager med mindre bygningsmessige inngrep

Fasade Betongfasade med saltak

🧱 Betong

Fasade i betong med saltak, gesimshøyde 4,4 m, mønehøyde 6,14 m

Eksisterende fasade med mindre endringer for heistilbygg

Ventilasjon Ventilasjonstilpasning for lagerbruk

Tilpasning av ventilasjon for endret bruk fra kontor til lager

Heis Utvendig heishus

Antall: 1

Heistilbygg på 15 m² med direkte tilkomst til 2. etasje, inkludert teleskopdør og takoverbygg

Ny utvendig heis for adgang til 2. etasje minilager

Vinduer Fasadevindu fjernes for heisdøråpning

Antall: 1

Eksisterende vindu fjernes og utsparing utvides for heisdør

Fjerning av vindu i fasade for etablering av heisdør

Elektro Heisinstallasjon

Antall: 1

Elektrisk installasjon for ny heis

Elektroarbeid knyttet til heis

Maling Innvendig maling og overflatebehandling

Maling og overflatebehandling etter ombygging

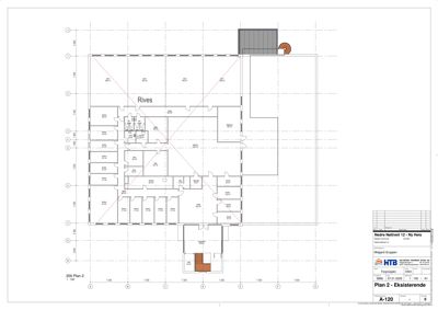
Plantegning

Butikk 1,045.8 m²

Etasje 1 1,045.8 m²

Rom Areal Vinduer Dører
Teknisk rom 101 14.6 m² 0 1
Frys 102 24.8 m² 0 1
Kjøl F/G 103 17.8 m² 0 1
Kjøl Meieri 104 42.7 m² 0 1
Lager 105 142.3 m² 0 1
B.K. 106 9.2 m² 0 1
WC 107 2.8 m² 0 1
WC 108 2.8 m² 0 1
Garderobe 109 4.2 m² 0 1
Garderobe 110 4.2 m² 0 1
Spiserom 111 13.7 m² 0 1
HCWC 112 5.5 m² 0 1
Telerom 113 6.2 m² 0 1
Kontor 114 11.1 m² 0 1
Ventilasjonsrom 115 27.1 m² 0 1
VF 116 20.1 m² 0 1
Heis 117 6.3 m² 0 1
WC 118 2.3 m² 0 1
Kontor 119 37.5 m² 0 0
Kontor 120 11.1 m² 0 0
Kontor 121 11.1 m² 0 0
Kontor 122 11.1 m² 0 0
Kontor 123 11.1 m² 0 0
Kontor 124 8.3 m² 0 0
Kontor 125 10.4 m² 0 0
Kontor 126 10.0 m² 0 0
Kontor 127 9.7 m² 0 0
Lobby 128 54.2 m² 0 0
Gang 129 34.5 m² 0 0
Disp 130 10.3 m² 0 0
Disp 131 22.1 m² 0 0
Arkiv 132 6.2 m² 0 0
Teknisk 133 20.3 m² 0 0
Disp 134 7.2 m² 0 0
Oppvask 135 5.0 m² 0 0
Trapprom 136 57.4 m² 0 0
Heis 137 6.3 m² 0 0

Lagerbygg 921.0 m²

Etasje 1 921.0 m²

Rom Areal Vinduer Dører
Minilager 101 921.0 m² 16 0

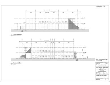
Fasader

Hovedbygg

Vest
Materiale
Betong
Taktype
Saltak
Høyde
4.4 m
Mønehøyde
6.1 m
Vinduer
10
Dører
1
Synlige etasjer
2
Øst
Taktype
Saltak
Høyde
4.4 m
Mønehøyde
6.1 m
Vinduer
10
Dører
1
Synlige etasjer
2
Nord
Høyde
4.4 m
Mønehøyde
6.1 m
Vinduer
10
Dører
0
Synlige etasjer
2
Sør
Høyde
4.4 m
Mønehøyde
6.1 m
Vinduer
14
Dører
0
Balkonger
1
Synlige etasjer
2

Hendelser

17.04.2026 Nedre Nøttveit 12 Søknad om rammetillatelse 88/142