ChangeOfUse Soeknad Enebolig

Bruksendring av loft til hoveddel i Nipedalen 19B, Bergen

📍 Nipedalen 19B , 5164 LAKSEVÅG

Nøkkelinfo

Sakstype
Bruksendring
Bygningstype
Enebolig
Bruksareal
260 m²
Boenheter
2
Kommune
Bergen
Fylke
Vestland
Gnr / Bnr
148 / 23
Saksnummer
BYGG-2026/12655
Fase
Søknad

Om byggesaken

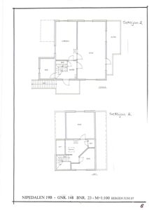
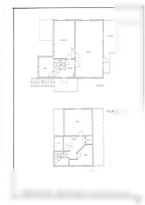
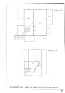
Bruksendring av loftsetasje i en horisontaldelt tomannsbolig i Nipedalen 19B, Bergen, fra tilleggsdel til hoveddel, som medfører at bygget får totalt tre etasjer. Loftet på ca. 60 m² innredes til boligformål med nødvendige branntekniske tiltak, inkludert etablering av ny rømningsvei via brannsikret utvendig rømningsstige med ryggbøyle og oppgradering av utvendig rømningstrapp fra 2. etasje med brannmotstandskrav. Bygningen har eksisterende trapp til loft som skal brannsikres, vinduer skal skiftes til brannsikkert glass, og det monteres brannstige med ryggbøyle. Brannteknisk prosjektering er utført med tiltaksklasse 1, og tiltakene inkluderer brannmotstandskrav for bæring og skjerming av utvendig trapp, samt krav til materialer og overflater i henhold til TEK17/VTEK17. Røykvarslere tilkoblet strømforsyning installeres i alle etasjer. Utvendig fasade er i tre med saltak, og bygget har balkonger og pipe. Rømningsveier og brannceller er tilpasset ny bruk.

Produkter og materialer

Dører Rømningsdør

Dør til rømningsvei med fri bredde min. 0,86 m og høyde min. 2,0 m, skal kunne åpnes uten nøkkel

Dører i rømningsvei i 2. og 3. etasje

Elektro Røykvarslere

Røykvarslere tilkoblet strømforsyning med batteri som reserveløsning, seriekoblet i branncelle

Installasjon av røykvarslere i alle etasjer i henhold til TEK17

Tømrer Innvendige dører

Dører i rømningsvei med fri bredde og høyde, lett åpning uten nøkkel

Innvendige dører tilpasset rømningskrav

Grunnarbeid Terrengtilpasning

Terreng rundt bygget tilrettelagt for rømningsvei og brannvesenets tilkomst

Terrengarbeid for sikker rømningsvei og brannvesenets adkomst

Isolasjon Ubrennbar isolasjon

🧱 A2-s1,d0 klasse

Isolasjon i yttervegger og tak skal være ubrennbar klasse A2-s1,d0

Isolasjon i konstruksjoner i forbindelse med bruksendring

Tømrer Brannsikring av konstruksjoner

Branncellebegrensende vegger og etasjeskiller med EI30 brannmotstand, overflater med D-s2,d0 og kledning K210 D-s2,d0

Brannsikring av vegger, himlinger og etasjeskiller i loft og trappeløp

Trapper Utvendig rømningstrapp

Antall: 1

Brannmotstand bæring R30, skjerming EI30, bredde skjerm minst 1,2 m, tett rekkverk

Oppgradering og brannsikring av eksisterende utvendig rømningstrapp fra 2. etasje

Brannvern Brannslanger

Formstabil brannslange med indre diameter minimum 10 mm, maks lengde 30 m

Brannslanger plassert for dekning av alle rom og områder

Brannvern Håndslokkere

Pulverapparat minimum 6 kg, effektivitetsklasse minst 21A

Manuelt slokkeutstyr plassert slik at alle rom dekkes

Maling Brannhemmende maling

Spesialmaling for oppnåelse av brannklasse In1 i hulrom og innvendige overflater

Brannhemmende behandling av innvendige overflater i branncellebegrensende konstruksjoner

Trapper Utvendig rømningsstige med ryggbøyle

Antall: 1

Rømningsstige med ryggbøyle, avstand til terreng maks 7,5 m, beskyttet mot flammer og strålevarme

Montering av utvendig rømningsstige som alternativ rømningsvei fra loft

Fasade Flammeskjerm

🧱 Materialklasse B-s3,d0 [Ut 1] eller K210 B-s3,d0

Flammeskjerm på utvendig trapp og altan, bredde minst 1,2 m

Branncellebegrensende skjerming av utvendig rømningstrapp og altan

VVS Vann- og avløpsrør

Rørgjennomføringer med brannmansjett EI60 eller tilsvarende tetting

Branntetting av rørgjennomføringer i branncellebegrensende konstruksjoner

Vinduer Brannsikret vindu

🧱 Brannsikkert glass

Vinduer i branncellebegrensende konstruksjoner med brannmotstand EI30 eller E15 iht. Byggdetaljblad 520.391 og 520.322

Skifte av vinduer til brannsikret glass i loftsetasje og vinduer nær rømningsstige

VVS Kjøkkenavtrekk

Avtrekk med fettfilter, kanaler av ubrennbart materiale med brannmotstand EI15

Kjøkkenavtrekk i loftsetasje med brannsikring av kanaler

Fasader

Enebolig

Sydøst
Materiale
Tre
Taktype
Saltak
Vinduer
3
Dører
1
Balkonger
1
Synlige etasjer
2
Nordøst
Materiale
Tre
Taktype
Saltak
Vinduer
4
Dører
1
Balkonger
1
Synlige etasjer
2

Hendelser

19.04.2026 Nipedalen 19B Søknad om tillatelse til tiltak uten ansvarsrett 148/23