ChangeOfUse UnderBehandling Enebolig

Bruksendring og fasadeendring på enebolig, Nordre Skansemyren 12, Bergen

📍 Nordre Skansemyren 12 , 5019 BERGEN

Nøkkelinfo

Sakstype
Bruksendring
Bygningstype
Enebolig
Bruksareal
251 m²
Boenheter
3
Kommune
Bergen
Fylke
Vestland
Gnr / Bnr
166 / 255
Saksnummer
BYGG-2026/00425
Fase
Under behandling

Om byggesaken

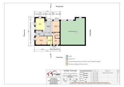
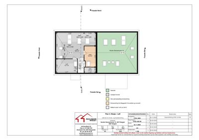
Bruksendring av deler av en eksisterende enebolig på Nordre Skansemyren 12, Bergen, med et totalt areal på ca. 251 m² BRA fordelt på kjeller, 1., 2. etasje og loft. Endringene inkluderer omdisponering av rom som vaskerom til soverom, bod til kjøkken, fjerning av innvendige trapper mellom etasjer, og etablering av ny inngang via gangbro i 2. etasje. Fasadeendringer omfatter nye takvinduer i loftsetasje, nye dører og skyvedør til altan, samt utskifting av yttertak til rød tegl. Tilbygget er en gangbro på ca. 10,6 m² BYA, plassert på søyler, som gir direkte utgang fra 2. etasje til terreng. Antall boenheter i bygget endres ikke. Bygningen er oppført i tre med saltak, og tiltaket er tilpasset eksisterende kulturmiljø og reguleringsbestemmelser.

Produkter og materialer

Grunnarbeid Fundamentering for gangbro

🧱 Betongfundament for søyler

Fundamentering for gangbro på søyler, ca. 10,6 m² BYA

Fundamentering for nytt tilbygg i form av gangbro med søyler

VVS Sanitærinstallasjoner

Oppgradering av bad og vaskerom, inkludert nytt bad i kjeller og utvidelse av WC

VVS-arbeider knyttet til ombygging av bad og vaskerom

Vinduer Takvinduer

🧱 3-lags energiglass

Antall: 2

Nye takvinduer i loftsetasje, type ikke spesifisert, men med krav til energiglass

Nye takvinduer for loftsetasje for bedre lysinnslipp og ventilasjon

Fasade Taktekking

🧱 Rød teglstein

Utskifting av yttertak fra betongtakstein til rød tegl, tilsvarende nabo

Nytt tak med rød teglstein for å harmonisere med nabobygning

Tømrer Innvendige konstruksjoner og ombygging

🧱 Tre og bygningsmaterialer

Fjerning av innvendige trapper, omdisponering av rom til soverom, kjøkken, bod, vaskerom

Innvendige ombygginger og tilpasninger i eksisterende bolig

Elektro Elektrisk installasjon

Oppdatering av elektrisk anlegg i forbindelse med ombygging og nye dører/vinduer

Elektriske installasjoner tilpasset nye rom og fasadeendringer

Fasade Kledning

🧱 Tre

Eksisterende trefasade opprettholdes med mindre endringer ved nye vinduer og dører

Fasadeendringer med nye vinduer og dører i trefasade

Dører Ytterdører og skyvedør til altan

🧱 Tre eller tilsvarende, med glassfelt

Antall: 3

Ny ytterdør til 1. etasje, ny dør til 1. etasje, skyvedør til altan i 2. etasje

Nye ytterdører og skyvedør for fasadeendring og ny inngang via gangbro

Trapper Fjerning av trapper

Antall: 2

Fjerning av trapper mellom kjeller og 1. etasje, og mellom 1. og 2. etasje

Fjerning av eksisterende innvendige trapper som del av ombyggingen

Rekkverk Rekkverk for gangbro

🧱 Tre eller metall

Rekkverk på gangbro for sikkerhet, detaljer ikke spesifisert

Sikkerhetsrekkverk på nytt tilbygg gangbro

Gulv Innvendige gulvflater

Oppgradering og tilpasning av gulv i ombygde rom, materialvalg ikke spesifisert

Gulvarbeider i forbindelse med innvendige bruksendringer

Fasader

Enebolig

Nordvest
Materiale
Tre
Taktype
Saltak
Vinduer
11
Dører
0
Synlige etasjer
3
Sørøst
Materiale
Tre
Taktype
Saltak
Vinduer
4
Dører
2
Synlige etasjer
2
Vest
Materiale
Tre
Taktype
Saltak
Vinduer
4
Dører
0
Synlige etasjer
2
Øst
Materiale
Tre
Taktype
Saltak
Vinduer
4
Dører
2
Synlige etasjer
2

Hendelser

20.04.2026 Fakturagrunnlag
20.04.2026 Ubw ordre 20694386
10.04.2026 Rammetillatelse, 166/255, Nordre Skansemyren 12
08.04.2026 Oppdatert avstandserklæring - 166/255/0/0 Nordre Skansemyren 12, bruksendring fra tilleggsdel til hoveddel
31.03.2026 Behov for ny avstandserklæring
27.03.2026 Nordre Skansemyren 12 Supplering av søknad 166/255
24.03.2026 Status søknad
12.03.2026 Utsatt frist - 166/255/0/0 Nordre Skansemyren 12, bruksendring fra tilleggsdel til hoveddel
25.02.2026 Byantikvarens tilbakemelding i sak BYGG-2026/00425, 166/255 Nordre Skansemyren 12, bruksendring m.m.
19.02.2026 Status i sak- 166/255/0/0 Nordre Skansemyren 12, bruksendring fra tilleggsdel til hoveddel
19.02.2026 Ber om status - 166/255/0/0 Nordre Skansemyren 12, bruksendring fra tilleggsdel til hoveddel
30.01.2026 Nordre Skansemyren 12 Supplering av søknad 166/255
29.01.2026 Intern høring
29.01.2026 Behov for tilleggsopplysninger
22.01.2026 Bekreftelse på mottatt søknad
20.01.2026 Nordre Skansemyren 12 Søknad om rammetillatelse 166/255