ChangeOfUse Soeknad Enebolig

Bruksendring, fasadeendring og tilbygg på Enebolig, Østbakken 4

📍 Østbakken 4 , 1667 ROLVSØY

Nøkkelinfo

Sakstype
Bruksendring
Bygningstype
Enebolig
Bruksareal
209 m²
Boenheter
1
Kommune
Fredrikstad
Fylke
Østfold
Gnr / Bnr
717 / 73
Saksnummer
2026/10608
Fase
Søknad

Om byggesaken

Eneboligen på Østbakken 4 gjennomgår en bruksendring fra tilleggsdel til hoveddel i deler av underetasjen, med tilhørende endringer i bærekonstruksjoner. Det bygges et tilbygg over to etasjer på ca. 44 m² ved husets hjørne, samt en terrasse på 44 m². Fasaden får nye vinduer og utvendig tilleggsisolering. Bygget har saltak og trekledning, og inneholder blant annet flere soverom, bad, kjøkken og stuer fordelt på to etasjer. Det er én trapp i boligen som skal fjernes og erstattes med ny trapp i tilbygg. Prosjektet inkluderer også oppgradering av tekniske rom og vaskerom.

Produkter og materialer

Mur Grunnmur og fundament

🧱 Betong

Fundament og grunnmur for tilbygg iht. gjeldende forskrifter

Grunnarbeid og fundamentering for tilbygg

VVS Bad og vaskerom installasjoner

Oppgradering av bad og vaskerom i tilbygg og eksisterende bygg

Sanitærinstallasjoner for bad og vaskerom

Tilbygg To-etasjes tilbygg

🧱 Tre og betong, isolasjon iht. TEK17

Antall: 44

Tilbygg på ca. 44 m² over to etasjer ved hjørnet av huset

Nytt tilbygg med rom for stue, kjøkken, soverom og bad

Maling Innvendig og utvendig maling

🧱 Maling og beis for treflater

Maling av nye og eksisterende overflater utvendig og innvendig

Overflatebehandling av treverk og vegger

Trapper Innvendig trapp

🧱 Tre

Antall: 1

Eksisterende trapp fjernes, ny trapp bygges i tilbygg

Ny innvendig trapp i tilbygg for adkomst mellom etasjer

Tak Saltak

🧱 Tre, antatt tekket med takstein eller tilsvarende

Eksisterende saltak opprettholdes

Saltak på hele bygget

Fasade Vinduer

🧱 Tre/aluminium med 3-lags energiglass

Antall: 14

Nye vinduer i fasaden, minimum 0,60m høyde og 0,50m bredde, samlet lysflate minimum 1,50m

Nye fasadevinduer for å oppfylle dagslyskrav ved bruksendring

Terrasse Uteplass terrasse

🧱 Tre eller komposittdekke

Antall: 44

Terrasse på 44 m² i tilknytning til tilbygg

Ny terrasse som del av tilbygg

Isolasjon Utvendig isolasjon

🧱 Mineralull eller tilsvarende isolasjonsmateriale

Utvendig tilleggsisolering av fasade og tilbygg

Isolasjon for bedre energiytelse

Gulv Innvendige gulv

🧱 Parkett, fliser på bad

Nye gulv i tilbygg og oppgraderte gulv i eksisterende bygg

Innvendige gulvflater i bolig

Fasade Kledning

🧱 Tre med utvendig tilleggsisolering

Utvendig tilleggsisolering av fasade

Isolasjon og ny trekledning på fasade

Elektro Elektrisk anlegg

Oppgradering av elektrisk anlegg i tilbygg og eksisterende bygg

Elektriske installasjoner i nytt og eksisterende bygg

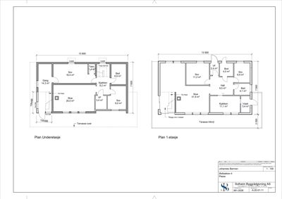
Plantegning

Enebolig 208.8 m²

Etasje 0 104.4 m²

Rom Areal Vinduer Dører
Gang Gang 14.3 m² 0 1
Stue Stue 25.0 m² 4 1
Sov Sov 16.5 m² 1 1
Kjøkken Kjøkken 9.2 m² 0 2
Vaskerom VF 3.4 m² 0 1
Sov Sov 9.0 m² 0 1
Teknisk rom Tekn. 1.4 m² 0 1
Bad Bad 6.9 m² 0 1

Etasje 1 104.4 m²

Rom Areal Vinduer Dører
Stue Stue 41.9 m² 3 1
Kjøkken Kjøkken 11.1 m² 1 1
Vaskerom Vask 3.4 m² 0 1
Hall Hall 9.5 m² 0 3
Sov Sov 11.2 m² 1 1
Vaskerom VF 2.4 m² 0 1
Bod Bod 4.0 m² 1 1
Sov Sov 6.9 m² 1 1
Bad Bad 4.1 m² 0 1

Fasader

Enebolig

Øst
Materiale
Tre
Taktype
Saltak
Vinduer
6
Dører
1
Balkonger
2
Synlige etasjer
2
Vest
Materiale
Tre
Taktype
Saltak
Vinduer
3
Dører
1
Synlige etasjer
1
Sør
Materiale
Tre
Taktype
Saltak
Vinduer
1
Dører
1
Balkonger
1
Synlige etasjer
1
Nord
Materiale
Tre
Taktype
Saltak
Vinduer
2
Dører
1
Balkonger
1
Synlige etasjer
1

Hendelser

20.04.2026 Mangelfull søknad - Bruksendring fra tilleggsdel til hoveddel, Endring - bærekonstruksjoner, Fasadeendring, Tilbygg inntil 50 m² - Østbakken 4 - Eiendom 717/73
10.04.2026 Ett-trinns søknad - Østbakken 4 - Eiendom 717/73 - Bruksendring fra tilleggsdel til hoveddel, Endring - bærekonstruksjoner, Fasadeendring, Tilbygg inntil 50 m²
10.04.2026 Bekreftelse på mottatt søknad - Ett-trinns søknad - Bruksendring fra tilleggsdel til hoveddel, Endring - bærekonstruksjoner, Fasadeendring, Tilbygg inntil 50 m² - Østbakken 4 - Eiendom 717/73