ChangeOfUse Ferdigattest Enebolig

Bruksendring i kjeller på enebolig, Øvre Kalfarlien 41, Bergen

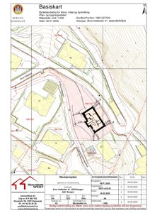
📍 Øvre Kalfarlien 41 , 5022 BERGEN

Nøkkelinfo

Sakstype
Bruksendring
Bygningstype
Enebolig
Bruksareal
106 m²
Boenheter
1
Kommune
Bergen
Fylke
Vestland
Gnr / Bnr
166 / 1227
Saksnummer
BYGG-2025/14420
Fase
Ferdigattest

Om byggesaken

Bruksendring av kjelleretasjen i en eksisterende enebolig fra ca. 1910 på Øvre Kalfarlien 41 i Bergen. Kjelleren består av to nivåer med rom som tidligere har vært brukt som hybelleilighet, med blant annet stue, kjøkken, bad, soverom og boder. Bygget har gjennomgått rehabilitering i 2014/15 og etter flomskade i 2017, inkludert oppgradering av elektrisk anlegg og drenering. Bruksendringen innebærer at kjelleretasjen formelt godkjennes som del av hovedboenheten, uten etablering av ny boenhet. Det er installert elektriske varmekabler, panelovner og varmepumpe for oppvarming. Tiltaket medfører ingen fasadeendringer eller utvendige bygningsmessige tiltak, og er tilpasset kulturminneverdiene i området. Arealet av eneboligen er ca. 106,5 m², med en trapp mellom kjellernivåene.

Produkter og materialer

Varmepumpe Luft-til-luft varmepumpe

Antall: 1

Varmepumpe for energiforsyning i kjeller

Energiforsyning til oppvarming i kjeller

VVS Ventilasjon og avfukteranlegg

Antall: 1

Automatisk avfukteranlegg montert i kjeller

Ventilasjon og fuktkontroll i kjeller for å sikre godt inneklima

Gulv Gulv i kjeller

🧱 Tre og sementgulv

Eksisterende gulv i kjeller med tre og sementgulv i grovkjeller

Gulv i kjelleretasjen, delvis rehabilitert

Trapper Innvendig trapp mellom kjellernivåer

Antall: 1

Eksisterende trapp mellom to kjellernivåer, ikke tidligere dokumentert i tegninger

Trapp som forbinder to nivåer i kjelleretasjen, nødvendig for bruksendring

Isolasjon Innvendig isolasjon av kjellermur

🧱 Rockwool 10 cm

Innvendig utforing med stålstendere og 10 cm Rockwool isolasjon, dobbel gipsplate

Isolasjon av kjellermur for bedre termisk komfort og energibruk

Dører Innvendige fyllingsdører med glass

🧱 Tre

Eksisterende solide fyllingsdører, noen med glass, mellom rom i kjeller

Dører mellom rom i kjelleretasjen

VVS Varmefordeling

Elektriske varmekabler og elektriske panelovner

Oppvarming av kjelleretasjen med elektriske varmekabler i gulv og panelovner

Elektro Elektrisk anlegg oppgradert

Oppgradert elektrisk anlegg i kjeller i forbindelse med rehabilitering

Elektrisk anlegg for belysning og strøm i kjeller

Tømrer Innvendige rehabiliteringsarbeider

Rehabilitering av kjellerrom, inkludert veggkledning, tak og gulv

Innvendige bygningsarbeider for å tilpasse kjeller til beboelsesformål

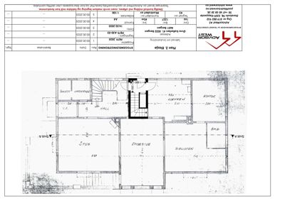
Plantegning

Enebolig 106.5 m²

Etasje 0 0.0 m²

Rom Areal Vinduer Dører
Vaskerom 001 0.0 m² 0 1
Gang 002 0.0 m² 0 0
Arbeidsrom 003 0.0 m² 0 0
Bod 004 0.0 m² 0 0
Bod 005 0.0 m² 0 0
Bod 006 0.0 m² 0 0
Pikefjerlse 007 0.0 m² 0 0

Etasje 2 106.5 m²

Rom Areal Vinduer Dører
Stue 201 35.2 m² 2 1
Spisestue 202 28.5 m² 1 1
Bibliotek 203 22.1 m² 1 1
Kjøkken 204 18.4 m² 1 1
Kontor 205 15.3 m² 1 1
Bad 206 6.0 m² 0 1
Toalett 207 2.5 m² 0 1
Garderobe 208 1.8 m² 0 1
Hall 209 6.7 m² 0 2

Etasje 1 0.0 m²

Rom Areal Vinduer Dører
Dagligstue 101 0.0 m² 0 0
Spisestue 102 0.0 m² 0 0
Sovev. (nederst) 103 0.0 m² 0 0
Gang 104 0.0 m² 0 0
Sovev. (øverst) 105 0.0 m² 0 0
Bod 106 0.0 m² 0 0
Kjøkken 107 0.0 m² 0 0
Hall 108 0.0 m² 0 0
Vindfang 109 0.0 m² 0 0
Toilet 110 0.0 m² 0 0
Bislag 111 0.0 m² 0 0

Fasader

Villa

Nordøst
Materiale
Tre
Taktype
Saltak
Høyde
6.6 m
Vinduer
9
Dører
1
Synlige etasjer
2

Villa Paal Kahrs

Sørøst
Materiale
Tre
Taktype
Saltak
Vinduer
6
Dører
0
Balkonger
2
Synlige etasjer
2
Nordvest
Materiale
Tre
Taktype
Saltak
Vinduer
5
Dører
1
Balkonger
2
Synlige etasjer
2
Sørvest
Materiale
Tre
Taktype
Saltak
Høyde
6.5 m
Mønehøyde
8.2 m
Vinduer
10
Dører
3
Balkonger
2
Synlige etasjer
2

Hendelser

01.10.2025 Fakturagrunnlag
01.10.2025 ubw ordre 20677851
29.09.2025 Ferdigattest. 166/1227. Øvre Kalfarlien 41.
29.09.2025 Øvre Kalfarlien 41 Søknad om ferdigattest 166/1227
19.09.2025 Tillatelse til tiltak med ansvarsrett. 166/1227. Øvre Kalfarlien 41.
04.09.2025 Byantikvarens tilbakemelding i sak BYGG-2025/14420, Øvre Kalfarlien 41, 166/1227, bruksendring
06.08.2025 Intern høring, Øvre Kalfarlien 41, 166/1227. 2025/14420.
05.08.2025 Øvre Kalfarlien 41 Supplering av søknad 166/1227
17.07.2025 Øvre Kalfarlien 41, foreløpig tilbakemelding på søknad om bruksendring fra tilleggsdel til hoveddel
07.07.2025 Bekreftelse på mottatt søknad
04.07.2025 Øvre Kalfarlien 41 Søknad om tillatelse i ett trinn 166/1227