ChangeOfUse Soeknad Enebolig

Bruksendring og fasadeendring på enebolig i Rønvikveien 61, Bodø

📍 Rønvikveien 61 , 8009 BODØ

Nøkkelinfo

Sakstype
Bruksendring
Bygningstype
Enebolig
Bruksareal
233 m²
Boenheter
2
Kommune
Bodø
Fylke
Nordland - Nordlánnda
Gnr / Bnr
31 / 523
Saksnummer
2026/15823
Fase
Søknad

Om byggesaken

Prosjektet omfatter bruksendring fra tilleggsdel til hoveddel i sokkeletasje av en enebolig fra 1953, med ombygging av rom som matbod til soverom og vaskerom til bad. Det etableres en hybelleilighet med egen inngang i sokkeletasje, inkludert ny inngangsportal med takoverbygg på fasade nord-vest. Fasadene får nye vinduer i flere størrelser, og noen eksisterende vinduer fjernes eller tettes igjen. Det utføres også endringer i bærekonstruksjoner og et mindre påbygg i form av takoverbygg. Bygningen har saltak og trekledning, og det er planlagt nye vinduer i tre og dører i tilknytning til hybelleiligheten. Arealet er ca. 108,5 m² i sokkeletasje, med totalt bygningsareal på ca. 233 m². Prosjektet inkluderer også dispensasjonssøknad for avvik fra tekniske krav og arealutnyttelse.

Produkter og materialer

VVS Bad og kjøkkeninstallasjoner

Nye bad og kjøkkenkrok i hybelleilighet og ombygde rom

VVS-installasjoner for bad og kjøkken i ombygde rom og hybelleilighet

Vinduer Fasadevindu

🧱 tre

Antall: 15

Nye vinduer i fasader, størrelser bl.a. 6x6M, 10x6M, 10x12M, 9x8M, 9x5M, 5x5M

Nye vinduer i flere fasader for å oppfylle krav til lys og rømningsvei, samt erstatte fjernede vinduer

Tak Takoverbygg

🧱 ukjent

Antall: 2

Nytt takoverbygg over inngangsparti på fasade nord-vest og vest, under 1 meter fra vegg

Takoverbygg for beskyttelse av inngangsdør til hybelleilighet

Fasade Trekledning

🧱 tre

Eksisterende trekledning på fasader opprettholdes med nødvendige tilpasninger ved vindus- og døråpninger

Fasadeendringer med nye vinduer og dører, samt påbygg av takoverbygg

Dører Ytterdør til hybelleilighet

🧱 ukjent

Antall: 2

Ny inngangsportal med dør til hybelleilighet i sokkeletasje, inkludert takoverbygg

Etablering av egen inngang til hybelleilighet med ny dør og takoverbygg

Elektro Elektriske installasjoner

Elektriske installasjoner tilpasset ny bruk og hybelleilighet

Oppgradering og tilpasning av elektrisk anlegg i forbindelse med ombygging

Isolasjon Isolasjon på innsiden av vegger

🧱 isolasjon

Isolasjon på innsiden av vegger, men ikke oppgradert til dagens krav pga dispensasjon

Isolasjon for å opprettholde bygningsfysikk, men ikke full TEK17-oppgradering

Trapper Fastmontert trappetrinn

Antall: 2

Fastmontert trappetrinn for rømningsvei i sokkeletasje

Trappetrinn for å sikre rømningsvei i ombygde rom

Bærekonstruksjoner Endring av bærekonstruksjoner

🧱 tre/stål/betong (ukjent)

Endringer i bærekonstruksjoner i forbindelse med ombygging og påbygg

Tilpasning av bærekonstruksjoner for bruksendring og påbygg

Grunnarbeid Ingen nye grunnarbeider

Ingen endringer i grunnarbeid eller fundamentering er nevnt

Ingen nye grunnarbeider planlagt

Innvendig Romombygging

Ombygging av matbod til soverom, vaskerom til bad, disp. rom til soverom, etablering av hybel med kjøkkenkrok og bad

Innvendige ombygginger for å tilpasse rom til ny bruk og hybelleilighet

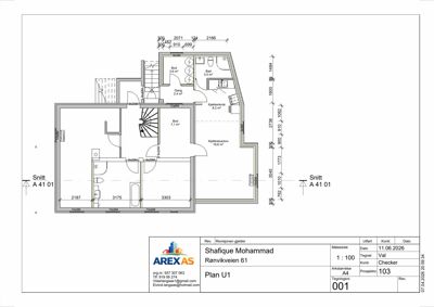
Plantegning

Enebolig 108.5 m²

Etasje 0 108.5 m²

Rom Areal Vinduer Dører
Matbod 001 18.5 m² 1 1
Matbod 002 18.5 m² 1 1
Vaskerom 003 12.5 m² 1 1
Badstu 004 8.5 m² 0 1
Brenselcel 005 15.5 m² 1 1
Disp. 006 25.0 m² 1 1
Bykl. 007 10.0 m² 0 1
Kjellerstue/sov U01 19.6 m² 0 1
Bod U02 7.1 m² 0 1
Gang U03 2.4 m² 0 2
Bod U04 3.9 m² 0 1
Bad U05 3.5 m² 0 1
Kjøkkenkrok U06 8.2 m² 0 0
Hobby/Kjellerstue KJELLERSTUE 98.0 m² 0 1
Bod BOD 27.4 m² 0 1
Gang U07 2.4 m² 0 0
Bod U08 3.9 m² 0 0
Bad U09 3.5 m² 0 0
Kjøkkenkrok U10 8.2 m² 0 0

Fasader

Enebolig

Øst
Materiale
Tre
Taktype
Saltak
Vinduer
1
Dører
2
Synlige etasjer
2
Vest
Materiale
Tre
Taktype
Saltak
Vinduer
5
Dører
2
Balkonger
2
Synlige etasjer
2
Nord
Materiale
Tre
Taktype
Saltak
Vinduer
6
Dører
1
Balkonger
2
Synlige etasjer
2
Sør
Materiale
Tre
Taktype
Saltak
Vinduer
6
Dører
1
Balkonger
2
Synlige etasjer
2

Hendelser

14.04.2026 Supplering av søknad - Rønvikveien 61
08.04.2026 Ett-trinns søknad - Rønvikveien 61, Rønvikveien 61
08.04.2026 Bekreftelse på mottatt søknad - Rønvikveien 61