ChangeOfUse UnderBehandling Enebolig

Bruksendring og fasadeendring i enebolig på Sandslimarka 46, Bergen

📍 Sandslimarka 46 , 5254 SANDSLI

Nøkkelinfo

Sakstype
Bruksendring
Bygningstype
Enebolig
Bruksareal
246 m²
Boenheter
1
Kommune
Bergen
Fylke
Vestland
Gnr / Bnr
126 / 116
Saksnummer
BYGG-2026/12369
Fase
Under behandling

Om byggesaken

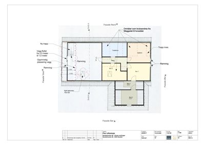
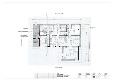
Enebolig på 246 m² med to etasjer og kjeller gjennomgår bruksendring fra tilleggsdel til hoveddel i flere rom, inkludert omgjøring av bod til gang, baderom, kjøkken og soverom. Det er etablert ny trapp mellom 1. etasje og loftsetasje, og en eksisterende trapp er revet og lukket igjen. Fasadeendringer inkluderer flytting av yttervegg i loftsetasje og etablering av nytt takvindu på 70x130 cm. Balkongens yttervegg er flyttet ut fra 2,5 meter til 1,0 meter bredde. Bygget har trekledning, saltak og flatt tak, med flere vinduer og dører fordelt på fasadene. Rømningsveier er ivaretatt med fire utganger fra loftsetasje. Endringene forbedrer boligens funksjonalitet og utnyttelse av areal.

Produkter og materialer

Grunnarbeid Ingen spesifikke grunnarbeider

Ingen nye grunnarbeider oppgitt, eksisterende bygg benyttes

Tømrer Vegger og trapp

🧱 Tre

Flytting av vegg, lukking av åpning etter riving av trapp, flytting av trapp

Tømrerarbeider knyttet til innvendige endringer og fasadeendringer

Dører Innvendig dør

Flytting av dør fra bod til soverom, ny dør fra soverom til utleiedel

Flytting og etablering av innvendige dører for bedre romdisponering

Trapper Innvendig trapp

Antall: 1

Ny trapp etablert mellom 1. etasje og loftsetasje, eksisterende trapp revet og åpning lukket

Ny trapp for bedre adkomst mellom etasjer

Fasade Yttervegg

🧱 Tre

Flytting av yttervegg i loftsetasje fra 2,5 meter til 1,0 meter bredde, innglasset balkong

Endring av yttervegg for økt arealutnyttelse og fasadeendring

Kjøkken Kjøkkeninnredning

Ombygging av bod til kjøkken i loftsetasje

Etablering av nytt kjøkkenareal i loftsetasje

Vinduer Takvindu

Antall: 1

Nytt takvindu 70x130 cm

Etablering av nytt takvindu i taket for økt lysinnslipp

Bad Baderomsinnredning og våtromsarbeid

Ombygging av bod til baderom, utvidelse av eksisterende bad

Oppgradering og ombygging av baderomsareal

Isolasjon Isolasjon i vegger og tak

Rom isolert etter gjeldende regelverk på oppføringstidspunktet

Isolasjon i vegger og tak i forbindelse med bruksendring og fasadeendring

Plantegning

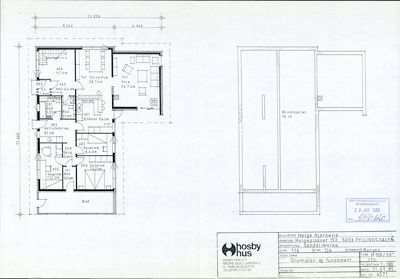
Enebolig 246.0 m²

Etasje 1 176.0 m²

Rom Areal Vinduer Dører
Stue 701 26.7 m² 1 1
Spisestue 742 23.7 m² 1 1
Hall 502 4.4 m² 0 2
V.f. 604 11.7 m² 1 1
Aktivitetsrom 302 9.1 m² 1 1
Bad 201 5.3 m² 0 1
Bad 241 3.1 m² 0 1
Kjøkken 401 9.4 m² 1 1
Soverom 607 8.6 m² 1 1
Gang 528 3.4 m² 0 2
Soverom 605 11.2 m² 1 1
Bod 101 3.3 m² 0 1
Soverom 606 13.2 m² 1 1
Hall 542 4.4 m² 0 2
Bod Bod 0.0 m² 0 0

Etasje 0 70.0 m²

Rom Areal Vinduer Dører
Blind kjeller Blind kjeller 70.0 m² 0 1

Etasje 2 0.0 m²

Rom Areal Vinduer Dører
Stue 201 0.0 m² 1 1
Gang 202 0.0 m² 0 2
Sov 1 203 0.0 m² 1 1
Sov 2 204 0.0 m² 1 1
Kjøkken 205 0.0 m² 1 1
Toalettrom 206 0.0 m² 0 1
Kott Kott 0.0 m² 0 0
Soverom Soverom 0.0 m² 0 0
Bod Bod 0.0 m² 0 0
Bad Bad 0.0 m² 0 0
Stue Stue 0.0 m² 0 0
Balkong Balkong 0.0 m² 0 0

Fasader

Enebolig

Nord
Materiale
Tre
Taktype
Flatt tak
Vinduer
6
Dører
2
Synlige etasjer
1
Vest
Materiale
Tre
Taktype
Saltak
Vinduer
4
Dører
1
Balkonger
1
Synlige etasjer
2
Sør
Materiale
Tre
Taktype
Flatt tak
Vinduer
5
Dører
1
Synlige etasjer
1
Øst
Materiale
Tre
Taktype
Saltak
Vinduer
3
Dører
1
Synlige etasjer
2

Hendelser

14.04.2026 Ettersendelse av tilleggsopplysninger.
13.04.2026 Sandslimarka 46, foreløpig tilbakemelding på søknad om bruksendring fra tilleggsdel til hoveddel
08.04.2026 Sandslimarka 46 Søknad om tillatelse i ett trinn 116/126