ChangeOfUse UnderBehandling Enebolig

Bruksendring og ombygging til enebolig i Sjøgata 37, Melbu

📍 Sjøgata 37 , 8445 MELBU

Nøkkelinfo

Sakstype
Bruksendring
Bygningstype
Enebolig
Bruksareal
97 m²
Boenheter
1
Kommune
Hadsel
Fylke
Nordland - Nordlánnda
Gnr / Bnr
52 / 505
Saksnummer
24/03046
Fase
Under behandling

Om byggesaken

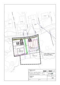
Tidligere båtbyggeri på eiendommen Sjøgata 37, Melbu, er ombygget og bruksendret til en enebolig med et bruksareal på 97,2 m². Boligen inneholder to kjøkken med kombinert stue, to soverom, bad, to WC, garderobe, gang og bod/teknisk rom. Bygget har en mønehøyde på 5,8 meter og innvendig takhøyde på 2,75 meter. Bygget er isolert med 20 cm isolasjon og har moderne tekniske installasjoner som varmepumpe, mekanisk ventilasjon og elektrisk anlegg i henhold til TEK17. Det er etablert flomvern i henhold til reguleringsplanens krav, og boligen er dimensjonert for å tåle oversvømmelse. Eiendommen er regulert til boligformål i detaljreguleringsplan MB62, som også sikrer allmennhetens tilgang til strandsonen via sti. Det er gjennomført uavhengig kontroll av våtrom, lufttetthet og geoteknikk. Søknad om ferdigattest er under behandling med krav om dokumentasjon på oppfyllelse av vilkår.

Produkter og materialer

Mur Steinmur flomvern

🧱 Naturstein med trykkimpregnert tredekke festet med stolpesko og dragere

Antall: 1

2 meter bred mur med 1,8 meter bredt tredekke på toppen, forsterket med dragere.

Flomvern mot havet for å beskytte bolig og eiendom.

Dører Ytterdører og innvendige dører

🧱 tre

Antall: 10

Ytterdører 100x210 cm, innvendige dører 90x200 cm, skyvedører i stue.

Dører til bolig for adkomst og rominndeling.

Grunnarbeid Geoteknisk kontroll og flomvern

🧱 Steinmur flomvern med trykkimpregnert tredekke

Antall: 1

Flomvern i henhold til reguleringsplan MB62, uavhengig geoteknisk kontroll utført.

Sikring av bygget mot stormflo og oversvømmelse.

Fasade Stående bordkledning

🧱 tre, malt

Antall: 1

20 cm isolasjon bak kledning, vind- og fuktsperre, klem- og krysslekter.

Fasade med isolert og malt trepanel i henhold til godkjente tegninger.

Maling Innvendig og utvendig maling

Maling av trepanel utvendig og innvendig vegger og tak.

Overflatebehandling for beskyttelse og estetikk.

Elektro Elektrisk anlegg og belysning

Nytt elektrisk anlegg, spotter med dimming i tak.

Elektrisk installasjon i bolig i henhold til TEK17.

Tak Saltak med asfaltplater

🧱 asfaltplater, isolasjon 30 cm

Antall: 1

Saltak med mønehøyde 5,8 m, isolasjon og takplater i henhold til TEK17.

Tak for bolig med isolasjon og værbestandig taktekking.

Isolasjon Vegger, tak og gulv

🧱 Glava isolasjon, asfaltplater, vind- og fuktsperre

20 cm isolasjon i yttervegger, 30 cm i tak, 20 cm i gulv.

Isolasjon for energieffektiv bolig i henhold til TEK17.

Tømrer Innvendige lettvegger og innredning

🧱 Fiboveggplater og treverk

Innvendige vegger i bolig, lettvegger for rominndeling.

Innvendig konstruksjon og innredning i bolig.

Ventilasjon Mekanisk ventilasjon med varmegjenvinning

🧱 Flexit Roomie Dual og Flexit Eq2 ventilatorer

Ventilasjon i stue, kjøkken og soverom med varmegjenvinning.

Ventilasjonssystem for bolig med god luftkvalitet og energibesparelse.

Bad Våtrom med uavhengig kontroll

Antall: 1

Bad og WC med våtromsplater, elektrisk gulvvarme, uavhengig kontroll utført.

Bad og sanitærrom i bolig med dokumentert kvalitet.

Gulv Vannfast gulvspon med laminat

🧱 22 mm vannfast spon, 3 mm Pergo underlag, 8 mm Pergo laminat

Antall: 1

Isolasjon 20 cm under gulv, elektrisk gulvvarme på bad, varmefolie i stue og gang.

Isolert og oppvarmet gulv i bolig.

Vinduer Åpningsvinduer og faste vinduer

🧱 tre med 3-lags energiglass

Antall: 12

Åpningsvinduer på soverom, bad og WC, øvrige vinduer faste. Dimensjoner i plantegning.

Vinduer til bolig med krav til lys og rømningsvei i henhold til TEK17.

VVS Sanitærinstallasjoner og varmepumpe

Rør-i-rør installasjon, Bosch varmepumpe, elektrisk gulvvarme på bad.

VVS-installasjoner for bolig med moderne standard.

Fasader

Enebolig

Nord
Vinduer
2
Dører
1
Synlige etasjer
1
Sør
Vinduer
4
Dører
1
Synlige etasjer
1
Vest
Vinduer
3
Dører
0
Synlige etasjer
1
Øst
Vinduer
2
Dører
0
Synlige etasjer
1

Hendelser

15.04.2026 24/03046-47 Innkommende og svar ut: Vedrørende flomvernet i Sjøgata 37
16.02.2026 24/03046-44 Samsvarserklæring våtromskontroll
27.11.2025 24/03046-43 Svar på henvendelse - tilleggsinformasjon til søknad om oppføring av steinmur
03.10.2025 24/03046-41 SAK 24/03046-12 - Oversendelse av klage for ny prøving i saken
03.10.2025 24/03046-40 GBnr 52/505 Vedtak bruksendring - Sjøgata 37
25.08.2025 24/03046-39 GBnr 52/505 Klage og søknad om unntak - John Andreas Ness - saken ønskes trukket fra dagens møte i Teknisk hovedutvalg
11.07.2025 24/03046-38 Mottatt søknad om ferdigattest
09.07.2025 24/03046-37 Epostkorrespondanse mellom tiltakshaver og kommunen
01.07.2025 24/03046-36 GBnr 52/505 Vedrørende søknad om ferdigattest - John Andreas Ness
27.06.2025 24/03046-35 SV: Rapport lufttetthetstest i Sjøgata 37