ChangeOfUse UnderBehandling Enebolig

Bruksendring fra fritidsbolig til enebolig på Niemi 25, Vadsø

📍 Skallelv, Niemi 25 , 9804 VADSØ

Nøkkelinfo

Sakstype
Bruksendring
Bygningstype
Enebolig
Bruksareal
218 m²
Boenheter
1
Kommune
Vadsø
Fylke
Finnmark - Finnmárku - Finmarkku
Gnr / Bnr
16 / 62
Saksnummer
2026/1209
Fase
Under behandling

Om byggesaken

Eksisterende fritidsbolig oppført i 1947 på 217,5 m² fordelt på kjeller, 1. og 2. etasje endres til enebolig uten bygningsmessige endringer utvendig. Bygget har tradisjonell Varanger-hus stil med saltak og trekledning, og inneholder blant annet stue, kjøkken, bad, badstue, flere boder og lagerrom. Det er en trapp i bygget som ikke oppfyller dagens krav til fri høyde, og det er avvik fra dagens tekniske forskrifter (TEK17) på flere områder som ventilasjon, isolasjon og universell utforming, men disse avvikene vurderes som akseptable på grunn av byggets alder. Eiendommen på 637 m² har tilstrekkelig uteoppholdsareal og parkering. Bruksendringen krever dispensasjon fra LNFR-arealformål i kommuneplanen, og tiltaket vurderes som forsvarlig uten vesentlige inngrep i bygningsmassen eller naturen.

Produkter og materialer

Fasade trekledning med saltak

🧱 tre

Bygget har trekledning og saltak, tradisjonell Varanger-hus stil, ingen fasadeendringer planlagt

Eksisterende fasade og tak beholdes uendret

Dører ytterdører og innerdører

🧱 tre

Antall: 15

Dører fordelt på fasader og innvendig, inkludert 1 ytterdør per fasade og flere innerdører i etasjene

Eksisterende dører beholdes, ingen bygningsmessige endringer planlagt

Brannvern brannteknisk vurdering

Brannteknisk notat og vurdering fra Madsens byggerådgivning er vedlagt

Brannsikkerhet vurderes og følges opp i henhold til anbefalinger

Isolasjon etterisolering og tetting

Bygget tilfredsstiller ikke dagens krav til isolasjon og tetthet, men oppgradering anses ikke forholdsmessig nå

Eventuelle oppgraderinger av isolasjon utføres ved fremtidig rehabilitering

Grunnarbeid tomt og uteareal

Tomt på 637 m² med tilstrekkelig uteoppholdsareal og parkering på egen tomt

Ingen nye grunnarbeider planlagt, eksisterende uteareal benyttes

Ventilasjon avtrekksventilasjon på bad og kjøkken

Ventilasjon med avtrekk på bad og kjøkken, eventuelt også i pipe, med tilluft via ventiler i vegg

Oppgradering av ventilasjonsforhold etter anbefaling fra takstingeniør og brannrådgiver

Bad våtrom med membran

Antall: 2

Bad og badstue kan avvike fra dagens krav til membran og utførelse

Eventuelle oppgraderinger av våtrom utføres ved fremtidig rehabilitering

Vinduer 3-lags energiglass vinduer

🧱 tre/aluminium

Antall: 19

De fleste vinduer er 3-lags vindu av nyere tid, fordelt på fasader nord (5), sør (4), vest (4), øst (4) og kjeller (2)

Eksisterende vinduer i bygget, ingen planlagt utskifting, men vinduene er viktige for dagslys og isolasjon

Trapper innvendig trapp i tre

🧱 tre

Antall: 1

Trappeløsning med fri høyde 1,9 m fra kjeller til 1. etasje og 2,0 m mellom 1. og 2. etasje, avvik fra dagens krav på 2,1 m

Eksisterende trapp oppgraderes på sikt for å tilfredsstille krav til fri høyde

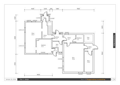
Plantegning

Enebolig 217.5 m²

Etasje 0 54.0 m²

Rom Areal Vinduer Dører
Gang 101 5.8 m² 0 2
Bod 102 14.2 m² 2 1
Bod 103 4.9 m² 0 1
Bod 104 5.6 m² 0 1
Bod 105 7.3 m² 1 1

Etasje 1 163.5 m²

Rom Areal Vinduer Dører
Stue 101 25.3 m² 2 1
Kjøkken 102 13.1 m² 0 1
Gang 103 6.3 m² 0 2
Gang 104 4.2 m² 0 2
Gang 105 5.9 m² 0 2
Bad 106 6.3 m² 0 1
Badstue 107 3.3 m² 0 1
Silo 108 4.8 m² 0 1
Gang 109 3.8 m² 0 1
Bod 110 35.0 m² 2 1
Bod 111 10.6 m² 1 1

Fasader

Enebolig

Nord
Materiale
Tre
Taktype
Saltak
Vinduer
5
Dører
1
Synlige etasjer
2
Sør
Materiale
Tre
Taktype
Saltak
Vinduer
4
Dører
1
Synlige etasjer
2
Vest
Materiale
Tre
Taktype
Saltak
Vinduer
4
Dører
1
Synlige etasjer
2
Øst
Materiale
Tre
Taktype
Saltak
Vinduer
4
Dører
1
Synlige etasjer
2

Hovedbygg

Øst
Materiale
Tre
Taktype
Flatt tak
Vinduer
2
Dører
1
Synlige etasjer
1

Hendelser

17.04.2026 Supplering av søknad - GBNR 16/62 - Niemi 25
08.04.2026 Svar - GBNR 16/62 - Bruksendring - Niemi 25
07.04.2026 Mangelbrev GBNR 16/62
31.03.2026 Tilbakemelding om mangler - GBNR 16/62 - Bruksendring - Niemi 25
18.03.2026 Ber om uttalelse - GBNR 16/62 - Bruksendring - Niemi 25
17.03.2026 Søknad om tillatelse i ett trinn - GBNR 16/62 - Niemi 25