ChangeOfUse Soeknad Enebolig

Bruksendring i sokkeletasje på enebolig, Skiviklia 7, Bodø

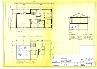
📍 Skiviklia 7 , 8014 BODØ

Nøkkelinfo

Sakstype
Bruksendring
Bygningstype
Enebolig
Bruksareal
174 m²
Boenheter
1
Kommune
Bodø
Fylke
Nordland - Nordlánnda
Gnr / Bnr
32 / 638
Saksnummer
2026/16235
Fase
Søknad

Om byggesaken

Bruksendring i sokkeletasjen av en eksisterende enebolig på Skiviklia 7 i Bodø. Den delen av underetasjen som tidligere var boder, omdisponeres til soverom, bod og gang. Bygget er en to-etasjes trehus med saltak tekket med teglstein. Det er ingen endringer på fasader eller bygningsvolum. Sokkeletasjen har et areal på ca. 70 m² og inneholder blant annet to soverom, gang, bod, vaskerom, WC og garasje. Endringen innebærer tilpasning av innvendige rom til ny bruk, uten ytre bygningsmessige endringer.

Produkter og materialer

VVS Sanitærinstallasjoner

Ingen endring i våtrom, men mulig tilpasning i forbindelse med bruksendring

VVS-tilpasninger i sokkeletasje ved bruksendring, spesielt i gang og bodområder

Fasade Trepanel

🧱 Tre

Trepanel på fasader, ingen endring i prosjektet

Eksisterende trepanel på fasader, ikke berørt av bruksendringen

Elektro Elektrisk installasjon

Mulig tilpasning av elektriske installasjoner i sokkeletasje ved bruksendring

Oppdatering eller tilpasning av elektrisk anlegg i forbindelse med romendring

Tømrer Innvendige vegger og rominndeling

Tilpasning av eksisterende boder til soverom, bod og gang i sokkeletasje

Utførelse av tømrerarbeid for bruksendring i sokkeletasje, inkludert veggoppbygging og rominndeling

Grunnarbeid Ingen nye grunnarbeider

Ingen nye grunnarbeider da det ikke er bygningsmessige endringer utvendig

Ingen grunnarbeider nødvendig for bruksendringen

Vinduer Fasadevindu i tre

🧱 Tre

Antall: 19

Vinduer i fasader av tre, totalt 19 stk fordelt på to etasjer

Eksisterende vinduer i eneboligen, ingen endring i prosjektet

Tak Saltak med teglstein

🧱 Teglstein

Saltak tekket med teglstein, ingen endring i prosjektet

Eksisterende saltak med teglstein, ikke berørt av bruksendringen

Gulv Innvendige gulvflater

Eksisterende gulvflater i sokkeletasje, mulig behov for tilpasning eller oppgradering

Gulvbehandling og eventuelle oppgraderinger i rom som endres til soverom og gang

Dører Innvendige dører

Antall: 12

Innvendige dører i sokkeletasje og øvrige etasjer iht. plantegninger

Innvendige dører til soverom, bod, gang, vaskerom, WC og garasje

Fasader

Enebolig

Nord-Øst
Materiale
Tre
Taktype
Saltak
Takmat.
Tegl
Vinduer
10
Dører
1
Synlige etasjer
2
Sør-Øst
Materiale
Tre
Taktype
Saltak
Takmat.
Tegl
Vinduer
2
Dører
0
Synlige etasjer
1
Sør-Vest
Materiale
Tre
Taktype
Saltak
Takmat.
Tegl
Vinduer
3
Dører
1
Synlige etasjer
1
Nord-Vest
Materiale
Tre
Taktype
Saltak
Takmat.
Tegl
Vinduer
2
Dører
0
Synlige etasjer
1

Hendelser

14.04.2026 Ett-trinns søknad - Skiviklia 7
14.04.2026 Bekreftelse på mottatt søknad - Skiviklia 7