ChangeOfUse UnderBehandling Enebolig

Bruksendring og fasadeendring på enebolig i Sogstieika 27

📍 Sogstieika 27 , 1446 DRØBAK

Nøkkelinfo

Sakstype
Bruksendring
Bygningstype
Enebolig
Bruksareal
240 m²
Boenheter
1
Kommune
Frogn
Fylke
Akershus
Gnr / Bnr
71 / 485
Saksnummer
26/10353
Fase
Under behandling

Om byggesaken

Bruksendring av eksisterende enebolig på 240 m² i Sogstieika 27, Drøbak, hvor bodareal i underetasje omgjøres til soverom med tilhørende fasadeendringer. Det etableres ny inngangsdør og nytt vindu i fasaden mot nord-øst, samt et nytt skjermtak i glass over inngangspartiet. Innvendig flyttes dusj med sluk, og det bygges nye lettvegger rundt bad for å gi adkomst til det nye soverommet. Etasjehøyder og dagslysforhold oppfyller kravene i TEK17. Bygget har saltak med trekledning og flere vinduer og dører fordelt på to etasjer.

Produkter og materialer

VVS Sanitærinstallasjoner

Flytting av dusj med sluk og ny vask på kjøkken

Endringer i sanitærinstallasjoner i forbindelse med bruksendring

Dører Ytterdør

🧱 tre/glass

Antall: 1

Ny inngangsdør i fasade nord-øst

Ny inngangsdør for inn-/utgang fra stue i underetasje

Tømrer Innvendige lettvegger

🧱 tre/stenderverk og gips

Nye lettvegger rundt bad for adkomst til nytt soverom

Oppføring av nye innvendige skillevegger

Tak Skjermtak i glass

🧱 glass

Antall: 1

Nytt skjermtak i glass over inngangsparti

Skjermtak i glass over ny inngangsdør

Fasade Kledning

🧱 tre

Tre kledning på fasade nord-øst

Fasadeendring med ny kledning tilpasset eksisterende bygg

Maling Utvendig maling

Maling av ny og eksisterende fasade etter endring

Grunnarbeid Fundamentering og drenering

Vanlig grunnarbeid for fasadeendring og ny inngangsdør

Elektro Elektriske installasjoner

Elektriske arbeider knyttet til ny inngangsdør, belysning og sanitærinstallasjoner

Vinduer Fasadevindu

🧱 tre

Antall: 1

Nytt/utvidet vindu i fasade nord-øst

Nytt vindu i fasaden for å oppfylle dagslyskrav til nytt soverom

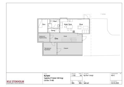
Plantegning

Enebolig 240.0 m²

Etasje 2 74.5 m²

Rom Areal Vinduer Dører
LOFTSTUE 201 18.8 m² 1 1
GANG 202 11.8 m² 2 2
SOV 203 11.3 m² 1 1
SOV 204 16.5 m² 1 1
BAD 205 8.0 m² 0 1
GJESTEROM 206 13.7 m² 1 1

Etasje 0 45.0 m²

Rom Areal Vinduer Dører
Bod 005 8.4 m² 0 1
Vask 006 5.9 m² 0 1
Tekn. 007 9.4 m² 0 1
Bad 004 7.3 m² 0 1
Gjesterom 003 9.5 m² 1 1
Hall 002 13.4 m² 1 1
Entré 001 16.8 m² 0 1

Etasje 1 120.5 m²

Rom Areal Vinduer Dører
Stue/Trapp 101 44.5 m² 2 1
Kjøkken 102 20.5 m² 1 1
WC 103 2.3 m² 0 1
TV-Stue 104 13.7 m² 1 1
Stue 105 0.0 m² 0 0
Vaskerom/ Oppbevaring 106 0.0 m² 0 1
Eks 107 0.0 m² 0 1
Tekniskrom/ Sportsbod 108 0.0 m² 0 1
Carport 109 0.0 m² 0 0

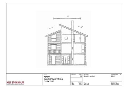
Fasader

Ny hybel

Nord-øst
Materiale
Tre
Taktype
Saltak
Takmat.
Tegl
Vinduer
8
Dører
1
Synlige etasjer
2

Enebolig

Syd-Øst
Materiale
Tre
Taktype
Saltak
Vinduer
5
Dører
1
Balkonger
1
Synlige etasjer
2
Syd-Vest
Materiale
Tre
Taktype
Saltak
Vinduer
4
Dører
1
Balkonger
1
Synlige etasjer
2
Nord-Øst
Materiale
Tre
Taktype
Saltak
Vinduer
6
Dører
1
Synlige etasjer
2
Nord-Vest
Materiale
Tre
Taktype
Saltak
Vinduer
3
Dører
1
Synlige etasjer
2

Hendelser

20.04.2026 26/10353-4 Supplering av søknad - 71/485/0/0 - Sogstieika 27 - Bruksendring fra hoveddel til tilleggsdel - Endring - Fasade
17.04.2026 26/10353-3 Mangelbrev - 71/485/0/0 - Sogstieika 27 - Bruksendring fra hoveddel til tilleggsdel - Endring - Fasade
24.03.2026 26/10353-1 Søknad om tillatelse i ett trinn med ansvar - 3 uker - 71/485/0/0 - Sogstieika 27 - Bruksendring fra hoveddel til tilleggsdel - Endring - Fasade