FloorPlan
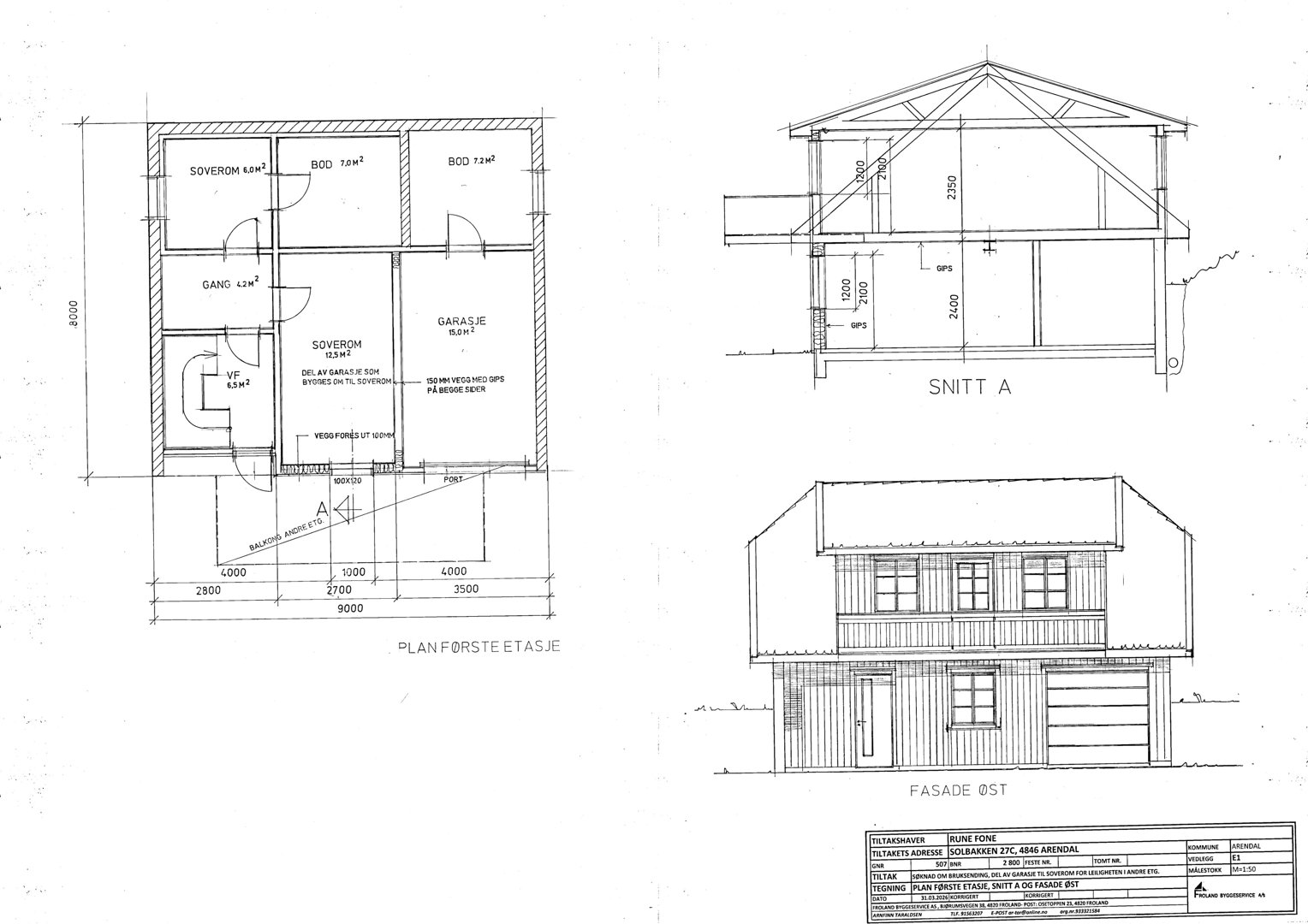
Bildet viser en tegning med etasjeplan for første etasje (PLAN FØRSTE ETASJE), et snitt (SNITT A) og en fasade (FASADE ØST).
1 / 3
ChangeOfUse
Soeknad
Enebolig
Innredning av garasje til soverom i Solbakken 27C, Arendal
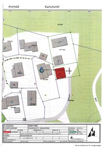
📍 Solbakken 27C , 4846 ARENDAL
Nøkkelinfo
- Sakstype
- Bruksendring
- Bygningstype
- Enebolig
- Bruksareal
- 15 m²
- Boenheter
- 1
- Kommune
- Arendal
- Fylke
- Agder
- Gnr / Bnr
- 507 / 2300
- Saksnummer
- 2026/12503
- Fase
- Søknad
Om byggesaken
Del av dobbel garasje på 15 m² i første etasje bygges om til et soverom for leiligheten i andre etasje. Ombyggingen inkluderer etablering av lyd- og brannvegg mellom garasje og nytt soverom, samt ferdig himling med gipsplater og isolasjon. Bygget er en enebolig over to plan med totalt 114,4 m², hvor første etasje inneholder garasje, soverom, bod og inngang, og andre etasje inneholder leilighet med flere rom. Garasjen som bygges om har en veggtykkelse på 150 mm med gips på begge sider.
Produkter og materialer
Tømrer
Innredning og ombygging
Tømrerarbeid for ombygging av garasje til soverom, inkludert vegger, himling og dørmontering
Gulv
Isolasjon og himling
🧱 Isolasjon, gipsplater
Himling isolert og kledd med gipsplater
Isolert og ferdig himling i det nye soverommet
Dører
Innvendig dør
Antall: 1
Dør til det nye soverommet fra gang/andre rom
Fasade
Lyd- og brannvegg
🧱 Gipsplater, isolasjon
150 mm vegg med gips på begge sider, lyd- og brannsikring mellom garasje og soverom
Oppføring av lyd- og brannvegg mellom garasje og nytt soverom
Vinduer
Fasadevindu
Antall: 1
Ett vindu i garasjedelen som bygges om til soverom
Isolasjon
Vegger og himling
🧱 Mineralull eller tilsvarende
Isolasjon i vegger og himling for lyd- og brannkrav
Isolasjon for lyd- og brannsikring i ombygget garasje
Plantegning
Enebolig 114.4 m²
Etasje 1 51.4 m²
| Rom | Areal | Vinduer | Dører |
|---|---|---|---|
| Gang 101 | 4.2 m² | 0 | 2 |
| Soverom 102 | 6.0 m² | 0 | 1 |
| Bod 103 | 7.0 m² | 0 | 1 |
| Bod 104 | 7.2 m² | 0 | 1 |
| Soverom 105 | 12.5 m² | 0 | 1 |
| Garasje 106 | 15.0 m² | 0 | 1 |
| VF 107 | 6.5 m² | 0 | 1 |
Etasje 2 63.0 m²
| Rom | Areal | Vinduer | Dører |
|---|---|---|---|
| Sov 201 | 15.0 m² | 1 | 1 |
| Gang 202 | 10.0 m² | 0 | 1 |
| Bod 203 | 15.0 m² | 0 | 1 |
| Bod 204 | 15.0 m² | 0 | 1 |
| Garasje 205 | 8.0 m² | 1 | 1 |
Hendelser
21.04.2026
Solbakken 27C, melding om mottatt søknad
20.04.2026
Solbakken 27C Søknad om tillatelse i ett trinn 507/2300