ChangeOfUse UnderBehandling Enebolig

Bruksendring av loft til stue/soverom i Sørsundveien 26

📍 Sørsundveien 26 , 6507 KRISTIANSUND N

Nøkkelinfo

Sakstype
Bruksendring
Bygningstype
Enebolig
Bruksareal
52 m²
Boenheter
1
Kommune
Kristiansund
Fylke
Møre og Romsdal
Gnr / Bnr
2 / 287
Saksnummer
26/02132
Fase
Under behandling

Om byggesaken

Bruksendring av loft i en enebolig på Sørsundveien 26 til stue og/eller soverom. Loftet har fått satt inn to nye vinduer på kortveggene, samt to takvinduer som kan åpnes. Rommet har varierende takhøyde fra 110 cm til 245 cm og langvegger på 730 cm. Endringen innebærer tilpasning til tekniske krav for oppholdsrom, inkludert lysforhold og ventilasjon. Fasaden består av trekledning med saltak, og vindusinnsettingen kan medføre fasadeendring. Arealet på loftet er ikke eksplisitt oppgitt, men byggets totale areal er 52,29 m².

Produkter og materialer

Fasade Vindusinnsetting i eksisterende trekledning

🧱 tre

Antall: 2

Innsetting av vinduer i kortvegger kan medføre fasadeendring, trekledning med saltak

Fasadeendring ved innsetting av nye vinduer i loftets kortvegger

Vinduer Fastkarmsvindu og takvindu

🧱 tre/alu eller tilsvarende

Antall: 4

2 vinduer på kortveggene, høyde 175 cm (øverste del 106 cm høy, bredde 88 cm, åpnefelt), 2 takvinduer med lysåpning 125 x 60 cm, begge åpne

Nye vinduer i loft for lys og ventilasjon, inkludert to takvinduer og to vertikale vinduer på kortveggene

Gulv Loftsgulv

Tilpasning av gulv på loft for oppholdsrom

Tømrer Innvendige arbeider

Innvendige arbeider for tilpasning av loft til oppholdsrom, inkludert vegger og tak

Elektro Belysning og stikkontakter

Elektrisk installasjon tilpasset ny bruk av loft som stue/soverom

Isolasjon Loftisolasjon

Isolasjon for å oppfylle tekniske krav for oppholdsrom i loft

Ventilasjon Mekanisk eller naturlig ventilasjon

Ventilasjon tilpasset bruksendring til oppholdsrom

Plantegning

Enebolig 52.3 m²

Etasje 1 52.3 m²

Rom Areal Vinduer Dører
Stue 101 44.5 m² 2 1
1/2 Bad 102 7.8 m² 1 1

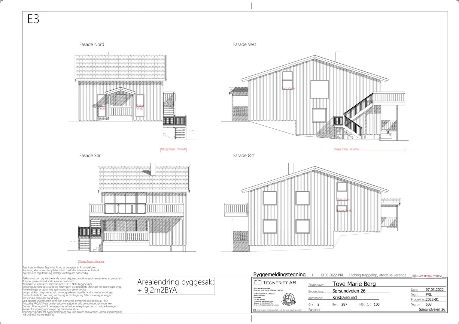
Fasader

Enebolig

Nord
Materiale
Tre
Taktype
Saltak
Vinduer
2
Dører
2
Balkonger
1
Synlige etasjer
2
Vest
Materiale
Tre
Taktype
Saltak
Vinduer
2
Dører
0
Balkonger
1
Synlige etasjer
2
Sør
Materiale
Tre
Taktype
Saltak
Vinduer
4
Dører
0
Balkonger
2
Synlige etasjer
2
Øst
Materiale
Tre
Taktype
Saltak
Vinduer
4
Dører
0
Balkonger
1
Synlige etasjer
2

Hovedbygg

Ukjent
Taktype
Saltak
Vinduer
3
Dører
0
Synlige etasjer
2

Hendelser

22.04.2026 26/02132-7 BYGG-26/00260 - Innsending av tegninger
17.04.2026 26/02132-6 Sørsundveien 26, foreløpig tilbakemelding på søknad om bruksendring
31.03.2026 26/02132-5 Sørsundveien 26 - tilleggsdokumentasjon
30.03.2026 26/02132-4 Sørsundveien 26, foreløpig tilbakemelding på søknad om søknad om bruksendring
25.03.2026 26/02132-3 Sørsundveien 26 - tegning av loft
25.03.2026 26/02132-2 Sørsundveien 26, foreløpig tilbakemelding på søknad om søknad om bruksendring
20.03.2026 26/02132-1 Sørsundveien 26 - Søknad om bruksendring fra loft til stue/soverom.