ChangeOfUse Soeknad Enebolig

Bruksendring til kjellerstue i enebolig, Stamerbakken 6, Bergen

📍 Stamerbakken 6 , 5230 PARADIS

Nøkkelinfo

Sakstype
Bruksendring
Bygningstype
Enebolig
Bruksareal
23 m²
Boenheter
1
Kommune
Bergen
Fylke
Vestland
Gnr / Bnr
13 / 834
Saksnummer
BYGG-2026/12421
Fase
Søknad

Om byggesaken

Bruksendring av eksisterende kjellerareal på 23,3 m² i enebolig til oppholdsrom (kjellerstue) med oppgradering til hoveddel. Rommet har tilfredsstillende takhøyde på 2,35 m, rømningsvei via dør og vindu, og intern trapp til hovedetasje. Eksisterende vindusåpninger beholdes, men vinduer skiftes ut med nye med bedre U-verdi for forbedret energiytelse og inneklima. Det gjøres ingen endringer i byggets ytre uttrykk, grunnflate eller høyde. Ventilasjon og radonforhold ivaretas i henhold til TEK17. Arealet økes med ca. 23 m² ved omdisponering, uten ny boenhet. Tiltaket er tilpasset eksisterende bebyggelse og reguleringsformål.

Produkter og materialer

Isolasjon Isolasjon for kjellerstue

Isolasjonstiltak for å oppfylle relevante energikrav i eksisterende bygg

Isolasjon for forbedret energiytelse i kjellerstue

Trapper Intern trapp til hovedetasje

Antall: 1

Eksisterende intern trapp som gir alternativ rømningsvei

Trapp mellom kjellerstue og hovedetasje

Ventilasjon Ventilasjonsløsning for kjellerstue

Etablering av ventilasjon som sikrer tilstrekkelig luftkvalitet og luftutskifting i oppholdsrom

Ventilasjonsanlegg for nytt oppholdsrom i kjeller

Grunnarbeid Radonforebyggende tiltak

Dokumentasjon og eventuelle tiltak for å sikre radonnivå innenfor tillatte grenseverdier

Radonsikring i kjellerstue

Tømrer Innredning av kjellerstue

Oppgradering av kjellerrom til oppholdsrom med tilpasning til TEK17, inkludert takhøyde, rømningsvei og ventilasjon

Tømrerarbeid for innredning og oppgradering av kjellerstue til hoveddel

Vinduer Energivennlige vinduer til kjellerstue

Antall: 1

Utskifting av eksisterende vinduer til nye med bedre U-verdi for forbedret energiytelse og inneklima

Nye vinduer med bedre isolasjon i kjellerstue for å oppfylle energikrav

Dører Rømningsdør i kjellerstue

Antall: 1

Eksisterende dør som tilfredsstiller krav til rømningsvei beholdes

Dør som rømningsvei i kjellerstue

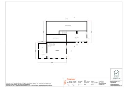
Plantegning

Enebolig 108.7 m²

Etasje 0 108.7 m²

Rom Areal Vinduer Dører
Kjellerstue 001 23.3 m² 1 1
Hagestue 002 30.2 m² 3 1
Kjøkken 003 12.5 m² 1 1
Bad 004 8.4 m² 0 1
IKKE UTGRAVD 005 44.3 m² 0 0
IKKE UTGRAVD 0 0.0 m² 0 0
IKKE UTGRAVD 2 0.0 m² 0 0
KJELLER KJELLER 0.0 m² 0 0
FYRROM FYRROM 0.0 m² 0 0

Etasje 1 0.0 m²

Rom Areal Vinduer Dører
Stue 101 0.0 m² 0 0
Kjøkken 102 0.0 m² 0 0
Entre 103 0.0 m² 0 0
Hall 104 0.0 m² 0 0
Soverom 105 0.0 m² 0 0
Arbeidsrom 106 0.0 m² 0 0
Bad 107 0.0 m² 0 0
Barnerom 108 0.0 m² 0 0
Barnerom 109 0.0 m² 0 0
Barnerom 110 0.0 m² 0 0
Barnerom 111 0.0 m² 0 0
Kontor 112 0.0 m² 0 0
Kott 113 0.0 m² 0 0
VF 114 0.0 m² 0 0
Kott KOTT 0.0 m² 0 0
Bod BOD 0.0 m² 0 0
Vindfang VINDF 0.0 m² 0 0
WC WC 0.0 m² 0 0
Kjøkken KJØKKEN 0.0 m² 0 0
Spiseplass SPISEPLASS 0.0 m² 0 0
Bad BAD 0.0 m² 0 0
Gang GANG 0.0 m² 0 0
Hall HALL 0.0 m² 0 0
Sov 2 SOV 2 0.0 m² 0 0
Sov 1 SOV 1 0.0 m² 0 0
Stue STUE 0.0 m² 0 0
Altan ALTAN 0.0 m² 0 0

Fasader

Enebolig

Vest
Materiale
Tre
Taktype
Flatt tak
Høyde
4.4 m
Mønehøyde
3.6 m
Vinduer
9
Dører
0
Synlige etasjer
1
Nord
Materiale
Tre
Taktype
Saltak
Vinduer
4
Dører
1
Synlige etasjer
1
Sør
Materiale
Tre
Taktype
Saltak
Vinduer
4
Dører
1
Balkonger
1
Synlige etasjer
2
Øst
Materiale
Tre
Taktype
Flatt tak
Vinduer
3
Dører
1
Synlige etasjer
1

Påbygg

Nord
Taktype
Saltak
Høyde
3.1 m
Vinduer
2
Dører
0
Synlige etasjer
2

Hovedbygg

Nord
Materiale
Tre
Taktype
Saltak
Vinduer
3
Dører
0
Synlige etasjer
1

Hendelser

10.04.2026 Stamerbakken 6 Søknad om tillatelse i ett trinn 13/834