ChangeOfUse Rammetillatelse Enebolig

Bruksendring og fasadeendring på Stensetgutua 9

📍 Stensetgutua 9 , 2032 MAURA

Nøkkelinfo

Sakstype
Bruksendring
Bygningstype
Enebolig
Bruksareal
21 m²
Boenheter
1
Kommune
Nannestad
Fylke
Akershus
Gnr / Bnr
130 / 53
Saksnummer
2026/1434
Fase
Rammetillatelse

Om byggesaken

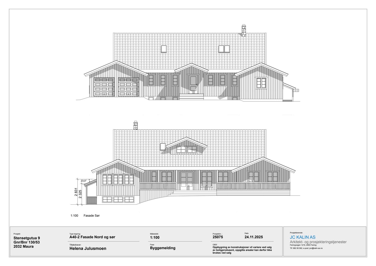
Bruksendring av kjellerareal på 21,3 m² fra tilleggsdel til hoveddel i en enebolig med to etasjer og saltak med teglstein. Det etableres en ny utvendig trapp ned til kjeller med bebygd areal på 4,2 m². Fasadeendringene omfatter endringer i forbindelse med kjellernedgangen på fasadene mot vest, nord og sør, som har trepanel og saltak. Bygget har flere vinduer og dører, pipe og garasjeport. Kjelleren inneholder rom som bad, vaskerom, gjesterom, kjellerstue og flere boder.

Produkter og materialer

Betong Trappetrinn og fundament

🧱 Betong

Betongarbeid for trappetrinn og fundament til utvendig trapp

Betongarbeid for ny kjellernedgangstrapp

Grunnarbeid Fundamentering for trapp

Antall: 1

Grunnarbeid for ny utvendig trapp til kjeller

Grunnarbeid og fundamentering for ny trapp

Fasade Utvendig trapp til kjeller

🧱 Tre eller betong (ikke spesifisert)

Antall: 1

Ny utvendig trapp ned til kjeller med bebygd areal 4,2 m²

Trapp for adkomst til kjeller i forbindelse med bruksendring

Dører Ytterdør

🧱 Tre eller glass (ikke spesifisert)

Antall: 3

Dører på fasadene nord, sør og vest

Ytterdører i fasadene, muligens berørt av fasadeendring

Tømrer Fasadeendring og trapp

🧱 Treverk

Arbeid med trepanel og konstruksjoner i fasadeendring og trapp

Tømrerarbeid knyttet til fasadeendring og ny trapp

Vinduer Fasadevindu

🧱 Tre med glass

Antall: 23

Totalt 23 vinduer på fasadene nord (5), sør (10) og vest (8)

Vinduer i eksisterende fasader, muligens berørt av fasadeendring

Fasade Fasadeendring ved kjellernedgang

🧱 Trepanel

Endringer på fasadene mot vest, nord og sør i tilknytning til kjellernedgang

Fasadeendringer i forbindelse med ny kjellernedgang

Fasader

Enebolig

Nord
Materiale
Tre
Taktype
Saltak
Takmat.
Tegl
Høyde
2.8 m
Vinduer
5
Dører
1
Synlige etasjer
2
Sør
Materiale
Tre
Taktype
Saltak
Takmat.
Tegl
Høyde
2.8 m
Vinduer
10
Dører
1
Balkonger
2
Synlige etasjer
2
Vest
Materiale
Tre
Taktype
Saltak
Vinduer
8
Dører
1
Synlige etasjer
2

Hendelser

17.04.2026 Tillatelse til tiltak - Gnr 130 bnr 53 - Stensetgutua 9 - Bruksendring og fasadeendring
13.03.2026 Gnr 130/53 - Søknad om tillatelse i ett trinn