ChangeOfUse Soeknad Enebolig

Bruksendring og fasadeendringer på enebolig i Strandlien 19, Bergen

📍 Strandlien 19 , 5057 BERGEN

Nøkkelinfo

Sakstype
Bruksendring
Bygningstype
Enebolig
Bruksareal
240 m²
Boenheter
1
Kommune
Bergen
Fylke
Vestland
Gnr / Bnr
158 / 745
Saksnummer
BYGG-2026/12628
Fase
Søknad

Om byggesaken

Bruksendring fra tilleggsdel til hoveddel i en eksisterende enebolig på 240,2 m² fordelt på fire etasjer (inkludert loft). Endringen omfatter ombygging i underetasje og loft, samt fasadeendringer med nye vinduer, takvinduer og ytterdør. Bygget har saltak, pipe og flere vinduer i ulike fasader. Tiltaket inkluderer også tekniske rom og bad, og er gjennomført med hensyn til gjeldende krav for dagslys og sikkerhet mot skred. Bygget har en trapp og ingen balkonger. Det søkes om godkjenning i ettertid for tiltaket som allerede er utført.

Produkter og materialer

Tak Saltak

Antall: 1

Eksisterende saltak med gesimshøyde 6,35 m og mønehøyde 8,6 m

Takstruktur beholdes, men det er montert nye takvinduer

Fasade Fasadeendringer

Endringer i fasade med nye vinduer, takvinduer og ytterdør uten endring i fotavtrykk

Fasadeendringer i forbindelse med bruksendring og oppgradering

Dører Ytterdør

Antall: 3

Nye ytterdører i fasadene øst, vest og nord

Utskifting eller ny montering av ytterdører i forbindelse med fasadeendringer

Grunnarbeid Ingen nye grunnarbeider

Tiltaket er bruksendring uten tilbygg eller påbygg, fotavtrykk uendret

Ingen nye grunnarbeider nødvendig

Vinduer Fasadevindu

Antall: 14

Vinduer i størrelser ca. 70x100 cm, inkludert nye takvinduer

Nye og utskiftede fasadevindu og takvinduer i eneboligen

Trapper Innvendig trapp

Antall: 1

Eksisterende innvendig trapp i eneboligen

Maling Fasademaling og innvendig maling

Oppgradering av fasade og innvendige overflater i forbindelse med bruksendring

VVS Teknisk rom og vaskerom

Antall: 1

Teknisk rom/vaskerom i underetasje som del av ombygging

Kjøkken Kjøkkeninnredning

Antall: 2

Kjøkken i underetasje og 2. etasje, del av ombygging

Bad Bad og våtrom

Antall: 2

Oppgradering og ombygging av bad i underetasje og 2. etasje

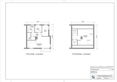
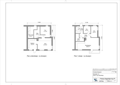
Plantegning

Enebolig 240.2 m²

Etasje 2 105.9 m²

Rom Areal Vinduer Dører
Gang 201 6.5 m² 0 2
Sov 202 6.2 m² 0 1
Sov 203 8.9 m² 0 1
Gang 204 5.4 m² 0 1
Bad 205 5.3 m² 0 1
Stue/kjøkken 206 28.8 m² 2 1
Stue 207 23.5 m² 2 1

Etasje 3 19.3 m²

Rom Areal Vinduer Dører
Loftsstue 301 19.3 m² 0 1

Etasje 0 59.2 m²

Rom Areal Vinduer Dører
Tekn./Vask 001 9.6 m² 0 1
Bad 002 7.0 m² 0 1
Sov 003 11.4 m² 1 1
Kjøkken 004 12.0 m² 1 1
Stue 005 21.0 m² 2 1

Etasje 1 55.8 m²

Rom Areal Vinduer Dører
Gang 101 6.5 m² 0 2
Sov 102 6.2 m² 1 1
Sov 103 8.9 m² 1 1
Gang 104 5.4 m² 0 2
Bad 105 5.3 m² 0 1
Stue/kjøkken 106 28.8 m² 2 1
Stue 107 23.5 m² 2 1

Fasader

Enebolig

Øst
Taktype
Saltak
Høyde
6.3 m
Mønehøyde
8.6 m
Vinduer
6
Dører
1
Balkonger
2
Synlige etasjer
3
Vest
Taktype
Saltak
Vinduer
5
Dører
1
Synlige etasjer
2
Nord
Taktype
Saltak
Vinduer
4
Dører
1
Balkonger
2
Synlige etasjer
2

Hendelser

17.04.2026 Strandlien 19 Søknad om tillatelse i ett trinn 158/745