ChangeOfUse Soeknad Enebolig

Bruksendring av loft til bolig i Strømgaten 18, Bergen

📍 Strømgaten 18 , 5008 BERGEN

Nøkkelinfo

Sakstype
Bruksendring
Bygningstype
Enebolig
Bruksareal
55 m²
Boenheter
1
Kommune
Bergen
Fylke
Vestland
Gnr / Bnr
164 / 1213
Saksnummer
BYGG-2026/12703
Fase
Søknad

Om byggesaken

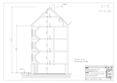
Bruksendring av loftet i en eksisterende enebolig i Strømgaten 18 til boligformål med to soverom og stue/kjøkken på totalt 55 m². Loftet får romhøyde på 2,25 m i hovedareal, med skråtak ned til 0,77 m i deler. Planløsningen inkluderer to soverom, stue/kjøkken, bad/dusj og flere boder. Fasaden beholdes uten endringer, men det installeres lydklassifiserte vinduer mot støyutsatte fasader og balansert mekanisk ventilasjon med varmegjenvinning for å sikre innendørs lyd- og luftkvalitet. Det gjennomføres også tiltak for å oppfylle brannkrav og rømningsveier. Uteoppholdsareal på egen tomt er utilstrekkelig, og det søkes dispensasjon med bruk av nærliggende kommunalt grøntområde.

Produkter og materialer

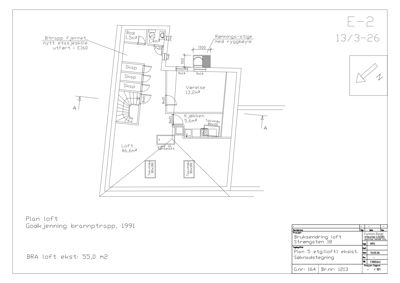
Brannvern Brannskille og rømningsvei

🧱 EI60 brannmotstand i nytt etasjeskille, godkjent rømningsstige/trapp

Antall: 1

Brannmotstand og rømningsvei i henhold til godkjente tiltak fra 1991

Sikring av brannsikkerhet og rømningsmuligheter i loftsetasje

Ventilasjon Helmekanisk balansert ventilasjon med varmegjenvinning

Antall: 1

Friskluftsinntak plassert på stille side, kanallydfeller ved gjennomføring i støyutsatte fasader

Ventilasjonssystem for å oppnå innendørs luftkvalitet og lydkrav uten naturlig ventilasjon mot støy

Dører Innvendige dører til rom i loftsetasje

Antall: 10

Dører til soverom, bod, dusj, WC og gang

Innvendige dører i loftsetasje

Fasade Forsterket fasadeisolasjon mot støyutsatte sider

🧱 Tung og tett kledning, vindsperrende underlag

Antall: 1

Isolasjon og konstruksjon for lydreduksjon iht. støyrapport

Fasadeisolasjon for å sikre tilfredsstillende innendørs lydnivå

Tak Asymmetrisk, frikoblet takkonstruksjon

🧱 Mineralull isolasjon, to lag gips på lydbøyler

Antall: 1

Lydreduksjonsindeks Rw + Ctr > 43 dB, tung og tett utvendig kledning med vindsperre

Takkonstruksjon med høy lydisolasjon mot støy fra trafikk

Maling Innvendig maling og overflatebehandling

Standard innvendige overflater i oppholdsrom

Innvendige overflater i loftet

Vinduer Takvinduer

Antall: 4

Størrelser 80x110 cm og 80x180 cm, gir lys og utsyn, ett takvindu mot stille side

Takvinduer i loftet for lys og utsyn

Grunnarbeid Ingen nye grunnarbeider

Eksisterende bygg og tomt benyttes, ingen nye fundamenter

Ingen grunnarbeider nødvendig ved bruksendring

Vinduer Lydklassifiserte vinduer mot støyutsatte fasader

🧱 Laminerte glass med PVB-folie, asymmetrisk tykkelse (f.eks. 8 mm / 16 mm Argon / 6 mm)

Antall: 4

Dokumentert lydreduksjon Rw + Ctr > 38 dB, korrekt mineralullsfugetetting med elastisk fugemasse

Vinduer med høy lydisolasjon for å oppfylle innendørs lydkrav mot trafikkstøy

Gulv Standard gulv i loftsetasje

Antall: 55

Romhøyde 2,25 m i hovedareal, volum over krav

Gulv i oppholdsrom og soverom i loftet

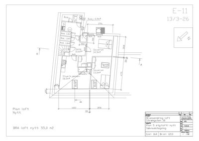
Plantegning

Enebolig 55.0 m²

Etasje 5 55.0 m²

Rom Areal Vinduer Dører
Stue/kjøkken 101 18.5 m² 2 1
Gang 102 10.6 m² 0 2
Soverom 103 14.9 m² 2 1
Soverom 104 13.5 m² 2 1
Bod 105 1.0 m² 0 1
Bod 106 1.0 m² 0 1
Bod 107 1.0 m² 0 1
Bod 108 1.0 m² 0 1
Dusj 109 0.9 m² 0 1
WC 110 0.0 m² 0 1
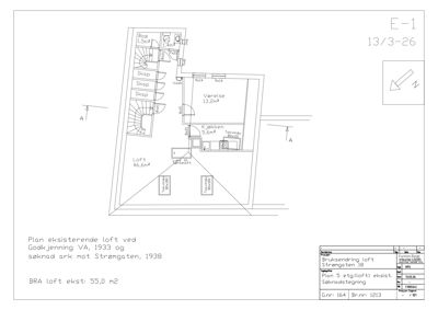
Værelse 501 13.2 m² 2 1
Kjøkken 502 5.6 m² 1 1
Bod 503 1.5 m² 0 1
WC 504 1.4 m² 0 1
Skap 505 0.0 m² 0 1
Skap 506 0.0 m² 0 1
Skap 507 0.0 m² 0 1
Loftrom 508 46.6 m² 2 0
Tørkeloft 0.0 m² 1 1

Fasader

Eksisterende

Nord
Materiale
Tre
Taktype
Saltak
Vinduer
11
Dører
1
Synlige etasjer
3
Sør
Taktype
Saltak
Vinduer
9
Dører
3
Balkonger
3
Synlige etasjer
4

Hendelser

21.04.2026 Strømgaten 18 Søknad om tillatelse til tiltak uten ansvarsrett 164/1213