ChangeOfUse Soeknad Enebolig

Bruksendring av kjeller til utleiedel i Svegeveien 10

📍 Svegeveien 10 , 4400 FLEKKEFJORD

Nøkkelinfo

Sakstype
Bruksendring
Bygningstype
Enebolig
Bruksareal
107 m²
Boenheter
2
Kommune
Flekkefjord
Fylke
Agder
Gnr / Bnr
66 / 67
Saksnummer
26/00863
Fase
Søknad

Om byggesaken

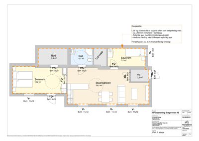
Bruksendring av kjelleretasjen i eksisterende enebolig til en utleiedel (sekundærdel) med et samlet areal på 107,1 m². Kjelleretasjen inneholder stue/kjøkken, bad, bod, to soverom og teknisk rom. Rommene har tilfredsstillende dagslysforhold og rømningsmuligheter via vinduer og utgang til terreng. Etasjeskillet er utført som trebjelkelag med ca. 200 mm mineralull, lyd- og brannisolert med nedforet himling og to lag gips. Badet har opplegg for vaskemaskin. Det er etablert parkeringsplass til utleiedelen. Det foreligger ingen fasadeendringer eller endring i bebygd areal.

Produkter og materialer

Gulv Flytende gulv med trinnlyddempende sjikt

🧱 Sponplater og gips

Flytende gulv med trinnlyddempende sjikt og gipsplater

Gulvkonstruksjon i kjeller for lydisolasjon og komfort

Dører Innvendige dører

🧱 Tre

Antall: 8

Dører til soverom, bad, bod og teknisk rom i kjeller

Innvendige dører for romavgrensning i utleiedelen

Fasade Eksisterende trefasade med saltak

🧱 Tre

Ingen fasadeendringer i forbindelse med bruksendringen

Fasade i tre med saltak, uendret i prosjektet

Grunnarbeid Parkeringsplass

Antall: 1

Etablert parkeringsplass til utleiedel på eiendommen

Parkeringsareal for utleiedel

Vinduer Fasadevindu

🧱 Tre

Antall: 6

Vinduer i kjeller og øvrige etasjer med tilfredsstillende dagslys og rømningsmuligheter

Vinduer for oppholdsrom og rømningsveier i kjeller og øvrige etasjer

Vegger Nedforet himling med lydbøyler og gips

🧱 Gipsplater

To lag gips på nedforet himling med lydbøyler

Vegger og himling for lyd- og brannisolasjon i kjeller

Trapper Innvendig trapp

Antall: 1

Trapp mellom kjeller og øvrige etasjer

Trapp for adkomst til kjellerutleiedel

VVS Sanitærinstallasjoner

Opplegg for vaskemaskin og sanitærinstallasjoner i bad

VVS-installasjoner for bad i kjellerutleiedel

Isolasjon Mineralull i etasjeskiller

🧱 Mineralull

Ca. 200 mm mineralull i trebjelkelag for lyd- og brannisolasjon

Isolasjon i etasjeskiller for lyd- og brannmotstand

Elektro Elektrisk anlegg

Elektrisk anlegg tilpasset utleiedel i kjeller

Elektriske installasjoner for belysning og strøm i utleiedel

Tømrer Innredning og tilpasning av kjeller

🧱 Tre og gips

Innredning av kjeller til boligformål med lyd- og brannisolasjon

Tømrerarbeid for bruksendring og tilpasning av kjeller

Bad Bad med vaskemaskinopplegg

Antall: 1

Bad på 4,1 m² med opplegg for vaskemaskin

Bad i kjellerutleiedel med sanitærinstallasjoner

Plantegning

Bruksendring Svegeveien 10 107.1 m²

Etasje 1 107.1 m²

Rom Areal Vinduer Dører
Stue/kjøkken 101 29.0 m² 3 2
Soverom 102 15.2 m² 1 2
Soverom 103 7.5 m² 1 1
Bad 104 4.1 m² 0 1
Bod 105 5.4 m² 0 1
Teknisk rom 106 2.5 m² 0 1

Fasader

Enebolig

Sør
Materiale
Tre
Taktype
Saltak
Vinduer
6
Dører
0
Balkonger
1
Synlige etasjer
2
Vest
Materiale
Tre
Taktype
Saltak
Vinduer
1
Dører
0
Balkonger
1
Synlige etasjer
2
Nord
Materiale
Tre
Taktype
Saltak
Vinduer
2
Dører
2
Synlige etasjer
1
Øst
Materiale
Tre
Taktype
Saltak
Vinduer
2
Dører
1
Balkonger
1
Synlige etasjer
1

Hendelser

20.04.2026 26/00863-5 Mail: Det påberopes TEK17 § 1-2, 8. ledd - bekreftelse på paragrafer som lempes
16.04.2026 26/00863-3 Innkalling til møte i Kontrollutvalget i Ås kommune 23.04.2026
10.04.2026 26/00863-4 Mail: Det etterspørres bekreftelse på oppfylling av TEK17 - sak på vent
08.04.2026 26/00863-2 Svegeveien 10, melding om mottatt søknad
07.04.2026 26/00863-1 Svegeveien 10 Søknad om tillatelse i ett trinn 66/67