ChangeOfUse Soeknad Enebolig

Bruksendring i enebolig på Teigavegen 18, Øvre Årdal

📍 Teigavegen 18 , 6884 ØVRE ÅRDAL

Nøkkelinfo

Sakstype
Bruksendring
Bygningstype
Enebolig
Bruksareal
123 m²
Boenheter
1
Kommune
Årdal
Fylke
Vestland
Gnr / Bnr
16 / 332
Saksnummer
2026/504
Fase
Søknad

Om byggesaken

Bruksendring av kjellerrom og deler av første etasje i en eksisterende enebolig på Teigavegen 18. Kjellerrommene omgjøres fra blindkjeller og disponibelt areal til oppholdsrom som kjøkken, bad, stue og soverom med takhøyde på minimum 2,3 meter og store vinduer som gir dagslys. Første etasje har også endret romfunksjoner, blant annet omgjøring av arbeidsrom til bad, gjesterom til soverom og kjølerom til skap. Fasaden er i hovedsak uendret, bortsett fra ny ytterdør. Bygget er i tre med saltak og har pipe, balkonger og garasje. Det er intern adkomst mellom etasjene, og kjellerinngangen er tilleggsinngang, ikke egen boenhet.

Produkter og materialer

Gulv Innvendige gulv

Oppholdsrom i kjeller med minimum 2,3 m takhøyde, gulv tilpasset boligstandard

Gulv i kjeller og øvrige etasjer tilpasset oppholdsrom

Tømrer Innvendige vegger og himlinger

🧱 Tre og isolasjon

Oppgradering og tilpasning av innvendige vegger i kjeller og 1. etasje for oppholdsrom

Tømrerarbeid for å tilpasse rom til boligstandard

VVS Rør i rør system

Opplegg til rør i rør i kjeller og garasje, rehabilitering av gammel installasjon

VVS-installasjon for vann og avløp i kjeller og øvrige etasjer

Vinduer Store kjellervinduer

🧱 Tre/trevinduer

Antall: 2

Store vinduer i kjellerstue og soverom som slipper inn dagslys

Vinduer som gir dagslys til kjellerrom som gjøres om til oppholdsrom

Dører Ytterdør

🧱 Tre eller isolert dør

Antall: 1

Ny ytterdør montert i fasade, tilleggsinngang til kjeller

Ny ytterdør som inngang til kjellerdel

Fasade Trepanel kledning

🧱 Tre

Eksisterende trepanel fasade med saltak og tegl tak

Fasade i tre med saltak, ingen vesentlige endringer bortsett fra ny ytterdør

Bad Bad og våtrom

Antall: 2

Bad i kjeller og bad i 1. etasje, oppgradert fra tidligere arbeidsrom og gjesterom

Bad med nødvendige våtromsinstallasjoner og overflater

Elektro Elektrisk anlegg

Rehabilitering av elektrisk anlegg i 1. og 2. etasje, samsvarserklæring fra Bilfinger

Elektrisk installasjon i henhold til NEK400 standard

Trapper Innvendig trapp

Antall: 1

Trapp mellom kjeller og 1. etasje for intern adkomst

Trapp som forbinder kjeller med første etasje

Plantegning

Enebolig 123.2 m²

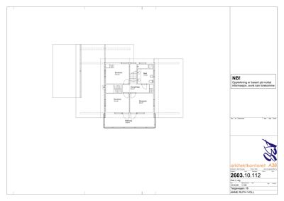
Etasje 2 60.0 m²

Rom Areal Vinduer Dører
Soverom 201 10.2 m² 1 1
Soverom 202 13.0 m² 1 1
Soverom 203 9.8 m² 1 1
Bad 204 7.0 m² 0 1
Gang/trapp 205 8.5 m² 0 0
Balkong 206 14.5 m² 0 1
Trapp TRAPP 3.0 m² 0 0

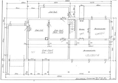
Etasje 0 14.6 m²

Rom Areal Vinduer Dører
Piltan PILTAN 14.6 m² 0 0
Kjellerstue 001 23.6 m² 0 0
Kjøkken 002 11.6 m² 0 0
Bad 003 9.0 m² 0 0
Sov 004 11.7 m² 0 0
Disp 005 11.7 m² 0 0
Trapp 006 3.4 m² 0 0

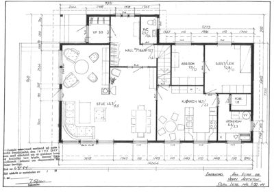
Etasje 1 48.6 m²

Rom Areal Vinduer Dører
Soverom SOV.10.3 10.3 m² 1 1
Soverom SOV.12.8 12.8 m² 1 1
Soverom SOV.9.6 9.6 m² 1 1
Bad BAD 7.0 m² 0 1
Gang GANG 5.4 m² 0 3
STUE 101 45.3 m² 2 2
KJØKKEN 102 18.7 m² 2 1
VASKEROM 103 6.6 m² 1 1
ARB.ROM 104 7.0 m² 1 1
GJEST/LEIK 105 12.8 m² 1 1
WC 106 2.5 m² 0 1
V.F 107 3.0 m² 0 1
HALL 108 13.7 m² 0 2

Fasader

Enebolig

Nord
Materiale
Tre
Taktype
Saltak
Vinduer
5
Dører
0
Synlige etasjer
2
Sør
Materiale
Tre
Taktype
Saltak
Vinduer
10
Dører
1
Balkonger
2
Synlige etasjer
2
Øst
Materiale
Tre
Taktype
Saltak
Vinduer
3
Dører
1
Balkonger
2
Synlige etasjer
2
Vest
Materiale
Tre
Taktype
Saltak
Takmat.
Tegl
Vinduer
6
Dører
1
Balkonger
1
Synlige etasjer
2

Hendelser

15.04.2026 Søknad om tillatelse til tiltak - bruksendring frå tilleggsdel til hovuddel