ChangeOfUse Igangsettingstillatelse Enebolig

Bruksendring i enebolig med kjellerinngang, Tveitervegen 5

📍 Tveitervegen 5 , 2040 KLØFTA

Nøkkelinfo

Sakstype
Bruksendring
Bygningstype
Enebolig
Bruksareal
154 m²
Boenheter
1
Kommune
Ullensaker
Fylke
Akershus
Gnr / Bnr
17 / 40
Saksnummer
2024/6667
Fase
Igangsettingstillatelse

Om byggesaken

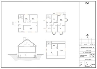
Bruksendring av kjellerrom i en eksisterende enebolig på Tveitervegen 5 fra tilleggsdel til hoveddel, med et areal på ca. 56,8 m². Kjelleren ombygges fra bod, vaskerom og tørkerom til bad, kjøkken, kontor, soverom og stue. Det etableres også bad i 1. og 2. etasje, samt to nye soverom i tidligere dagligrom og stue. Utvendig etableres ny kjellerinngang med trapp og større kjellervinduer med lysgraver. Bygningen har saltak og trekledning, og fasadene justeres noe i forbindelse med tiltaket. Totalt bruksareal etter endring er ca. 153,7 m² fordelt på kjeller, 1. og 2. etasje. Tiltaket inkluderer skjæring i betongvegger, rørleggerarbeid og trapper til kjeller.

Produkter og materialer

VVS Rørleggerarbeid for bad og kjøkken

Rørleggerarbeid i kjeller for bad og kjøkken

Installasjon av vann og avløp for nye bad og kjøkken

Grunnarbeid Lysgraver og fundament for trapp

Graving for lysgraver og fundamentering av utvendig trapp

Grunnarbeid for nye kjellervinduer og trapp

Trapper Utvendig trapp til kjeller

Antall: 1

Trapp til ny utvendig kjellerinngang

Trapp for adkomst til kjeller fra utsiden

Bad Innvendig bad i kjeller, 1. og 2. etasje

Antall: 3

Nye bad i kjeller (7,2 m²), 1. etasje (7,2 m²) og 2. etasje (7,2 m²)

Oppføring av bad med sanitærinstallasjoner i tre etasjer

Betong Skjæring i betongvegger

🧱 Betong

Skjæring av betongvegger for montering av større vinduer

Betongarbeid for tilpasning av kjellervinduer

Fasade Tre kledning og saltak

🧱 Tre

Fasade i tre med saltak, mindre justeringer i fasade i forbindelse med bruksendring

Vedlikehold og justering av fasade i treverk og tak

Dører Utvendig kjellerinngangsdør

🧱 Tre eller metall, spesifikasjon ikke oppgitt

Antall: 1

Ny utvendig kjellerinngang med trapp

Dør til ny kjellerinngang med tilhørende trapp

Gulv Innvendige gulvflater

Nye gulv i ombygde rom, materialspesifikasjon ikke oppgitt

Legging av gulv i bad, kjøkken, soverom og stue

Vinduer Kjellervindu med lysgrav

🧱 3-lags energiglass

Større kjellervinduer med lysgraver i henhold til TEK § 13-12 og rømningskrav TEK § 11-13

Nye kjellervinduer med lysgraver for økt lysinnslipp og rømningsvei

Kjøkken Innvendig kjøkken i kjeller

Antall: 1

Nytt kjøkken på 5 m² i kjeller

Oppføring av kjøkken i kjeller

Maling Innvendig maling og overflatebehandling

Maling av vegger og tak i ombygde rom

Overflatebehandling av innvendige flater

Elektro Elektrisk installasjon

Elektrisk arbeid for belysning, stikkontakter og tekniske installasjoner i ombygde rom

Elektrisk installasjon i kjeller og øvrige etasjer

Plantegning

Enebolig 129.8 m²

Etasje 0 47.0 m²

Rom Areal Vinduer Dører
Stue/kj. 001 15.5 m² 0 1
Bad 002 4.7 m² 0 1

Etasje 1 36.8 m²

Rom Areal Vinduer Dører
Stue 101 8.1 m² 1 1
Kontor 102 6.5 m² 0 1
Sov. 103 8.1 m² 1 1
Kitchen 104 5.0 m² 0 1
BAD 105 7.2 m² 0 1

Etasje 2 16.8 m²

Rom Areal Vinduer Dører
Sov. 201 7.7 m² 0 1
Sov. 202 9.1 m² 0 1
BAD 203 0.0 m² 0 0

Etasje 3 29.2 m²

Rom Areal Vinduer Dører
Sov. 301 13.5 m² 0 1
Sov. 302 15.7 m² 1 1
BAD 303 7.2 m² 0 1

Fasader

Enebolig

Nord
Materiale
Tre
Taktype
Saltak
Vinduer
2
Dører
1
Synlige etasjer
2
Sør
Materiale
Tre
Taktype
Saltak
Vinduer
4
Dører
1
Synlige etasjer
2
Vest
Materiale
Tre
Taktype
Saltak
Vinduer
1
Dører
0
Synlige etasjer
2
Øst
Materiale
Tre
Taktype
Saltak
Vinduer
3
Dører
1
Synlige etasjer
2

Hendelser

15.04.2026 Igangsettingstillatelse - Gnr 17 bnr 40 - Tveitervegen 5 - Bruksendring fra tilleggsdel til hoveddel
26.03.2026 Supplering av søknad - Gnr 17 bnr 40 - Tveitervegen 5 - Bruksendring fra tilleggsdel til hoveddel
19.06.2025 Tilbakemelding om mangler - gnr 17 bnr 40 - Tveitervegen 5 - Bruksendring fra tilleggsdel til hoveddel
11.02.2025 Søknad om igangsettingstillatelse - Gnr 17 bnr 40 - Tveitervegen 5 - Bruksendring fra tilleggsdel til hoveddel
22.08.2024 Rammetillatelse - gnr 17 bnr 40 - Tveitervegen 5 - Bruksendring fra tilleggsdel til hoveddel
23.07.2024 Søknad om rammetillatelse - Gnr 17 bnr 40 - Tveitervegen 5 - Bruksendring fra tilleggsdel til hoveddel