ChangeOfUse UnderBehandling Enebolig

Bruksendring av garasje og carport i Undelstadveien 55B, Asker

📍 Undelstadveien 55B , 1387 ASKER

Nøkkelinfo

Sakstype
Bruksendring
Bygningstype
Enebolig
Bruksareal
120 m²
Boenheter
1
Kommune
Asker
Fylke
Akershus
Gnr / Bnr
49 / 109
Saksnummer
25/707
Fase
Under behandling

Om byggesaken

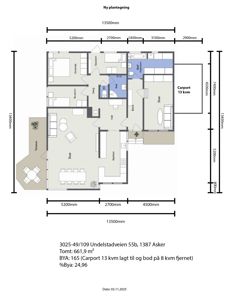
Eksisterende integrert garasje på 20 m² i enebolig omgjøres til oppholdsrom (stue og bad) uten økning i bygningsvolum. Det planlegges også oppføring av en frittstående carport på 13 m² med to søyler, uten vegger, plassert ved siden av huset. Carporten erstatter en eksisterende bod på 8 m² som rives. Bygget har saltak med takvinkel på 13 grader og tre vinduer i garasjen som blir stue. Tiltaket medfører ingen økning i bebygd areal (BYA) for bruksendringen, men carporten medfører en økning i BYA som overskrider kommuneplanens tillatte utnyttelsesgrad, noe som har ført til avslag på dispensasjon. Parkering ivaretas på egen tomt med biloppstillingsplasser på terreng. Tiltaket er nabovarslet og det foreligger samtykke fra nabo for plassering nærmere nabogrense enn 4 meter.

Arbeidsomfang

- Bruksendring av eksisterende garasje til oppholdsrom (stue) - Ingen fysisk utvidelse eller nytt tilbygg (carport ble trukket fra søknaden)

Produkter og materialer

Tømrer Carport konstruksjon

🧱 Tre

Carport på 13 m² med to søyler, uten vegger

Oppføring av carport ved siden av huset

Fasade Trepanel

🧱 Tre

Fasade sydøst med trepanel og saltak, takvinkel 13 grader

Fasadeendring i forbindelse med bruksendring og carport

Garasjeport Garasjeport

Antall: 1

Eksisterende garasjeport fjernes ved bruksendring

Garasjeport i eksisterende garasje som gjøres om til stue

Maling Innvendig maling

Innvendig maling av nye oppholdsrom

Overflatebehandling innvendig

Bad Nytt bad i tidligere garasje

Antall: 1

Nytt bad installeres i bruksendret garasje

Sanitærinstallasjon i tidligere garasje

VVS Sanitærinstallasjon

Nytt bad krever sanitærinstallasjon og søknad om sanitærabonnement

VVS-arbeid i forbindelse med nytt bad

Gulv Gulvbelegg

Nytt gulv i oppholdsrom etter bruksendring

Gulvbelegg eller parkett i nye rom

Dører Ytterdør

🧱 Tre eller annet materiale

Antall: 1

Ytterdør i fasade sydøst

Dør til bolig

Tak Saltak

🧱 Takstein eller tilsvarende

Saltak med takvinkel 13 grader

Tak på eksisterende bolig og carport

Elektro Elektrisk installasjon

Elektrisk installasjon må oppgraderes i forbindelse med bruksendring og nytt bad

Elektrisk arbeid i bruksendret garasje

Rekkverk Terrasserekkverk

Rekkverk på terrasse må oppgraderes eller tilpasses ved endring

Rekkverk på terrasse

Vinduer Fasadevindu

🧱 Tre eller aluminium

Antall: 5

3 vinduer i eksisterende garasje, 4 vinduer i ny fasade sydøst

Vinduer i bolig og tidligere garasje som blir oppholdsrom

Isolasjon Isolasjon i vegger og tak

Isolasjon må ivaretas i forbindelse med bruksendring til oppholdsrom

Isolasjon i vegger og tak for nytt oppholdsrom

Grunnarbeid Asfalt

🧱 Asfalt

Asfalt legges ned til carport for enklere snuing på gårdsplassen

Grunnarbeid for carport

Plantegning

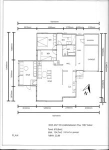
Enebolig 120.5 m²

Etasje 1 120.5 m²

Rom Areal Vinduer Dører
Stue 101 35.2 m² 3 2
Kjøkken 102 12.5 m² 1 1
Soverom 103 14.0 m² 1 1
Soverom 104 13.5 m² 1 1
Soverom 105 12.0 m² 1 1
Gang 106 8.5 m² 0 4
Entré 107 6.0 m² 0 2
Bad 108 5.5 m² 0 1
WC 109 2.5 m² 0 1
Vaskerom 110 4.0 m² 0 1
Garasje 111 20.0 m² 1 1
Terrasse 112 15.0 m² 0 1
Terrasse 113 12.0 m² 0 1

Garasje 21.9 m²

Etasje 1 21.9 m²

Rom Areal Vinduer Dører
Garasje 21.9 m² 0 0
NY STUE (TIDLIGERE GARASJE) 0 94.5 m² 0 0
Garasje 21.9 m² 0 0

Fasader

Eksisterende

Sydøst
Materiale
Tre
Taktype
Saltak
Vinduer
3
Dører
1
Balkonger
1
Synlige etasjer
1

Ny

Sydøst
Materiale
Tre
Taktype
Saltak
Vinduer
4
Dører
1
Balkonger
1
Synlige etasjer
1

Enebolig

Sydøst
Materiale
Tre
Taktype
Saltak
Vinduer
5
Dører
1
Balkonger
1
Synlige etasjer
1

Hendelser

09.04.2026 49/109 Undelstadveien 55B - Statsforvalterens melding om saksbehandlingstid i klagesak
07.04.2026 49/109 Undelstadveien 55B - Oversendelse av klage til Statsforvalter klage
23.03.2026 49/109 Undelstadveien 55B - Begrunnet klage - avslag på søknad om dispensasjon klage
11.03.2026 49/109 Undelstadveien 55B - Kvittering på mottatt klage klage
06.03.2026 49/109 Undelstadveien 55B - Klage på avslag på søknad om dispensasjon - bruksendring klage
24.02.2026 49/109 Undelstadveien 55B - Avslag på søknad om dispensasjon – Bruksendring fra tilleggsdel til hoveddel dispensasjon
21.01.2026 49/109 Undelstadveien 55B - E-postkorrespondanse
07.01.2026 49/109 Undelstadveien 55B - Oversender oppdaterte planer uten carport og ber om at saken behandles iht disse
04.11.2025 49/109 Undelstadveien 55B - Etterspurt dokumentasjon
29.10.2025 49/109 Undelstadveien 55B - Etterlyser tilbakemelding
01.09.2025 49/109 Undelstadveien 55B - Svar på varsel om avslag og ufullstendig søknad avslag
24.07.2025 49/109 Undelstadveien 55B - Varsel om avslag og ufullstendig søknad avslag
19.06.2025 49/109 Undelstadveien 55B - Etterlyser svar på søknad søknad
07.03.2025 49/109 Undelstadveien 55B - Bekreftelse på at vi har mottatt din søknad søknad
03.03.2025 49/109 Undelstadveien 55B - Søknad om bruksendring fra tilleggsdel til hoveddel søknad