ChangeOfUse Rammetillatelse Enebolig

Bruksendring, terrasseutvidelse og parkeringsplass på Vågshaugen 30

📍 Vågshaugen 30 , 5209 OS

Nøkkelinfo

Sakstype
Bruksendring
Bygningstype
Enebolig
Bruksareal
355 m²
Boenheter
1
Kommune
Bjørnafjorden
Fylke
Vestland
Gnr / Bnr
51 / 268
Saksnummer
2026/1919
Fase
Rammetillatelse

Om byggesaken

Bruksendring av del av eksisterende kjeller i en enebolig til utleieareal med etablering av soverom og tilhørende romfunksjoner i henhold til tekniske krav. Terrassen utvides med ca. 2 meter avstand til nabogrense, med høyde over 0,5 meter over planert terreng. Det opparbeides ny parkeringsplass på egen eiendom med tilhørende støttemur for terrengtilpasning. Det vurderes også oppføring av carport over parkeringsplassen. Tiltaket innebærer ingen endring av hovedformålet bolig, men en intern funksjonsendring og forbedret utnyttelse av uteareal og parkering.

Produkter og materialer

Garasjeport Carport (vurderes)

🧱 Tre/Metall

Antall: 1

Vurdert oppføring av carport over parkeringsplass

Carport over ny parkeringsplass, ikke endelig besluttet

Fasade Terrasseutvidelse

🧱 Tre

Terrasse utvidet med ca. 2 meter avstand til nabogrense, høyde over 0,5 meter over planert terreng

Utvidelse av eksisterende terrasse i tre, med nabosamtykke for redusert avstand til nabogrense

Grunnarbeid Parkeringsplass med støttemur

🧱 Betong/mur

Opparbeiding av ny parkeringsplass med støttemur for terrengtilpasning på egen eiendom

Grunnarbeid for parkeringsplass inkl. støttemur for terrengjustering

Elektro Elektrisk installasjon

Oppgradering av elektrisk anlegg i kjeller for boligformål i henhold til TEK17

Elektriske installasjoner i kjeller ved bruksendring til bolig

Tømrer Innvendige arbeider

Oppgradering av kjeller til utleie med soverom og tilhørende romfunksjoner i henhold til tekniske krav

Innvendig oppgradering og tilpasning av kjellerareal til boligformål

Bygningskomponenter Dører

🧱 Tre

Antall: 14

Eksisterende dører i kjeller og øvrige etasjer, ingen nye dører spesifisert

Dører i eksisterende bygg, ingen nye dører oppgitt i prosjektet

Betong Fundament og støttemur

Fundamentering for støttemur og parkeringsplass

Betongarbeid for støttemur og parkeringsplass

Gulv Innvendige gulv

Gulvbelegg/parkett i kjeller ved bruksendring til bolig

Innvendige gulv i kjellerrom som skal brukes til bolig

VVS Sanitær og ventilasjon

Oppgradering av sanitær og ventilasjon i kjeller for boligformål i henhold til TEK17

VVS-installasjoner i kjeller ved bruksendring til bolig

Isolasjon Kjellerisolasjon

Isolasjon av kjellerrom for boligstandard i henhold til tekniske krav

Isolasjon for å oppnå boligstandard i kjeller

Maling Innvendig overflatebehandling

Maling og overflatebehandling i kjellerrom ved bruksendring

Innvendig maling og overflatebehandling i kjeller

Bygningskomponenter Vinduer

🧱 Tre

Antall: 14

Eksisterende vinduer i kjeller og øvrige etasjer, ingen nye vinduer spesifisert

Vinduer i eksisterende bygg, ingen nye vinduer oppgitt i prosjektet

Mur Støttemur

Støttemur for terrengtilpasning i forbindelse med parkeringsplass

Støttemur for å tilpasse terreng ved parkeringsplass

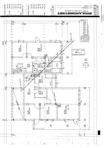
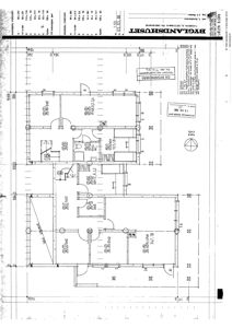
Plantegning

Enebolig 354.6 m²

Etasje 1 106.4 m²

Rom Areal Vinduer Dører
Kjøkken 101 7.7 m² 0 1
Sov 2 102 5.2 m² 0 1
Sov 1 103 10.1 m² 0 1
Bad 104 0.0 m² 0 1
Sov 3 105 11.8 m² 1 1
Bod 1 106 6.4 m² 0 1
Bod 2 107 5.9 m² 0 1
Bod 3 108 3.9 m² 0 1
Yttergang 109 4.8 m² 0 1
bod 110 15.0 m² 1 1

Etasje 2 143.7 m²

Rom Areal Vinduer Dører
Stue 201 26.4 m² 3 1
Kjøkken 202 9.5 m² 1 1
Sov 203 11.7 m² 1 1
Bad 204 0.0 m² 0 1
WC 205 0.0 m² 0 1
Gang 206 0.0 m² 0 0
Terrasse 207 0.0 m² 0 0

Etasje 0 104.5 m²

Rom Areal Vinduer Dører
Bod 01 14.2 m² 1 1
Disp 02 12.8 m² 0 1
Stue 03 28.5 m² 2 1
Bod 04 11.5 m² 1 1
Hall 05 15.3 m² 0 2
Bod 06 12.2 m² 1 1

Fasader

Enebolig

Sør
Materiale
Tre
Taktype
Saltak
Takmat.
Tegl
Høyde
2.6 m
Mønehøyde
8.2 m
Vinduer
10
Dører
3
Balkonger
2
Synlige etasjer
2
Nord
Materiale
Tre
Taktype
Flatt tak
Takmat.
Tegl
Høyde
6.5 m
Mønehøyde
8.2 m
Vinduer
5
Dører
1
Balkonger
1
Synlige etasjer
2
Vest
Materiale
Tre
Taktype
Flatt tak
Takmat.
Tegl
Høyde
6.5 m
Mønehøyde
8.2 m
Vinduer
5
Dører
1
Balkonger
1
Synlige etasjer
2
Øst
Materiale
Tre
Taktype
Saltak
Takmat.
Tegl
Høyde
6.5 m
Mønehøyde
8.2 m
Vinduer
4
Dører
2
Synlige etasjer
1

Hendelser

15.04.2026 Løyve i ett trinn - 51/268 - Vågshaugen 30 - Bruksendring, utviding av terrasse, opparbeiding av parkeringsplass, støttemur
27.03.2026 51/268 - Supplering av søknad
19.03.2026 Ber om dokumentasjon - 51/268 - Vågshaugen 30 - Søknad om blant anna parkeringsplass, støttemur og utviding av terrasse
09.03.2026 51/268 - Vågshaugen 30 - Søknad om bruksendring av del av kjellar, utviding av terrasse og opparbeiding av parkeringsplass med støttemur
23.02.2026 51/268 - Nabovarsel til Bjørnafjorden kommune (51/231) - Bruksendring av del av kjellar, utviding av terrasse og opparbeiding av parkeringsplass