ChangeOfUse Igangsettingstillatelse Enebolig

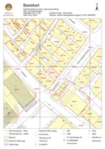
Bruksendring og boder i bolig, Vestre Holbergsallmenningen 23, Bergen

📍 Vestre Holbergsallmenningen 23 , 5011 BERGEN

Nøkkelinfo

Sakstype
Bruksendring
Bygningstype
Enebolig
Bruksareal
66 m²
Boenheter
1
Kommune
Bergen
Fylke
Vestland
Gnr / Bnr
165 / 735
Saksnummer
BYGG-2024/15861
Fase
Igangsettingstillatelse

Om byggesaken

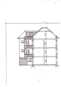
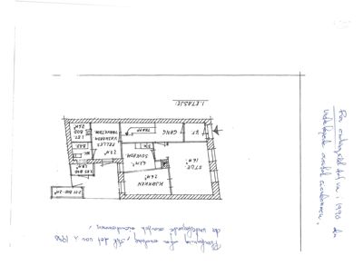
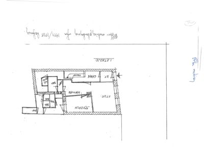
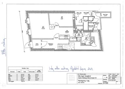
Bruksendring av eksisterende bolig på 66,4 m² i Vestre Holbergsallmenningen 23 i Bergen, med endring av planløsning i første etasje. Soverom omgjøres til kjøkken og kjøkken til soverom, samt etablering av nytt bad og WC i fellesgang. Det oppføres også tre nye utvendige boder i bakgården med flatt tak i tre. Bygget har 1 trapp og 1 balkong. Eiendomsgrenser er klarlagt ved oppmålingsforretning. Tiltaket inkluderer innlemming av fellesareal og oppgradering av våtrom med membran. Prosjektet er underlagt ansvarlig søker, prosjekterende, utførende og kontrollerende foretak med godkjente ansvarsretter. Igangsettingstillatelse er gitt.

Produkter og materialer

Fasade Utvendige boder

🧱 Tre

Antall: 3

Boder med flatt tak, dimensjoner ca. 1,8 m x 2,1 m x 2,2 m høyde

Oppføring av tre utvendige boder i bakgård nær nabogrense

VVS Rørleggerarbeid våtrom

Rørleggerarbeid for våtrom utført av LSS RØR AS

Installasjon og oppgradering av VVS i våtrom

Dører Innvendige dører

Antall: 15

Dører til rom i første etasje, inkludert boddører og WC

Innvendige dører i bolig og boder

Fasade Balkong

Antall: 1

Eksisterende balkong på 3,4 m² i første etasje

Balkong tilknyttet bolig i første etasje

Vinduer Fasadevindu

Antall: 6

Vinduer i hovedbygg, inkludert soverom og stue

Eksisterende vinduer i bolig, tilfredsstiller dagslyskrav

Trapper Innvendig trapp

Antall: 1

Trapp i fellesgang i første etasje, plassert som opprinnelig godkjent

Eksisterende trapp i bolig

Grunnarbeid Oppmåling

Oppmålingsforretning for klarlegging av eiendomsgrenser

Oppmåling og klarlegging av eiendomsgrenser før igangsetting

Tømrer Innvendig tømrerarbeid

Endringer i planløsning, innlemming av fellesareal og oppføring av boder

Tømrerarbeid knyttet til bruksendring og nye boder

Bad Våtrom med membran

🧱 Membran

Oppgradering av bad og WC med membranarbeid utført av Ny-Hus AS

Våtromsarbeid med membran i bad og WC

Fasader

Bod

Sørøst
Materiale
Tre
Taktype
Flatt tak
Vinduer
2
Dører
0
Synlige etasjer
1
Sørvest
Materiale
Tre
Taktype
Flatt tak
Vinduer
0
Dører
2
Synlige etasjer
1

Hovedbygg

Ukjent
Vinduer
6
Dører
1
Balkonger
1
Synlige etasjer
3

Hendelser

31.03.2026 Igangsettingstillatelse.165/735/0/0 Vestre Holbergsallmenningen 23
12.03.2026 Vestre Holbergsallmenningen 23 Søknad om igangsettingstillatelse 165/735
05.03.2026 Godkjenning av plassering i tiltaksklasse vurdering av ansvarsbelegging
11.02.2026 Vestre Holbergsallmenningen 23 Supplering av søknad 165/735
29.12.2025 Godkjenning av plassering i tiltaksklasse vurdering av ansvarsbelegging
19.12.2025 Vestre Holbergsallmenningen 23 Supplering av søknad 165/735
24.03.2025 Fakturagrunnlag 2024
24.03.2025 Ubw ordre 20665927
20.03.2025 Rammetillatelse / delvis avslag - 165/735 - Vestre Holbergsallmenningen 23
20.03.2025 Spørsmål vedrørende sak- 165/735/0/1 Vestre Holbergsallmenningen 23, bruksendring bolig
20.03.2025 Tegning - 165/735/0/1 Vestre Holbergsallmenningen 23, bruksendring bolig
18.03.2025 Svar på mangelbrev - info om endring av søknadskategori til rammesøknad
07.03.2025 Behov for tilleggsopplysninger
21.02.2025 Brannvesenets uttalelse vedr. Intern høring BYGG-2024/15861 Gnr 165 Bnr 735 Vestre Holbergsallmenningen 23
19.02.2025 Byantikvarens tilbakemelding 2024/133308 165/735/0/1 Vestre Holbergsallmenningen 23, bruksendring bolig
12.02.2025 Vestre Holbergsallmenningen 23 Supplering av søknad 165/735
27.01.2025 Behov for tilleggsopplysninger
27.01.2025 Intern høring BYGG-2024/15861
14.01.2025 Tilleggsopplysninger - 165/735/0/1 Vestre Holbergsallmenningen 23, bruksendring bolig
26.11.2024 Bekrefter utsatt frist
04.11.2024 Til info - 165/735/0/1 Vestre Holbergsallmenningen 23, bruksendring bolig
17.10.2024 Bekreftelse gis utsatt frist for tilleggsopplysninger - 165/735/0/1 Vestre Holbergsallmenningen 23, bruksendring bolig
15.10.2024 Ber om utsatt frist - 165/735/0/1 Vestre Holbergsallmenningen 23, bruksendring bolig
04.09.2024 Behov for tilleggsopplysninger
29.08.2024 Søknad - 165/735/0/1 Vestre Holbergsallmenningen 23, bruksendring bolig