ChangeOfUse UnderBehandling Enebolig

Bruksendring fra bod til oppholdsrom i Vettrelia 34

📍 Vettrekollen 24 , 1392 VETTRE

Nøkkelinfo

Sakstype
Bruksendring
Bygningstype
Enebolig
Bruksareal
23 m²
Boenheter
1
Kommune
Asker
Fylke
Akershus
Gnr / Bnr
58 / 216
Saksnummer
26/712
Fase
Under behandling

Om byggesaken

Bruksendring av et rom på 22.96 m² i en enebolig i Vettrelia 34 fra bod til oppholdsrom. Rommet har en innvendig takhøyde på ca. 2,15 meter, ett vindu som tilfredsstiller krav til rømningsvindu (70x82 cm), og egen inngangsdør. Rommet består av et oppholdsrom på 16.3 m² med 2 vinduer og 1 dør, en gang på 2.3 m² med 2 dører, et mindre oppholdsrom på 3.6 m² med 1 vindu og 1 dør, samt et WC-rom på 2.86 m² uten vinduer. Endringen innebærer at rommets funksjon endres fra tilleggsdel til hoveddel, noe som kan utløse nye tekniske krav. Det er ikke planlagt endringer i bærende konstruksjoner eller innsetting av nye vinduer, men vinduene som finnes er registrert og ønskes godkjent som del av oppholdsrommet.

Produkter og materialer

Isolasjon Vegger og tak

🧱 200 mm isolasjon

Nedlekting for 200 mm isolasjon, vindtetting over

Isolasjon i vegger og tak for oppholdsrommet

Ventilasjon Lufting av bjelkelag

Åpninger for lufting av bjelkelag i fasade

Ventilasjon for konstruksjonen rundt oppholdsrommet

Tømrer Innvendige vegger og tak

🧱 Tre stendere

150 mm tre stendere, helisolert

Innvendige konstruksjoner i rommet

Dører Ytterdør til rommet

Antall: 1

Egen inngangsdør til rommet under eksisterende bolig

Eksisterende dør som gir egen adkomst til oppholdsrommet

Gulv Betonggulv med varmekabler

🧱 Betong

Isolert betonggulv på grunn med varmekabler, kanal fra eksisterende bad/toalett til yttervegg

Eksisterende gulvkonstruksjon i rommet

Fasade Fasadeendring ved vindu

🧱 Tre kledning

Fasade i tre med fugede tegl og åpninger for lufting av bjelkelag

Fasade rundt vindu som skal registreres i forbindelse med bruksendring

Vinduer Rømningsvindu

Antall: 1

Vindusstørrelse 70x82 cm, tilfredsstiller krav til rømningsvindu

Eksisterende vindu i oppholdsrom som skal registreres og godkjennes som del av bruksendringen

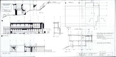
Plantegning

Enebolig 23.0 m²

Etasje 1 23.0 m²

Rom Areal Vinduer Dører
Oppholdsrom 101 16.3 m² 2 1
Gang 102 2.3 m² 0 2
Oppholdsrom 103 3.6 m² 1 1
WC 104 2.9 m² 0 1

Fasader

Vethrelia 22

Øst
Vinduer
13
Dører
1
Balkonger
1
Synlige etasjer
3

Enebolig

Vest
Materiale
Tre
Taktype
Flatt tak
Vinduer
4
Dører
0
Synlige etasjer
1
Nord
Materiale
Tre
Taktype
Flatt tak
Vinduer
3
Dører
1
Balkonger
1
Synlige etasjer
1

Hendelser

14.04.2026 58/213 Vettrelia 34 - Korrigering av gnr/bnr
13.04.2026 58/216 Vettrelia 34 - Feil adresse i journalposter
23.03.2026 58/216 Vettrekollen 24 - Ufullstendig søknad bruksendring
16.03.2026 58/216 Vettrelia 34 - Supplerende dokumentasjon
16.03.2026 58/216 Vettrekollen 24 - Ufullstendig søknad om bruksendring fra bod til oppholdsrom
05.03.2026 58/216 Vettrelia 34 - Søknad om bruksendring fra bod til oppholdsrom