ChangeOfUse Ferdigattest Enebolig

Bruksendring og fasadeendring i enebolig, Wiers-Jenssens vei 26B

📍 Wiers-Jenssens vei 26B , 5089 BERGEN

Nøkkelinfo

Sakstype
Bruksendring
Bygningstype
Enebolig
Boenheter
1
Kommune
Bergen
Fylke
Vestland
Gnr / Bnr
160 / 774
Saksnummer
BYGG-2023/16381
Fase
Ferdigattest

Om byggesaken

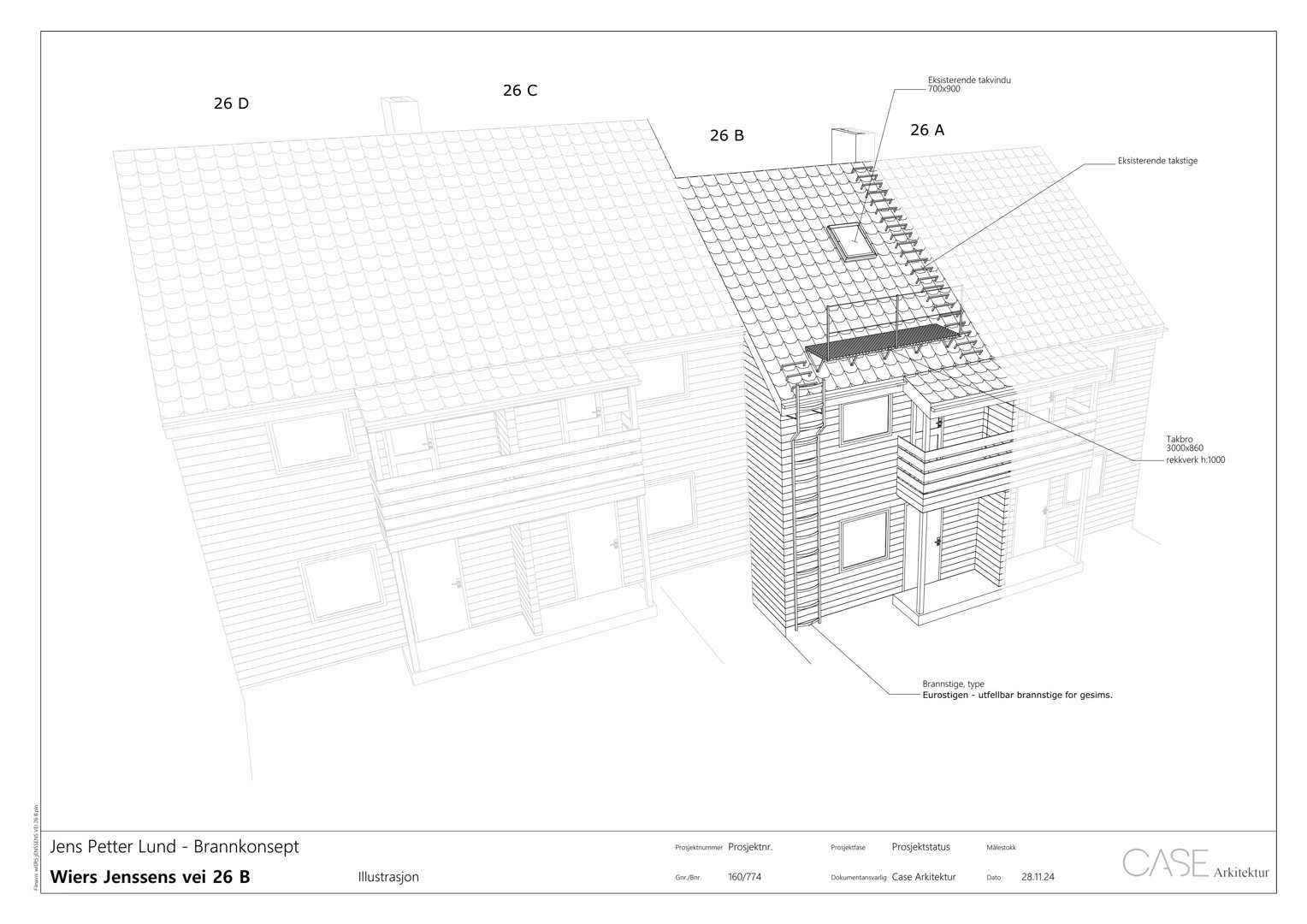
Prosjektet omfatter bruksendring av loft i en eksisterende enebolig i Wiers-Jenssens vei 26B, Bergen, med tilhørende fasadeendringer. Det inkluderer utvidelse av eksisterende takvindu fra 0,5x0,9 m til 0,7x1,2 m for å tilfredsstille rømningskrav, montering av utfellbar utvendig brannstige (Eurostigen) med tilhørende rømningsplattform på taket, samt etablering av rekkverk på rømningsplattform for økt sikkerhet. Fasaden er i tre med saltak, og tiltaket er plassert slik at det har liten visuell påvirkning på omgivelsene. Prosjektet er ferdigstilt og det er søkt om ferdigattest. Det er også gjennomført dispensasjon for nedskjæring i takflaten i forbindelse med takvinduutvidelsen.

Produkter og materialer

Tømrer Bygningsmessige arbeider og ventilasjon

Utførelse av bygningsmessige endringer og ventilasjon i forbindelse med bruksendring

Tømrerarbeid for fasadeendring og bruksendring

Trapper Utvendig utfellbar brannstige

🧱 Metall

Antall: 1

Eurostigen - utfellbar brannstige for gesims

Utvendig rømningsstige for loft

VVS Ventilasjon og varme

Elektriske panelovner for varmefordeling, elektrisitet som energiforsyning

Varme- og ventilasjonsanlegg i bolig

Tak Saltak

🧱 Tre med taktekking

Eksisterende saltak med gesimshøyde 5,2 m

Takstruktur for enebolig

Dører Ytterdør til rømningsplattform

Antall: 1

Dør til rømningsplattform på tak

Adkomst til rømningsplattform

Fasade Trepanel

🧱 Tre

Fasade i tre, østvendt

Fasadebekledning

Rekkverk Rømningsplattform rekkverk

🧱 Malt i takets farge

Antall: 1

Rekkverk på rømningsplattform, høyde 1 meter, 3 stolper, malt i takets farge for minimal visuell påvirkning

Sikkerhetsrekkverk på rømningsplattform

Vinduer Takvindu

🧱 Tre/Aluminium

Antall: 1

Utvidelse av eksisterende takvindu fra 0,5x0,9 m til 0,7x1,2 m, tilfredsstiller rømningskrav

Takvindu for loftsrom med rømningsfunksjon

Brannvern Brannkonsept og sikkerhetsløsninger

Brannkonsept klasse 1, inkludert rømningsstige og rømningsplattform med rekkverk

Brannsikkerhetstiltak for loftsbruksendring

Plantegning

Enebolig 0.0 m²

Etasje 0 0.0 m²

Rom Areal Vinduer Dører

Fasader

Enebolig

Øst
Materiale
Tre
Taktype
Saltak
Høyde
5.2 m
Vinduer
4
Dører
1
Synlige etasjer
2

Rekkehus

Vest
Materiale
Tre
Taktype
Saltak
Høyde
6.8 m
Mønehøyde
9.3 m
Vinduer
10
Dører
0
Synlige etasjer
3

Hendelser

10.04.2026 Wiers-Jenssens vei 26B Søknad om ferdigattest 160/774
09.04.2026 Wiers-Jenssens vei 26B Supplering av søknad 160/774
09.04.2026 Supplering- 160/774/0/0 Wiers-Jenssens vei 26B, bruksendring bolig mm
16.10.2025 Fakturagrunnlag, 160/774, Wiers-Jenssens vei 26B
16.10.2025 Ubw ordre 20679638
03.10.2025 Tillatelse til endring, 160/774, Wiers-Jenssens vei 26B
23.09.2025 Wiers-Jenssens vei 26B Søknad om endring av gitt tillatelse eller godkjenning 160/774
09.09.2025 2023/247045-40 - Årstad. Gnr 160 bnr 774. Wiers-Jenssens Vei 26 B. Vedrørende bruksendring
26.08.2025 Godkjenning av plassering i tiltaksklasse vurdering av ansvarsbelegging
26.08.2025 Årstad. Gnr 160 bnr 774. Wiers-Jenssens Vei 26 B. Vedrørende bruksendring
11.08.2025 Wiers-Jenssens vei 26B Supplering av søknad 160/774
30.04.2025 Fakturagrunnlag, 160/774, Wiers-Jenssens vei 26B
30.04.2025 Ubw ordre 20668556
11.04.2025 Tillatelse til endring på vilkår, 160/774, Wiers-Jenssens vei 26B
20.03.2025 Byantikvarens tilbakemelding BYGG-2023/16381, Wiers-Jenssensvei 26B, 160/774, bruksendring
03.03.2025 BYGG-2023/16381, Wiers-Jenssensvei 26B, 160/774, Intern høring
28.02.2025 Wiers-Jenssens vei 26B Supplering av søknad 160/774
30.01.2025 Foreløpig tilbakemelding på søknad om bruksendring bolig mm, 160/774, Wiers-Jenssens vei 26B
24.01.2025 Wiers-Jenssens vei 26B Supplering av søknad 160/774
14.11.2024 Ber om møte- 160/774/0/0 Wiers-Jenssens vei 26B, bruksendring bolig mm
26.07.2024 Søknad om midlertidig brukstillatelse trekkes - 160/774/0/0 Wiers-Jenssens vei 26B, bruksendring bolig mm
25.07.2024 Behov for tilleggsopplysninger - 160/774/0/0 Wiers-Jenssens vei 26B, bruksendring bolig mm
24.07.2024 Søknad om midlertidig brukstillatelse- 160/774/0/0 Wiers-Jenssens vei 26B, bruksendring bolig mm
08.05.2024 Retur av brev - 160/774/0/0 Wiers-Jenssens vei 26B, bruksendring bolig mm
18.04.2024 Fakturagrunnlag, 160/774, Wiers-Jenssens vei 26B
18.04.2024 Ubw ordre 20640809
16.04.2024 Tillatelse til fasadeendring, bruksendring bolig mm, Wiers-Jenssens vei 26B
04.04.2024 Tilleggsopplysninger - 160/774/0/0 Wiers-Jenssens vei 26B, bruksendring bolig mm
04.04.2024 Behov for informasjon - 160/774/0/0 Wiers-Jenssens vei 26B, bruksendring bolig mm
03.04.2024 Tilleggsopplysninger - 160/774/0/0 Wiers-Jenssens vei 26B, bruksendring bolig mm
03.04.2024 Behov for tilleggsopplysninger - 160/774/0/0 Wiers-Jenssens vei 26B, bruksendring bolig mm
22.03.2024 Tilleggsopplysninger - 160/774/0/0 Wiers-Jenssens vei 26B, bruksendring bolig mm
06.02.2024 Tilleggsopplysninger- 160/774/0/0 Wiers-Jenssens vei 26B, bruksendring bolig mm
06.02.2024 Tilleggsopplysninger - 160/774/0/0 Wiers-Jenssens vei 26B, bruksendring bolig mm
31.01.2024 Det gis utsatt frist - 160/774/0/0 Wiers-Jenssens vei 26B, bruksendring bolig mm
31.01.2024 Ber om utsatt frist - 160/774/0/0 Wiers-Jenssens vei 26B, bruksendring bolig mm
17.01.2024 Retur av brev - 160/774/0/0 Wiers-Jenssens vei 26B, bruksendring bolig mm
10.01.2024 Ber om utsatt frist - 160/774/0/0 Wiers-Jenssens vei 26B, bruksendring bolig mm
09.01.2024 Ber om utsatt frist - 160/774/0/0 Wiers-Jenssens vei 26B, bruksendring bolig mm
14.12.2023 Foreløpig tilbakemelding på søknad om bruksendring bolig mm, Wiers-Jenssens vei 26B,
12.12.2023 Tilleggsopplysninger - 160/774/0/0 Wiers-Jenssens vei 26B, bruksendring bolig mm
07.12.2023 Byantikvarens uttalelse. Wiers- Jenssens vei 26b, gnr 160/ bnr 774. Bruksendring/fasadeendring
23.11.2023 Intern høring
22.11.2023 Foreløpig tilbakemelding på søknad om bruksendring bolig mm, Wiers-Jenssens vei 26B,
11.10.2023 Bekreftelse på mottatt søknad
11.10.2023 Sjekkliste fase 1 (12 uker)
06.10.2023 Søknad - 160/774/0/0 Wiers-Jenssens vei 26B, bruksendring bolig mm