ChangeOfUse UnderBehandling Enebolig

Bruksendring av garasje til bolig og utvidelse av avkjørsel, Ullensvangvegen 240

📍 Ystanes, Ullensvangvegen 240 , 5781 LOFTHUS

Nøkkelinfo

Sakstype
Bruksendring
Bygningstype
Enebolig
Bruksareal
242 m²
Boenheter
2
Kommune
Ullensvang
Fylke
Vestland
Gnr / Bnr
242 / 35
Saksnummer
2024/2779
Fase
Under behandling

Om byggesaken

Bruksendring av eksisterende garasje på 40 m² til boligformål i underetasjen av en enebolig på Ullensvangvegen 240. Garasjeporten erstattes med vindu og skyvedør, og det etableres en ny leilighet med egen inngang. Det er mindre fasadeendringer på bygget, som har saltak og trekledning. Eiendommen på ca. 1315,9 m² får utvidet avkjørsel med opparbeidet snuplass og parkeringsplasser på egen grunn. Det er dokumentert at grunnforholdene er trygge med fjell i dagen, og det foreligger godkjent vegrett og tillatelse til utvidet bruk av avkjørsel. Det er én trapp i boligen, og utebod på 2,4 x 3 meter er etablert i tilknytning til leiligheten. Avløp er kommunalt, vann privat med rettigheter tilkoblet. Prosjektet omfatter også oppdaterte gjennomføringsplaner og ansvarsrettserklæringer for prosjektering, utførelse og kontroll.

Produkter og materialer

Grunnarbeid Opparbeidelse av avkjørsel og snuplass

🧱 Asfalt eller grus

Utvidelse av avkjørsel med snuplass på egen grunn, drenering med 200 mm rør under avkjørsel

Opparbeidelse av avkjørsel og snuplass iht. Vegnormal N100 og veglovens krav

Bad Badromsinnredning

Antall: 1

Badrom med våtromsmembran og sanitærutstyr

Bad i ny leilighet

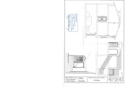
Fasade Vinduer og skyvedør i tidligere garasjeport

🧱 Tre/aluminium, 3-lags energiglass

Antall: 1

Erstatning av garasjeport med vindu og skyvedør, mindre fasadeendringer

Nye vinduer og skyvedør i tidligere garasjeportåpning for å etablere leilighet

Gulv Nytt gulv i leilighet

🧱 Eikeparkett eller tilsvarende

Nytt gulv i oppholdsrom i leilighet

Gulvbelegg i ny leilighet

Tømrer Innvendige vegger og oppdeling

🧱 Tre, isolasjon

Oppdeling av garasje til leilighet med vegger, dører og isolasjon

Innvendig ombygging for å etablere leilighet i tidligere garasje

Bod Utebod

🧱 Tre

Antall: 1

Utebod på 2,4 x 3 meter tilknyttet leilighet

Bod for oppbevaring utenfor leilighet

Elektro Elektrisk anlegg for ny boenhet

Elektrisk installasjon iht. TEK17 for ny leilighet

Elektrisk anlegg for ny boenhet

Garasjeport Eksisterende garasjeport fjernes

Antall: 1

Garasjeport erstattes med vindu og skyvedør

Fjerning av garasjeport i forbindelse med bruksendring

Trapper Innvendig trapp

🧱 Tre

Antall: 1

Eksisterende innvendig trapp i enebolig

Trapp mellom etasjer i enebolig

Balkong Eksisterende balkong

🧱 Tre

Antall: 1

Eksisterende balkong på enebolig beholdes

Balkong i enebolig

Maling Innvendig maling

Innvendig maling av vegger og tak i ny leilighet

Overflatebehandling innvendig

VVS Kloakk og vann

Kommunalt avløpsanlegg med kapasitet for ny boenhet, privat vannverk Nesstrond Vassverk med tilknytningsrett

Vann og avløp til ny leilighet

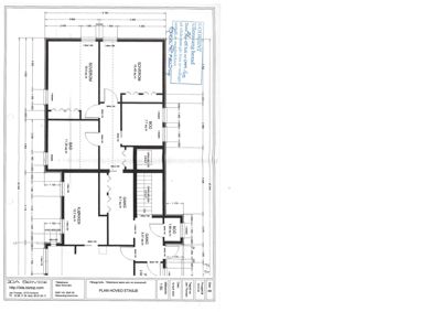
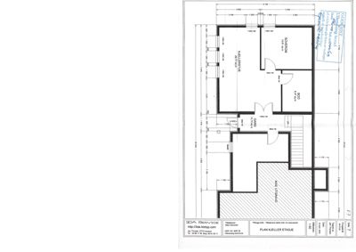
Plantegning

Enebolig 202.5 m²

Etasje 1 100.0 m²

Rom Areal Vinduer Dører
GANG 101 8.1 m² 0 3
KJØKKEN 102 12.2 m² 1 1
BAD 103 11.2 m² 0 1
SOVEROM 104 16.5 m² 1 1
SOVEROM 105 15.5 m² 1 1
BOD 106 7.7 m² 0 1
GANG 107 5.5 m² 0 1
BOD 108 1.7 m² 0 1

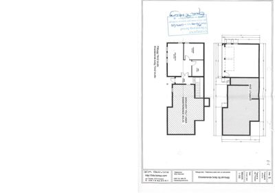
Etasje 0 102.5 m²

Rom Areal Vinduer Dører
Kjellerstue KJELLERSTUE 29.8 m² 3 1
Soverom SOVEROM 14.6 m² 0 1
Bod BOD 8.5 m² 0 1
Gang GANG 13.7 m² 0 1
Ikke utgravid IKKE_UTGRAVD 36.5 m² 0 0
Stue 001 22.4 m² 1 1
Kjøkken 002 0.0 m² 0 1
Gang 003 0.0 m² 0 2
WC 004 0.0 m² 0 1
Bod 005 0.0 m² 0 1
Badevann 006 0.0 m² 0 1
Teknisk rom 007 0.0 m² 0 1

Garasje 40.0 m²

Etasje 1 40.0 m²

Rom Areal Vinduer Dører
Garasjerom 101 40.0 m² 0 1

Fasader

Enebolig

Øst
Materiale
Tre
Taktype
Saltak
Vinduer
6
Dører
1
Balkonger
1
Synlige etasjer
2
Vest
Materiale
Tre
Taktype
Saltak
Vinduer
6
Dører
1
Balkonger
1
Synlige etasjer
2
Nord
Materiale
Tre
Taktype
Saltak
Vinduer
4
Dører
0
Synlige etasjer
2
Sør
Materiale
Tre
Taktype
Saltak
Vinduer
1
Dører
0
Synlige etasjer
1

Hendelser

16.04.2026 Signert gjennomføringsplan
16.04.2026 Oppdatert gjennomføringsplan
09.01.2026 Svar med ansvarserklæring på brann og opplysninger om bod
07.01.2026 Tilbakemelding på oppdatering: Ullensvang - kommentar frå kommunEpost med spml om ansvarserklæring for brannprosjektering og bod
23.12.2025 Dokumentasjon på vegrett fra ansvarlig søker
17.12.2025 Opplysninger fra ansvarlig søker
16.12.2025 Purring på dokumentasjon på vegrett
16.12.2025 Spørsmål om vann og avløp
16.12.2025 Tillatelse til utvida bruk av avkøyring 242/35
09.12.2025 Gnr. 242, bnr. 35 - Ullensvangvegen 240 - Dokumentasjon - Ny situasjonsplan fra søker
29.09.2025 Epost fra kommunen om manglende dokumentasjon på vegrett
29.09.2025 Epost fra kommunen om mangelfull situasjonsplan etter uttalelse fra planavdelingen
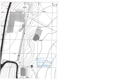
23.09.2025 Geolog Dolviks vurdering av fare for områdeskred 242/35 Krossanes (K3)
23.09.2025 Dokumentasjon fra tiltakshaver
23.09.2025 Kommentar frå kommunegeologen - 242/35 Krossanes (K3)
23.09.2025 Kommentar fra Norcosult som har skrevet rapport om områdeskred
23.09.2025 Epost til tiltakshaver
23.09.2025 Epost til ansvarlig søker vedrørende søknad om bruksendring
23.09.2025 Epost til søker/tiltakshaver ang kommentar frå kommunegeologen - 242/35 Krossanes (K3) - områdeskred
23.09.2025 Spørsmål til tiltakshaver vedr. søknaden
23.09.2025 Epost til geolog Dolvik med dok på fjell i dagen
16.07.2024 Gnr. 242, bnr. 35 - Ullensvangvegen 240 - Søknad om tillatelse i ett trinn