ChangeOfUse UnderBehandling Enebolig

Bruksendring og fasadeendring i enebolig, Ytrebygdsvegen 140, Bergen

📍 Ytrebygdsvegen 140 , 5252 SØREIDGREND

Nøkkelinfo

Sakstype
Bruksendring
Bygningstype
Enebolig
Bruksareal
249 m²
Boenheter
1
Kommune
Bergen
Fylke
Vestland
Gnr / Bnr
115 / 43
Saksnummer
BYGG-2026/11725
Fase
Under behandling

Om byggesaken

Eksisterende enebolig på 248,9 m² med saltak og trekledning gjennomgår en intern bruksendring hvor arealer i underetasjen endres fra tilleggsdel (bod/lager) til hoveddel (oppholdsrom og soverom). Bad og vaskerom utvides i underetasjen uten inngrep i bærende konstruksjoner. Fasadeendringer er minimale og begrenset til mindre tilpasninger innenfor eksisterende åpninger. Boligen opprettholdes som én boenhet med hybel/generasjonsbolig. Tiltaket inkluderer oppgradering av fuktsikring og våtrom i henhold til TEK17. Eiendommen ligger i regulert småhusbebyggelse med godkjent utnyttelsesgrad, og tiltaket påvirker ikke utnyttelsesgraden eller parkeringsforhold.

Produkter og materialer

VVS Sanitærinstallasjoner

Nye installasjoner for bad og vaskerom i underetasjen

VVS-arbeider knyttet til utvidelse av bad og vaskerom

Elektro Elektriske installasjoner

Oppdatering av elektriske anlegg i forbindelse med bruksendring og bad

Elektriske arbeider for nye rom og våtrom

Vinduer Fasadevindu

🧱 tre

Antall: 6

vinduer oppfyller krav til rømningsvei og størrelse i henhold til TEK17

Vinduer i underetasje og øvrige etasjer som inngår i bruksendringen, inkludert rømningsvinduer

Gulv Gulvbelegg

Nye gulv i oppholdsrom og bad i underetasjen

Gulvbelegg og fliser i våtrom, parkett eller annet i oppholdsrom

Dører Innvendige dører

Antall: 10

dører til nye oppholdsrom og bad i underetasjen

Innvendige dører for nye rom i bruksendringsområdet

Fasade Fasadeendring innen eksisterende åpninger

🧱 tre

Mindre tilpasninger i fasade uten endring av bærende konstruksjoner

Fasadeendringer begrenset til justeringer innenfor eksisterende vinduer og dører

Tømrer Innvendige konstruksjoner

🧱 tre

Ingen inngrep i bærende konstruksjoner, men tilpasninger i innvendige vegger og rom

Tømrerarbeid for ombygging av rom og vegger i underetasjen

Bad Bad/WC/Vask

Antall: 1

Utvidet bad i underetasjen prosjektert og utført i samsvar med våtromsnorm og TEK17

Oppgradering og utvidelse av bad med våtromsmembran og sanitærutstyr

Isolasjon Fuktsikring og isolasjon i kjeller

Oppgradering av fuktsikring i kjeller i henhold til TEK17

Isolasjon og membran for fuktsikring i underetasje ved bruksendring

Grunnarbeid Fuktsikring av grunnmur

Oppgradering av fuktsikring i kjeller og grunnmur

Tiltak for å sikre fuktsikring i underetasjen ved bruksendring

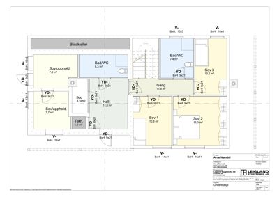
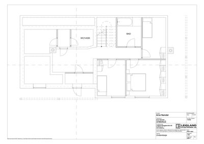
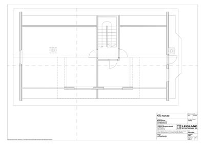
Plantegning

Enebolig 248.9 m²

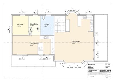
Etasje 0 128.4 m²

Rom Areal Vinduer Dører
Sov/opphold 001 7.8 m² 1 1
Bad/WC 002 6.3 m² 0 1
Sov/opphold 003 7.7 m² 1 1
Bod 004 3.5 m² 0 1
Hall 005 11.0 m² 0 2
Tekn. 006 1.0 m² 0 1
Gang 007 11.6 m² 0 3
Bad/WC 008 7.4 m² 0 1
Sov 3 009 10.2 m² 1 1
Sov 1 010 10.8 m² 1 1
Sov 2 011 15.0 m² 1 1

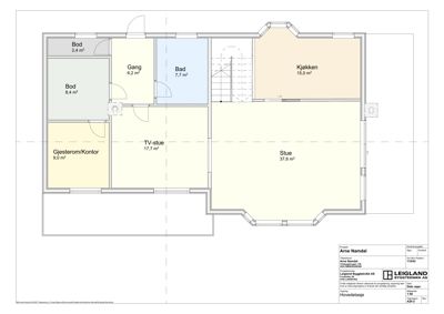
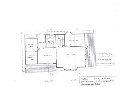
Etasje 1 120.5 m²

Rom Areal Vinduer Dører
Stue 101 37.5 m² 2 1
TV-Stue 102 18.0 m² 1 1
Kjøkken 103 15.0 m² 1 1
Bad/WC 104 7.7 m² 0 1
Gang 105 6.0 m² 0 2
Gjestesrom/Kontor 106 9.0 m² 1 1
Arb.rom 107 8.4 m² 1 1
Bod 108 2.3 m² 1 1

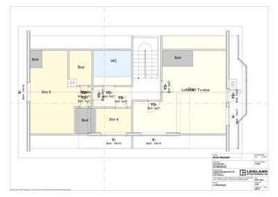
Etasje 2 0.0 m²

Rom Areal Vinduer Dører
Sov 5 Sov 5 0.0 m² 1 1
Bod Bod 0.0 m² 0 0
Bod Bod 0.0 m² 0 0
WC WC 0.0 m² 0 1
Bod Bod 0.0 m² 0 0
Sov 4 Sov 4 0.0 m² 1 1
Loftstue / Tv-stue Loftstue / Tv-stue 0.0 m² 2 1
Stue 201 0.0 m² 1 1
Sove 202 0.0 m² 1 1
Bad 203 0.0 m² 0 1
Gang 204 0.0 m² 0 0

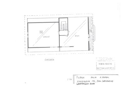
Generasjons bolig 0.0 m²

Etasje 0 0.0 m²

Rom Areal Vinduer Dører
EKSIST. 0 0.0 m² 0 0
DISP. 1 0.0 m² 0 0

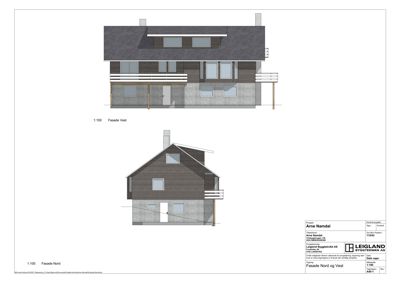
Fasader

Generasjons bolig

Syd-Øst
Materiale
Tre
Taktype
Saltak
Vinduer
4
Dører
1
Balkonger
1
Synlige etasjer
2
Nord-Vest
Materiale
Tre
Taktype
Saltak
Vinduer
3
Dører
1
Balkonger
1
Synlige etasjer
2
Nord-Øst
Materiale
Tre
Taktype
Saltak
Vinduer
4
Dører
1
Synlige etasjer
2

Enebolig

Sydvest
Materiale
Tre
Taktype
Saltak
Vinduer
8
Dører
1
Balkonger
2
Synlige etasjer
2
Vest
Materiale
Tre
Taktype
Saltak
Vinduer
3
Dører
1
Balkonger
1
Synlige etasjer
2
Nord
Materiale
Tre
Taktype
Saltak
Vinduer
6
Dører
1
Balkonger
1
Synlige etasjer
2
Øst
Materiale
Tre
Taktype
Saltak
Vinduer
4
Dører
1
Balkonger
1
Synlige etasjer
2
Sør
Materiale
Tre
Taktype
Saltak
Vinduer
6
Dører
1
Balkonger
2
Synlige etasjer
2

Hendelser

20.04.2026 Ytrebygdsvegen 140 Supplering av søknad 115/43
20.03.2026 Behov for tilleggsopplysninger, 115/43, Ytrebygdsvegen 140
11.03.2026 Ytrebygdsvegen 140 Søknad om tillatelse i ett trinn 115/43