FacadeChange UnderBehandling Enebolig

Fasadeendring og veranda på enebolig, Adamshaven 23

📍 Adamshaven 23 , 4824 BJORBEKK

Nøkkelinfo

Sakstype
Fasadeendring
Bygningstype
Enebolig
Bruksareal
25 m²
Boenheter
1
Kommune
Arendal
Fylke
Agder
Gnr / Bnr
437 / 313
Saksnummer
2025/29970
Fase
Under behandling

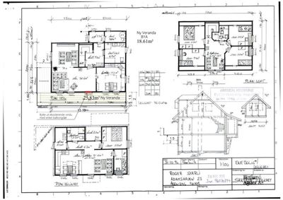
Om byggesaken

Ny veranda på ca. 25 m² med utkragning på 1,2 meter fra fasadelivet på en eksisterende enebolig i Adamshaven 23. Verandaen plasseres på fasaden mot øst og erstatter et eksisterende vindu med en balkongdør. Tiltaket inkluderer også fjerning av eksisterende takoverbygg over inngang i underetasjen. Verandaen bygges med bærende stolper 1,5 meter ut fra vegglivet og har treplatting med overbygg. Bygningen er i tre med saltak, og tiltaket krever dispensasjon fra byggegrense i reguleringsplanen. Det er gjennomført nabovarsling og vurdert lysforhold i underliggende oppholdsrom i henhold til TEK17.

Produkter og materialer

Fasade Veranda med bærende stolper

🧱 Tre

Antall: 1

Veranda ca. 25 m² med utkragning 1,2 m, bærende stolper 1,5 m ut fra veggliv, overbygd

Ny veranda på fasade øst med treplatting og bærende stolper

Vinduer Fasadevindu

🧱 Tre

Antall: 0

Eksisterende vinduer berøres i forbindelse med veranda, men ingen nye vinduer oppføres

Eksisterende vinduer på fasade øst, ett vindu erstattes med dør

Tak Saltak

🧱 Tre og taktekking

Eksisterende saltak, takoverbygg over inngang fjernes

Fjerning av eksisterende takoverbygg over inngang i underetasje

Tømrer Bygging av veranda og endring fasade

🧱 Tre

Oppføring av veranda, montering av balkongdør, fjerning av takoverbygg

Tømrerarbeid knyttet til veranda og fasadeendring

Grunnarbeid Fundamentering for veranda

🧱 Betong

Fundamentering for bærende stolper til veranda

Grunnarbeid og fundamentering for verandaens bærende stolper

Dører Balkongdør

🧱 Glass og tre

Antall: 1

Erstatning av eksisterende vindu med balkongdør på fasade øst

Ny balkongdør i stedet for vindu

Maling Utvendig maling

🧱 Maling

Maling av ny veranda og berørte fasadeflater i tre

Overflatebehandling av treverk på veranda og fasade

Fasader

Enebolig

Sør-Øst
Materiale
Tre
Taktype
Saltak
Vinduer
7
Dører
1
Synlige etasjer
2
Sør-Vest
Materiale
Tre
Taktype
Saltak
Vinduer
3
Dører
1
Synlige etasjer
2
Nord-Vest
Materiale
Tre
Taktype
Saltak
Vinduer
2
Dører
1
Synlige etasjer
2
Nord-Øst
Materiale
Tre
Taktype
Saltak
Vinduer
2
Dører
1
Synlige etasjer
2
Sør - Vest
Materiale
Tre
Taktype
Saltak
Vinduer
4
Dører
2
Synlige etasjer
2
Sør - Øst
Materiale
Tre
Taktype
Saltak
Vinduer
8
Dører
1
Synlige etasjer
2
Nord - Vest
Materiale
Tre
Taktype
Saltak
Vinduer
2
Dører
1
Synlige etasjer
1
Nord - Øst
Materiale
Tre
Taktype
Saltak
Vinduer
2
Dører
1
Synlige etasjer
1

Hendelser

13.04.2026 Henvendelse til ansvarlig søker, og nytt varsel om mangler
10.04.2026 Adamshaven 23 Supplering av søknad 437/313
11.02.2026 Utsettelse til 31.03.2026
11.02.2026 Bekreftelse på videre avvente av dokumentasjon
06.02.2026 Purring fra byggesak - Adamshaven 23 - søknad om om tilbygg
20.01.2026 Tilbakemelding på byggesøknad for Adamshaven 23, og krav om manglende dokumentasjon
16.01.2026 437/313 - Purring - Ny forespørsel om svar på søknad
17.12.2025 437/313 - Etterspør oppdatering på søknad
17.10.2025 Adamshaven 23, melding om mottatt søknad
16.10.2025 Adamshaven 23 Søknad om tillatelse til tiltak uten ansvarsrett 437/313