FacadeChange Soeknad Enebolig

Innbygging av altan og fasadeendring på Bjønnesmoen 23

📍 Bjønnesmoen 23 , 8521 ANKENES

Nøkkelinfo

Sakstype
Fasadeendring
Bygningstype
Enebolig
Bruksareal
197 m²
Boenheter
1
Kommune
Narvik
Fylke
Nordland - Nordlánnda
Gnr / Bnr
47 / 380
Saksnummer
26/1298
Fase
Søknad

Om byggesaken

Innbygging av tidligere altan på fasade vest i både 1. og 2. etasje på eksisterende enebolig med totalt 197 m². Innbyggingen øker boarealet ved at altanene innlemmes i stue og loftstue, med ny areal på stue 39,5 m² og sov/stue 19,7 m². Det etableres nye vinduer og dører, inkludert fem nye vinduer i 1. etasje og dør-/glassfelt over hele fasaden i 2. etasje med rekkverk på utsiden. Tiltaket gjennomføres innenfor eksisterende bygningskropp uten volum- eller høydeendring, og medfører fasadeendringer og økt bruksareal. Bygget har trekledning og saltak, og tiltaket inkluderer endring av bærekonstruksjon og underbygg.

Produkter og materialer

Tømrer Innbygging av altan

Endring av bærekonstruksjon og innbygging av tidligere altan i 1. og 2. etasje

Tømrerarbeid for innbygging av altan og fasadeendring

Vinduer Fasadevindu

🧱 Moderne vinduer med bedre U-verdi enn eksisterende

Antall: 7

5 nye vinduer i 1. etasje, 1 vindu 50x210 cm mot nord og 1 tilsvarende mot sør i 2. etasje

Nye vinduer for innbygging av altan og fasadeendring

Isolasjon Ytterveggsisolasjon

🧱 148 mm tykkelse, tilsvarende eksisterende veggkonstruksjon

Nye yttervegger oppføres med samme konstruksjonsprinsipp og tykkelse som eksisterende

Isolasjon for nye yttervegger ved innbygging av altan

Dører Dør-/glassfelt

Antall: 1

Dør-/glassfelt over hele fasaden mot vest i 2. etasje med rekkverk på utsiden høyde 1000 mm

Ny dør-/glassfelt for loftstue med utgang til rekkverk

Ventilasjon Naturlig ventilasjon

Opprettholdelse og forbedring av naturlig ventilasjon, ingen balansert ventilasjon installeres

Ventilasjon basert på naturlig lufting via vinduer

Fasade Tre kledning

🧱 Tre

Fasadeendring på eksisterende trekledning uten volumendring

Oppgradering og tilpasning av fasade ved innbygging av altan

Rekkverk Balkongrekkverk

Antall: 1

Rekkverk på utsiden av dør-/glassfelt i 2. etasje, høyde 1000 mm

Rekkverk for sikkerhet ved ny innbygget altan i 2. etasje

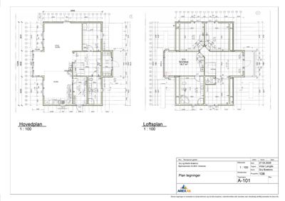
Plantegning

Enebolig 197.0 m²

Etasje 1 105.6 m²

Rom Areal Vinduer Dører
Stue 101 34.5 m² 3 2
Kjøkken 102 20.2 m² 1 1
Vaskerom 103 8.3 m² 0 1
Bad 104 7.9 m² 0 1
Gang/Trapp 105 14.7 m² 0 0
Sov 106 11.2 m² 1 1
Sov 107 11.2 m² 1 1
Sov 108 11.2 m² 1 1
Stue STUE 39.5 m² 2 1
Kjøkken KJOKKEN 20.2 m² 1 1
Gang GANG 4.5 m² 0 2
Badekjeller BADEKJELLER 13.7 m² 0 1
Vaskerom VASKEROM 4.6 m² 0 1

Etasje 2 91.4 m²

Rom Areal Vinduer Dører
Sov 201 14.1 m² 1 1
Sov 202 14.2 m² 1 1
Sov 203 14.1 m² 1 1
Loftstue 204 30.3 m² 2 1
WC 205 1.7 m² 0 1
Bad 206 14.3 m² 0 1
Sov/stue 211 19.7 m² 1 1
Badekjeller BADEKJELLER 10.5 m² 0 1
Gang GANG 4.2 m² 0 2

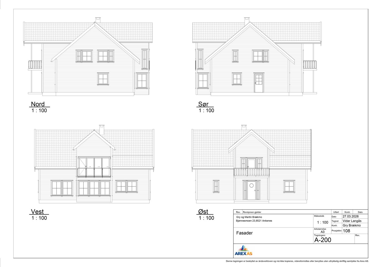
Fasader

Enebolig

Nord
Materiale
Tre
Taktype
Saltak
Vinduer
4
Dører
1
Balkonger
1
Synlige etasjer
2
Sør
Materiale
Tre
Taktype
Saltak
Vinduer
4
Dører
1
Balkonger
1
Synlige etasjer
2
Vest
Materiale
Tre
Taktype
Saltak
Vinduer
6
Dører
1
Balkonger
1
Synlige etasjer
2
Øst
Materiale
Tre
Taktype
Saltak
Vinduer
4
Dører
1
Balkonger
1
Synlige etasjer
2

Hendelser

15.04.2026 Tilbakemelding om mangler gbnr. 47/380
14.04.2026 Søknad om tillatelse i ett trinn for endring av bærekonstruksjon, fasade og underbygg på gbnr. 47/380, Bjønnesmoen 23