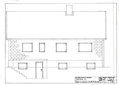
Facade
Fasadetegning som viser bygningens utside med vinduer, taklinje og trappetrinn.
1 / 11
FacadeChange
Soeknad
Enebolig
Fasadeendring på enebolig i Børsingveien 2B, Bodø
📍 Børsingveien 2B , 8075 BODØ
Nøkkelinfo
- Sakstype
- Fasadeendring
- Bygningstype
- Enebolig
- Boenheter
- 1
- Kommune
- Bodø
- Fylke
- Nordland - Nordlánnda
- Gnr / Bnr
- 38 / 106
- Saksnummer
- 2026/16231
- Fase
- Søknad
Om byggesaken
Fasadeendring på en eksisterende to-etasjes enebolig med saltak i Børsingveien 2B, Bodø. Endringen omfatter utvendig etterisolering av murvegger og påføring av ny trebordkledning på fasadene mot sør-vest og nord-vest. Fasaden består i dag av tre, og tiltaket inkluderer oppgradering av vinduer (totalt 10 vinduer fordelt på to fasader) og en ytterdør. Prosjektet har ett trinns søknadsbehandling og krever ansvarlige foretak for prosjektering og utførelse. Det foreligger tegninger av eksisterende og nye fasader, samt situasjonskart og nabovarsel. Det er en trapp i boligen, og rom som stue, kjøkken, vaskerom, soverom og bad inngår i bygget.
Produkter og materialer
Grunnarbeid
Ingen spesifikk grunnarbeid
Ingen nye grunnarbeider, eksisterende bygg
Dører
Ytterdør
Antall: 1
Ytterdør på nord-vest fasade
Vinduer
Fasadevindu
Antall: 10
Vinduer på fasadene sør-vest (4 stk) og nord-vest (6 stk)
Isolasjon
Utvendig veggisolasjon
Etterisolering av murvegger utvendig
Isolasjon for utvendig etterisolering av murfasade
Maling
Utendørs maling
Maling eller behandling av ny kledning utvendig
Fasade
Utvendig kledning
🧱 Trebordkledning
Ny trebordkledning på utvendig fasade etter etterisolering
Utvendig trebordkledning som ny fasade på murbolig etter etterisolering
Tømrer
Arbeid med kledning og isolasjon
Tømrerarbeid for demontering og montering av kledning og isolasjon
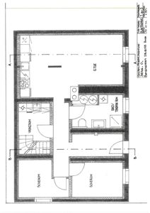
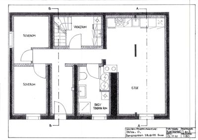
Plantegning
Enebolig 0.0 m²
Etasje 1 0.0 m²
| Rom | Areal | Vinduer | Dører |
|---|---|---|---|
| Stue 101 | 0.0 m² | 1 | 1 |
| Kjøkken 102 | 0.0 m² | 0 | 1 |
| Vaskerom 103 | 0.0 m² | 0 | 1 |
| Soverom 104 | 0.0 m² | 1 | 1 |
| Soverom 105 | 0.0 m² | 1 | 1 |
| Bad/teknisk rom 106 | 0.0 m² | 0 | 1 |
Fasader
Enebolig
Sør-Vest
- Materiale
- Tre
- Taktype
- Saltak
- Vinduer
- 4
- Dører
- 0
- Synlige etasjer
- 2
Nord-Vest
- Materiale
- Tre
- Taktype
- Saltak
- Vinduer
- 6
- Dører
- 1
- Synlige etasjer
- 2
Hendelser
20.04.2026
Foreløpig svar - behov for tilleggsdokumentasjon
17.04.2026
Bekreftelse på mottatt søknad - Børsingveien 2B
14.04.2026
Ett-trinns søknad - Børsingveien 2B
14.04.2026
Dokumentasjon på kompetanse